The UK's Largest Customer Review Website for the Property Industry
The UK's Largest Customer Review Website for the Property Industry
Back to Property Listings
Dashwood Road, N8
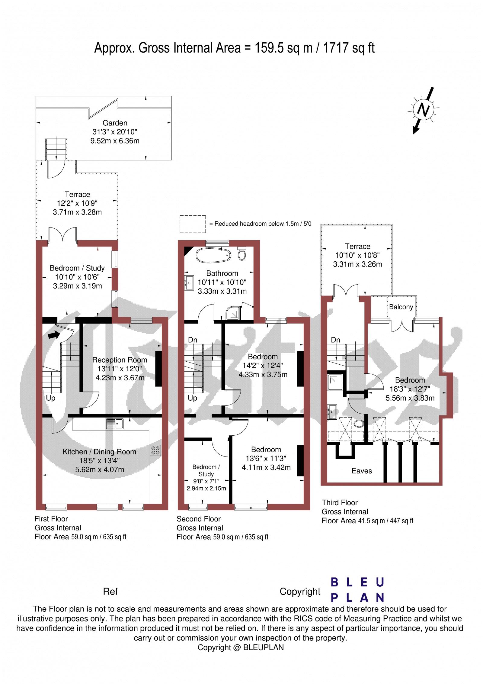
A rare and stunning four-bedroom, garden maisonette occupying the upper floors of a period residence, positioned on a tranquil turning offering an unapparelled view of Alexandra Palace. The property has been well-maintained by the current owners and offers an abundance of bright, spacious rooms throughout with neutral internal detailing coupled with character features including high ceilings, cornicing, sash windows and feature fireplaces.
Further comprising family bathroom, en-suite to principal bedroom, reception, kitchen/diner, study, balcony, two private southerly facing roof terraces and a private, southerly-facing, rear garden.
Ideally located for Crouch End Broadway and transportation links into the City and West End.
The sale includes the Freehold of the building subject to the ground floor flat lease.

This property is marketed by

Castles Estate Agents (London) - Crouch End, London, N8
5/5 Rating
(939) reviews
Agent Statistics (Based on 939 Reviews) :