The UK's Largest Customer Review Website for the Property Industry
The UK's Largest Customer Review Website for the Property Industry
Back to Property Listings
Danvers Road, Leicester
Well presented and well proportioned bay fronted mid terrace house for sale in the heart of the West End. The accommodation comprises lounge, dining room, kitchen, two double bedrooms, modern bathroom and rear yard. Ideal first time buyer property or downsizing from a larger home.
Details - SUMMARY Well presented and well proportioned bay fronted mid terrace house for sale in the heart of the West End. The accommodation comprises lounge, dining room, kitchen, two double bedrooms, modern bathroom and rear yard. Ideal first time buyer property or downsizing from a larger home.
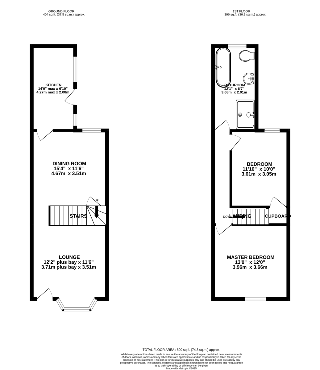
LOUNGE 12' 2" x 11' 6" (3.71m x 3.51m) With bay window to the front elevation, laminate floor, fireplace, cupboard housing the meters, coving to the ceiling and radiator.
DINING ROOM 15' 4" x 11' 6" (4.67m x 3.51m) With stairs off to the first floor, window to the rear elevation, laminate floor and radiator.
KITCHEN 14' x 6' 10" (4.27m x 2.08m) Comprising base and wall mounted units with complementary work surfaces, sink unit with drainer, tiled splash backs, gas cooker point, plumbing for washing machine, wall mounted boiler, two windows to the side elevation and tiled floor.
LANDING With spotlights, radiator and access to the loft. The loft is boarded with light and drop down ladder.
BEDROOM 13' x 12' (3.96m x 3.66m) With spotlights, radiator and window to the front elevation.
BEDROOM 11' 10" x 10' (3.61m x 3.05m) With over stairs storage cupboard, radiator and window to the rear elevation.
BATHROOM 12' 1" x 6' 7" (3.68m x 2.01m) Being PVC panelled and comprising panelled bath, shower cubicle, vanity wash hand basin, low flush w.c., extractor fan, heated towel rail, spotlights and window to the rear elevation.
OUTSIDE The front of the property is paved and enclosed with a dwarf wall. The rear yard is paved with outhouses, gated side access and a walled surround.
SALES SUMMARY & MATERIAL INFORMATION • Price : Offers Over £190,000
• Tenure : Freehold
• Length of lease : N/a
• Annual ground rent amount : N/a
• Ground rent review period : N/a
• Annual service charge amount : N/a
• Service charge review period : N/a
• Council tax band : A
• EPC Rating: D
• Property type: Mid Terrace
• Property construction: Brick
• Number and types of room: Please refer to floorplan
• Electricity supply: mains
• Water supply: Mains
• Sewerage: Public sewer
• Heating: Gas Central Heating
• Broadband: Refer to Ofcom for broadband services
• Mobile signal / coverage: refer to Ofcom mobile coverage checker
• Parking: On Street Parking
• Building safety: No known hazards
• Restrictions: No known restrictions
• Rights and easements: None
• Coastal erosion risk: None
• Planning permission: No known planning permissions or proposals for development
• Accessibility/Adaptations: None
• Coalfield or mining area: No direct impact of any mining activity
THINKING OF SELLING? We would be delighted to provide you with a free market appraisal/valuation of your own property. Please contact Phillips George to arrange a convenient appointment on 01162168178.
BUYING TO LET? Phillips George are expert, ARLA qualified letting agents with experience of all kinds of rental property across city and county. Should you need a rental valuation for your new property or on any of your existing portfolio, or simply want some advice on the current rental market, call us now on 01162168178.
DISCLAIMER & IMPORTANT INFORMATION Phillips George Sales & Lettings for themselves and the vendors of this property whose agents they are, give notice that these particulars are not to be relied upon as a statement or representation of fact and do not constitute any part of an offer or a contract. Intending purchasers must satisfy themselves by inspection or otherwise as to the correctness of each and any statements contained in these particulars. The vendors do not make or give and neither do Phillips George Sales & Lettings (nor any person in their employment) have authority to make any representation or warranty whatsoever in relation to the property.
None of the services, systems or appliances listed or shown in this specification have been tested by us and no guarantee as to their operating ability or efficiency is given. All floorplans and dimensions have been provided as a guide for prospective buyers only, and should not be relied on as a true representation.
Current money laundering regulations require us to confirm proof of identity and residency of anyone intending to purchase. We ask for your co-operation in providing the necessary documentation in order to avoid delays in agreeing the sale.

This property is marketed by

Phillips George Estate Agents - Wigston, Leicester, LE18
4.9/5 Rating
(42) reviews
Agent Statistics (Based on 42 Reviews) :