The UK's Largest Customer Review Website for the Property Industry
The UK's Largest Customer Review Website for the Property Industry
Back to Property Listings
Cuckstool Lane, Castle Acre
Situated in a desirable location within the historic sought after village of Castle Acre, Longsons are delighted to bring to the market this fabulous, detached character cottage. This attractive flint faced cottage is full of charm throughout and has much to offer including three double bedrooms, modern conservatory, two reception rooms, sizeable established gardens, cart shed with workshop to rear, parking, kitchen/breakfast room, utility/cloakroom, shower room, UPVC double glazing and oil fired central heating.
Viewing highly recommended!
Briefly, the property offers dining room, sitting room, kitchen/breakfast room, rear lobby, utility/cloakroom, conservatory, three double bedrooms, shower room, cart shed with workshop to rear, sizeable gardens, oil fired central heating and UPVC double glazing.
CASTLE ACRE
Castle Acre is a picturesque village that is steeped with history. Located in the heart of Norfolk`s rural countryside, it offers a fantastic quality of life for those who love the outdoors. The village benefits from a range of amenities, including a post office, village store, and two pubs, perfect for a relaxing drink after a long day. It is also home to the stunning castle ruins and priory, which is a must-visit for anyone interested in history.
The village is surrounded by miles of beautiful countryside, including wonderful walking and cycling routes, perfect for those looking to explore the great outdoors.
For those who love the coast, Castle Acre is just a short drive to the beautiful beaches of North Norfolk. Here you will find picturesque seaside towns, such as Wells-next-the-Sea and Hunstanton, offering a wide range of attractions and activities for all ages.
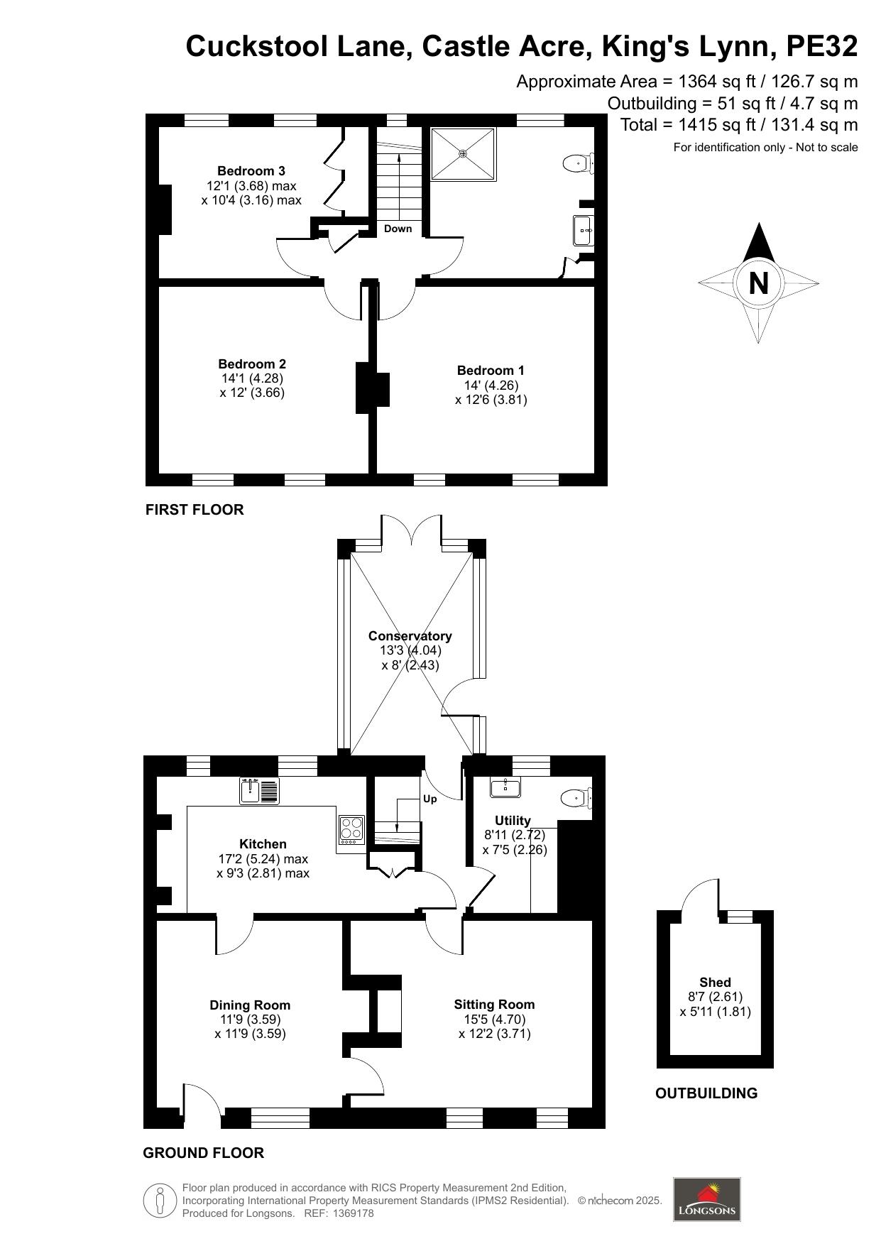
Dining Room - 11'9" (3.58m) x 11'9" (3.58m)
Entrance door opening to front, feature brickwork fireplace with pamment tiles to hearth, UPVC double glazed window to front, radiator.
Sitting Room - 15'5" (4.7m) x 12'2" (3.71m)
Feature brickwork inglenook style fireplace with inset log burning stove, two UPVC double glazed windows to front, radiator.
Kitchen/Breakfast Room - 17'2" (5.23m) Max x 9'3" (2.82m) Max
Fitted kitchen units to walls and floor, work surface over, stainless steel sink unit with mixer tap and drainer, integrated appliances including fridge, freezer, slimline dishwasher, electric oven and ceramic hob with extractor hood over, pamment tiles to floor, two UPVC double glazed windows to front, radiator.
Rear Lobby
Fitted cupboard and drawers, stairs to first floor, entrance door opening to conservatory, pamment tiles to floor.
Utility Room/Cloakroom - 8'11" (2.72m) x 7'5" (2.26m)
Butler style ceramic sink with mixer tap, WC, fitted kitchen units, space and plumbing for washing machine, space for tumble dryer, pamment tiles to floor, osbcure glass UPVC double glazed window to rear, radiator.
Conservatory - 13'3" (4.04m) x 8'0" (2.44m)
Modern UPVC double glazed conservatory with pitched roof and heat reflective glass to roof, tiles to floor, French doors opening to rear, entrance door opening to side.
Stairs & Landing
Loft access with loft ladder, built in storage cupboard.
Bedroom One - 14'0" (4.27m) x 12'6" (3.81m)
Two UPVC double glazed windows to front, radiator.
Bedroom Two - 14'1" (4.29m) x 12'0" (3.66m)
Two UPVC double glazed windows to front, feature cast iron fireplace, radiator.
Bedroom Three - 12'1" (3.68m) x 10'4" (3.15m)
Currently set up as a study, fitted shelving, built-in storage cupboards, two UPVC double glazed windows to rear, radiator.
Shower Room - 11'1" (3.38m) Max x 9'9" (2.97m) Max
Large double shower cubicle, wash basin, WC, built-in cupboard housing hot water cylinder, obscure glass UPVC double glazed window to rear, radiator.
Cart Shed - 8'7" (2.62m) x 5'11" (1.8m)
Workshop to rear, electric, power and light.
Outside Front
Front garden laid to shingle. well maintained selection of shrubs and plants to beds and borders, five bar gates providing secure access to driveway and cart shed.
Rear Garden.
Enclosed sizeable rear garden full of character and features including part of the historic flint Castle Acre perimeter wall, established shrubs, plants and fruit trees throughout, three wooden garden sheds, flint and brick built external store, paved patio seating area, main garden laid to lawn, wooden fence to perimeter
Agent`s Note
EPC rating E44 (Full copy available on request)
Council tax band E (Own enquiries should be make via Kings Lynn & West Norfolk Council)
what3words /// factories.initiates.irritable
Notice
Please note we have not tested any apparatus, fixtures, fittings, or services. Interested parties must undertake their own investigation into the working order of these items. All measurements are approximate and photographs provided for guidance only.
Utilities
Electric: Mains Supply
Gas: None
Water: Mains Supply
Sewerage: Private Supply
Broadband: Cable
Telephone: Landline
Other Items
Heating: Oil Central Heating
Garden/Outside Space: Yes
Parking: Yes
Garage: No

Agent Statistics (Based on 1 Reviews) :