The UK's Largest Customer Review Website for the Property Industry
The UK's Largest Customer Review Website for the Property Industry
Back to Property Listings
Crown Mill, Lincoln
A Stunning Two Bedroom Apartment in a Historic Mill Conversion,
This beautifully presented two bedroom, two bathroom apartment is set within the original Crown Mill building in the heart of Lincoln. Offering a unique blend of period character and modern comfort, this property is ideal for professionals or couples seeking something truly special.
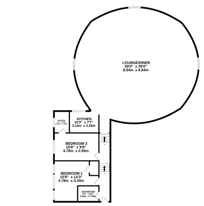
The highlight of the home is the impressive round living and dining area, featuring exposed brickwork, original beams and hooks, and windows that fill the space with natural light.
The newly fitted kitchen comes fully equipped with a washer/dryer, dishwasher, and fridge freezer, making it perfect for modern living.
The apartment offers two double bedrooms, one of which benefits from an en suite shower room, while the main bathroom includes a full-sized bath. The property is offered fully furnished, showcasing stylish and comfortable interiors throughout.
Additional features include
allocated parking in a secure gated car park,
lift access, and the charm of a beautifully maintained historic building.
Available now.
Notice
All photographs are provided for guidance only.
Redress scheme provided by: Property Redress Scheme (PRS005441)
Client Money Protection provided by: DPS (1141823)
Council Tax
Lincoln City Council, Band A
Utilities
Electric: Mains Supply
Gas: None
Water: Mains Supply
Sewerage: Mains Supply
Broadband: Cable
Telephone: None
Other Items
Heating: Not Specified
Garden/Outside Space: No
Parking: Yes
Garage: No

This property is marketed by

Pridea Sales & Lettings - Lincoln, Lincoln, LN5
4.9/5 Rating
(191) reviews
Agent Statistics (Based on 191 Reviews) :