The UK's Largest Customer Review Website for the Property Industry
The UK's Largest Customer Review Website for the Property Industry
Back to Property Listings
Cross Road, Leamington Spa
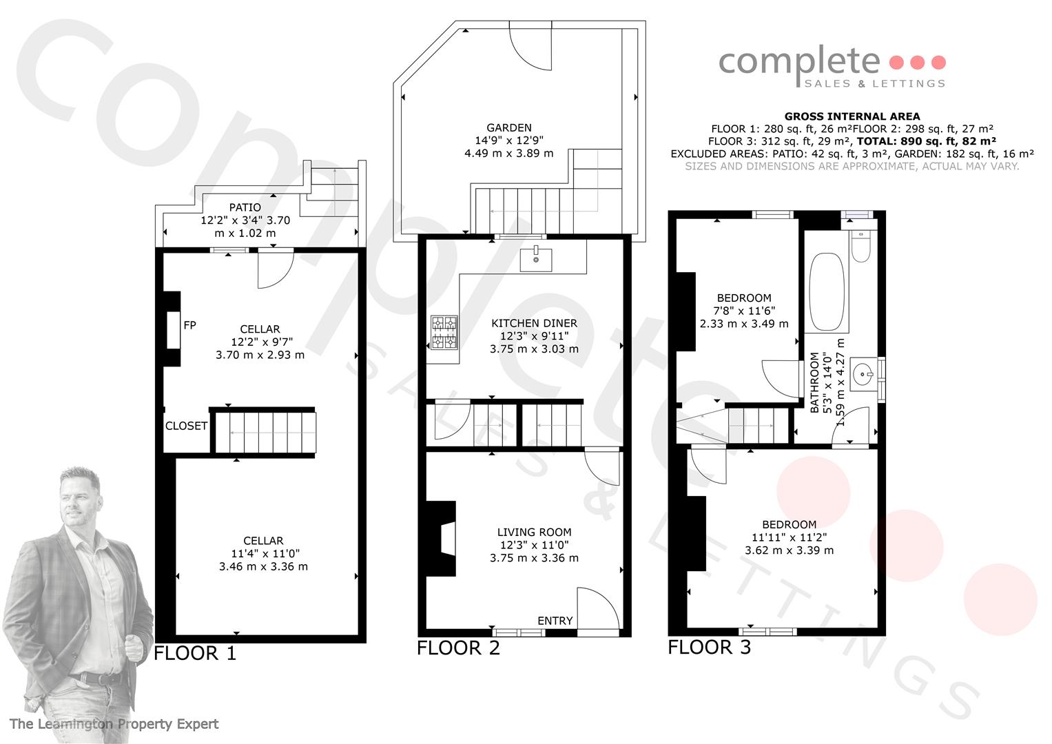
A very well presented 1910 character semi-detached home in Milverton, North Leamington, just a short walk from the town centre, parks, and popular local pubs such as The Fat Pug and The Star & Garter. The property comprises a living room, a dining kitchen and two upstairs bedrooms connected by a stylish Jack-and-Jill bathroom. It also features a two-chamber basement with steps leading to a landscaped rear courtyard. A great starter home, set amongst the vibrant town centre, with a 15 minute walk to the train station.
It's in the details...
Living Room
Entrance door, with exposed painted floorboards, an open fireplace with green tiled hearth, a traditional four-column floor-standing cast-iron radiator, coving, a ceiling rose, built-in alcove cabinet and a new timber double glazed window to the front.
Kitchen Diner
With painted exposed floorboards, heritage style kitchen with antique cup handles and knobs. There is an oak solid work top with a butler style ceramic sink, with a surface-mounted mixed up. There is a breakfast bar unit with oak worktops and storage, space & plumbing for a washing machine. There is a space for a gas cooker with a tiled feature chimney with hand made handmade and enamel tiles. UPVC double glazed window overlooking the garden, a floor-standing traditional four-column cast-iron radiator and a door to the stairs down to the lower ground.
Basement
The property has a fantastic two-chamber basement with good head height, electric heaters, lighting and carpets. The rear chamber also has a double radiator, open storage under the stairs, a uPVC double glazed door to the lower courtyard, which has steps up to the main garden and there is a uPVC double glazed window.
Landing
The stairs lead to a split landing, with a painted door to bedroom one and an open doorway to bedroom two. Loft hatch.
Bedroom One
A beautifully presented main bedroom with a cast iron four-column floor-standing traditional radiator. Feature panelled wall, timber double glazed window to the front, coving, door through to the Jack and Jill bathroom.
Jack-n-Jill Bathroom
A beautifully presented bathroom which is fully tiled with grey wall tiling, patterned floor tiling, traditional sink with a pedestal, a toilet, a floor standing bath, with glass shower screen and a mains thermostatic rainfall shower with handheld attachment. Chrome towel radiator, uPVC double window and an airing cupboard.
Bedroom Two
A single bedroom with a uPVC double glazed window to the rear elevation, a cast-iron four column traditional floor standing radiator, coving and a door through to the Jack-n-Jill bathroom.
Rear Garden
Access from the basement, there is a stoned lower level and steps lead up to the courtyard garden, which has artificial lawn and picket fence. There is painted brick walling and a gate to the rear passage.
Location
Cross Road is within the conservation area and occupies a sought-after location approximately half a mile northwest of the Royal Spa town centre, just off Rugby Road. The immediate area includes some of the town's special period buildings in nearby Beauchamp Hill, Clarendon Crescent, and Milverton Crescent. Located a 15-minute walk from the train station, from which hourly fast trains run to London. Convenient for everything Leamington Spa has to offer - there is a great choice of high street and boutique shops, restaurants, cafés and bars, offering a unique shopping, dining and cultural experience. With its stunning architecture, tree-lined avenues, squares, parks, gardens and a range of excellent private and state schools, it is a very popular place to live and has been voted the happiest place to live in Great Britain in Rightmove's 2017 Happy at Home Index. The Sunday Times also recently listed Leamington as one of the best places to live in the UK.

This property is marketed by

Complete Estate Agents - Leamington-Spa, Leamington Spa, CV32
4.9/5 Rating
(724) reviews
Agent Statistics (Based on 724 Reviews) :