The UK's Largest Customer Review Website for the Property Industry
The UK's Largest Customer Review Website for the Property Industry
Back to Property Listings
Cromwell Terrace, North Shields
This ground floor flat, is ideally located on a quiet pedestrianised street in a sought-after residential area of North Shields. This property offers a combination of character, outdoor space, and modern convenience - making it particularly well-suited to first-time buyers or those seeking to downsize.
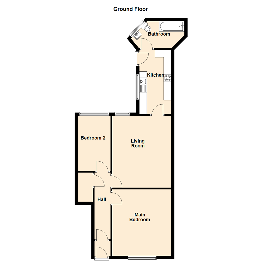
Accessed via a welcoming entrance hallway with storage, the accommodation briefly comprises: - spacious lounge enhanced by high ceilings, kitchen with a range of fitted wall and base units along with access to the rear, two good sized bedrooms, and a bathroom WC completes the internal accommodation. Further benefits include gas central heating and double glazing.
Externally, the property enjoys an easy to maintain town garden to the front, along with a private enclosed rear yard.
The property is well-positioned for access to a wealth of local amenities, including independent shops, supermarkets, cafes, and leisure facilities. There are also excellent transport links, offering quick access to nearby schools, along with the vibrant Fish Quay, King Edwards Bay, and Tynemouth Long Sands Beach.
Early viewing is highly recommended. For further information or to arrange an appointment, please contact our coastal team on 0191 257 2000.
Tenure
The agent understands the property to be leasehold. However, this should be confirmed with a licenced legal representative.
Council Tax Band: A
Living Room - 4.79 x 3.93 (15'8" x 12'10") -
Kitchen - 4.29 x 2.12 (14'0" x 6'11") -
Main Bedroom - 4.44 x 3.93 (14'6" x 12'10") -
Bedroom Two - 3.68 x 2.32 (12'0" x 7'7") -

This property is marketed by

Jan Forster Estates - Newcastle, Newcastle upon Tyne, NE3
4.3/5 Rating
(1052) reviews
Agent Statistics (Based on 1052 Reviews) :