The UK's Largest Customer Review Website for the Property Industry
The UK's Largest Customer Review Website for the Property Industry
Back to Property Listings
Crofton Drive, Renfrew, PA4
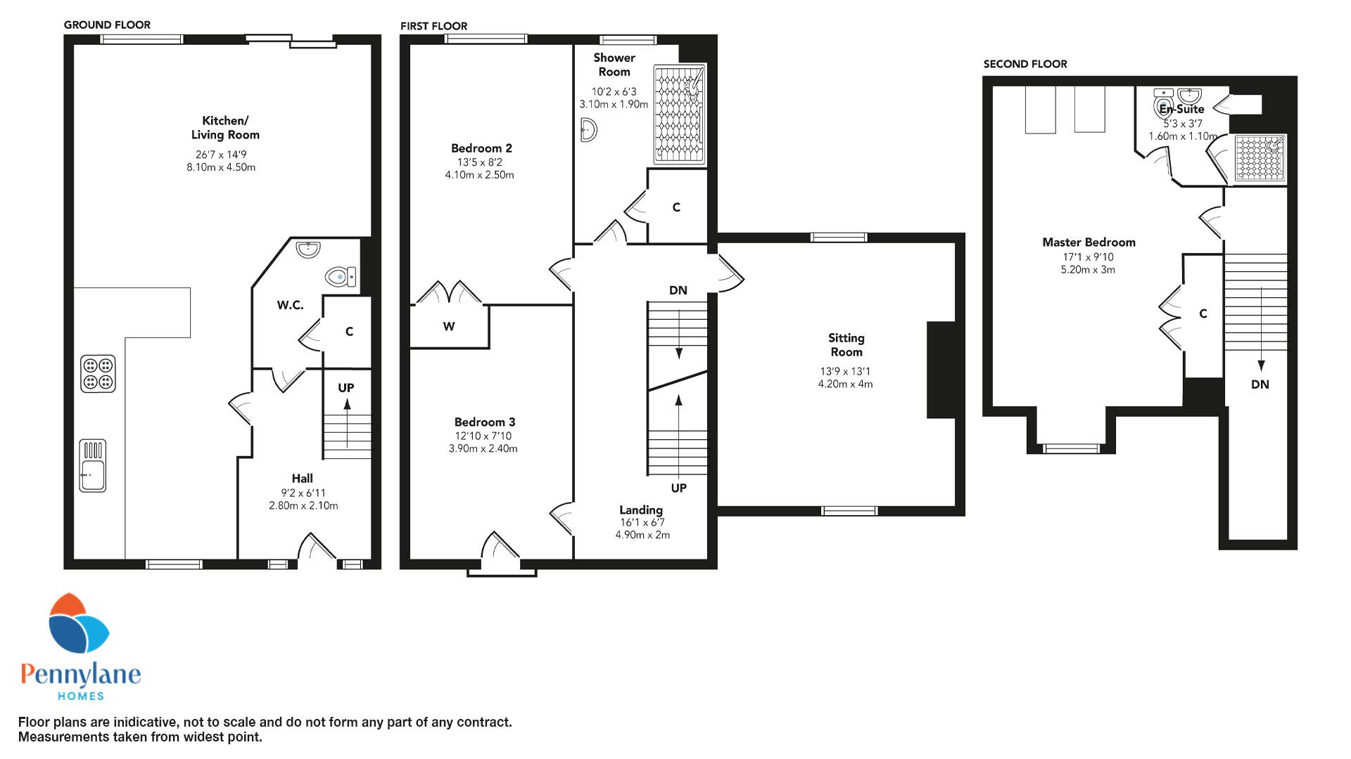
The property is accessed via a welcoming entrance hallway with convenient downstairs WC and stairway to upper level. The fantastic open plan living space comprises a fully fitted kitchen to the front and spacious living/dining area to the rear with patio door access to the private rear gardens.
On the first floor floor there is a spacious secondary lounge, a flexible space which could make a perfect additional bedroom. There are two spacious bedrooms, with the rear bedroom benefiting from fitted wardrobes and the front bedroom currently utilised as a home office. The family bathroom comprises a modern three piece suite with shower over the bath, glass shower screen and under sink vanity unit.
A further staircase provides access to the master suite with mirror fronted fitted wardrobes, Velux windows and en-suite shower room with walk in shower cubicle.
The property benefits from gas central heating and double glazing throughout.
Externally there is a single garage located within the rear courtyard, where additional parking is also available.
Crofton Drive is a popular residential street within the highly sought after Ferry Village area of Renfrew. All town centre amenities are available a short walk away and all manner of retail and leisure opportunities are available within Braehead Shopping Centre and Xsite Entertainment Complex.
Notice
Please note we have not tested any apparatus, fixtures, fittings, or services. Interested parties must undertake their own investigation into the working order of these items. All measurements are approximate and photographs provided for guidance only.
Council Tax
Renfrewshire Council, Band E
Utilities
Electric: Mains Supply
Gas: Mains Supply
Water: Mains Supply
Sewerage: Mains Supply
Broadband: Unknown
Telephone: Unknown
Other Items
Heating: Not Specified
Garden/Outside Space: No
Parking: No
Garage: No

Agent Statistics (Based on 197 Reviews) :