The UK's Largest Customer Review Website for the Property Industry
The UK's Largest Customer Review Website for the Property Industry
Back to Property Listings
Crawford Road, Sutton Coldfield
A once-in-a-lifetime opportunity to secure a detached family home in the very heart of Walmley Village — a location you simply will not see again.Tucked away on a dominant corner plot within a quiet, residential and neighbourly setting, Crawford Road occupies a truly unique position — offering privacy, flexibility and exceptional future potential, all just a stone’s throw from the village centre.
The location alone sets this home apart. From your front door, you are moments from local shops, a much-loved bakery, takeaway restaurants, bus links providing easy access into Sutton Coldfield and Birmingham City Centre, as well as well-regarded local schools. Central. Convenient. Irreplaceable.Externally, the property benefits off-road parking — immediately outside the front door — a rare and valuable asset in such a central village position.
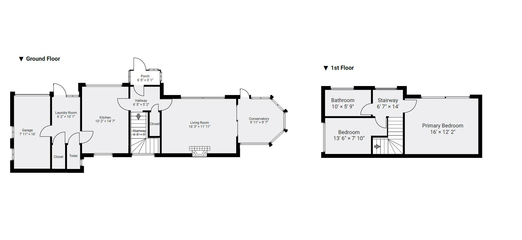
Internally, the accommodation begins with a welcoming reception hall. To the left, a generous main lounge provides an excellent space for entertaining, hosting friends and family, or enjoying quiet evenings in. A charming conservatory flows directly off the lounge, offering panoramic views across the side garden and creating a lovely connection between indoor and outdoor living.To the opposite end of the house sits a fitted kitchen breakfast room, spanning the full length of the property — unusually large for a home in this price range and offering superb scope to modernise, reconfigure or extend. Off the kitchen is a highly practical utility room with downstairs WC, enhancing everyday functionality.
The garage is a standout feature, presenting a wealth of development opportunity. Planning permission has previously been granted for conversion into a ground-floor bedroom with en suite and a modernised utility space — ideal for multi-generational living, a self-contained annex, or flexible guest accommodation. With its own potential access via the garage, this space could operate entirely independently if desired.
Upstairs, the property continues to impress with two genuine double bedrooms. The principal bedroom is exceptionally spacious — flooded with natural light and offering scale rarely seen in homes of this type. Completing the first floor is a four-piece white suite family bathroom, including bath, separate shower, WC and wash basin.
Further development potential (subject to planning permission) exists to extend over the garage, allowing for the creation of an additional bedroom with en suite. Combined with the garage conversion, this could transform the property into a three or even four-bedroom home, making the opportunities here truly bountiful.
Offered to the market with no onward chain, this home does require some modernisation — but that is precisely where its value lies. A blank canvas in an unbeatable location, with flexibility that appeals to first-time buyers, downsizers, sideways movers, investors and developers alike.Properties of this nature, in this location, do not come back around.Viewing by appointment only is essential to fully appreciate the position, potential and rarity of this exceptional home.
BUYERS: Identity Verification Fee - We are required by law to conduct anti-money laundering checks on all those buying a property as part of our due diligence. As agents acting on behalf of the seller, we are required to verify the identity of all purchasers once an offer has been accepted, subject to contract. The initial checks are carried out on our behalf by Lifetime Legal . A non-refundable administration fee of £40 + VAT (£48 including VAT) applies which covers the cost of obtaining relevant data and any manual checks and monitoring which might be required. This fee will need to be paid by you in advance of us issuing a memorandum of sale, directly to Lifetime Legal, and is non-refundable.
Garage - 7' 11'' x 16' 0'' (2.41m x 4.87m)
Laundry Room - 6' 2'' x 10' 1'' (1.88m x 3.07m)
Kitchen - 10' 2'' x 14' 7'' (3.10m x 4.44m)
Porch - 6' 5'' x 3' 1'' (1.95m x 0.94m)
Living Room - 16' 3'' x 11' 11'' (4.95m x 3.63m)
Conservatory - 9' 11'' x 9' 7'' (3.02m x 2.92m)
Bathroom - 10' 0'' x 5' 9'' (3.05m x 1.75m)
Bedroom - 13' 6'' x 7' 10'' (4.11m x 2.39m)
Primary Bedroom - 16' 0'' x 12' 2'' (4.87m x 3.71m)

This property is marketed by

Paul Carr Estate Agents - Walmley, Sutton Coldfield, B76
4.4/5 Rating
(1925) reviews
Agent Statistics (Based on 1925 Reviews) :