The UK's Largest Customer Review Website for the Property Industry
The UK's Largest Customer Review Website for the Property Industry
Back to Property Listings
Craighall Bank, Kilmarnock
Stewart residential are delighted to bring to the market a this stunning detached property on Westlin Walk in East Ayrshire, you are greeted by a spacious and welcoming entrance hall. The ground floor boasts the family reception room, providing ample space for entertaining guests or relaxing with the family. The modern extended kitchen is equipped with all the necessary appliances and offers plenty of storage space and a dining area, with utility room and WC, access to the rear private enclosed rear garden. On the upper level, you will find four generously sized bedrooms, each offering a peaceful retreat at the end of a long day. The master bedroom benefits from an en-suite bathroom and built in wardrobes, while the remaining bedrooms share the additional family bathroom.
Outside, the property features a well-maintained garden, perfect for enjoying the outdoors during the warmer months. There is a mono blocked driveway offering parking space for two vehicles, ensuring convenience for you and your guests. The property is fitted with double glazing and Gas Central Heating, providing warmth and comfort throughout the year. Charging point for electric cars.
Located in the desirable area of Westlin Walk, East Ayrshire, this property offers a peaceful and picturesque setting for you to call home. With easy access to local amenities, schools, and transport links, this property is ideal for families looking to settle down in a friendly community.
Westlin Walk itself offers a range of activities and attractions for residents to enjoy. Take a leisurely stroll through the nearby parks and green spaces, or explore the local shops and cafes. For those who enjoy outdoor pursuits, the surrounding countryside provides plenty of opportunities for hiking, cycling, and wildlife spotting.
If you`re a history buff, be sure to visit the nearby historic sites and museums, where you can learn more about the rich heritage of East Ayrshire. And for those who enjoy a round of golf, the local courses offer a challenging and scenic experience for players of all skill levels.
With its spacious interior, convenient location, and charming surroundings, this detached property on Westlin Walk is sure to impress even the most discerning buyer. Don`t miss out on the opportunity to make this house your new home. Contact us today to arrange a viewing and start your journey towards owning your dream property in East Ayrshire.
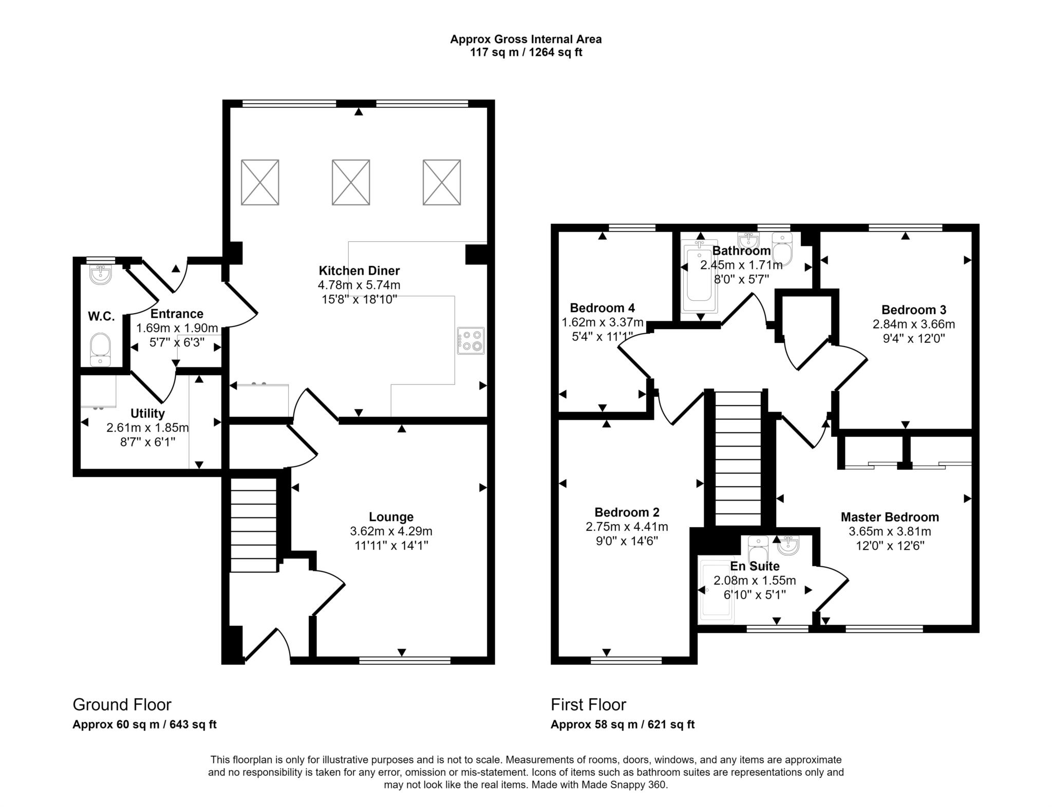
LOUNGE - 11'10" (3.61m) x 14'1" (4.29m)
KITCHEN - 15'8" (4.78m) x 18'10" (5.74m)
UTILITY ROOM - 8'7" (2.62m) x 6'1" (1.85m)
WC
MASTER BEDROOM - 12'0" (3.66m) x 12'6" (3.81m)
EN SUITE - 6'10" (2.08m) x 5'1" (1.55m)
BEDROOM TWO - 9'1" (2.77m) x 14'6" (4.42m)
BEDROOM THREE - 9'4" (2.84m) x 12'0" (3.66m)
BEDROOM FOUR - 5'4" (1.63m) x 11'1" (3.38m)
FAMILY BATHROOM - 8'0" (2.44m) x 5'7" (1.7m)
Notice
Please note we have not tested any apparatus, fixtures, fittings, or services. Interested parties must undertake their own investigation into the working order of these items. All measurements are approximate and photographs provided for guidance only.
Council Tax
East Ayrshire Council, Band D
Utilities
Electric: Mains Supply
Gas: Mains Supply
Water: Mains Supply
Sewerage: Mains Supply
Broadband: FTTP
Telephone: None
Other Items
Heating: Gas Central Heating
Garden/Outside Space: Yes
Parking: Yes
Garage: No

Agent Statistics (Based on 0 Reviews) :