The UK's Largest Customer Review Website for the Property Industry
The UK's Largest Customer Review Website for the Property Industry
Back to Property Listings
Cowslip Drive, Little Thetford, Ely
Cheffins are delighted to bring to the market this stunning, modernised family home, located in a cul de sac with field views to the rear, in the village of Little Thetford.
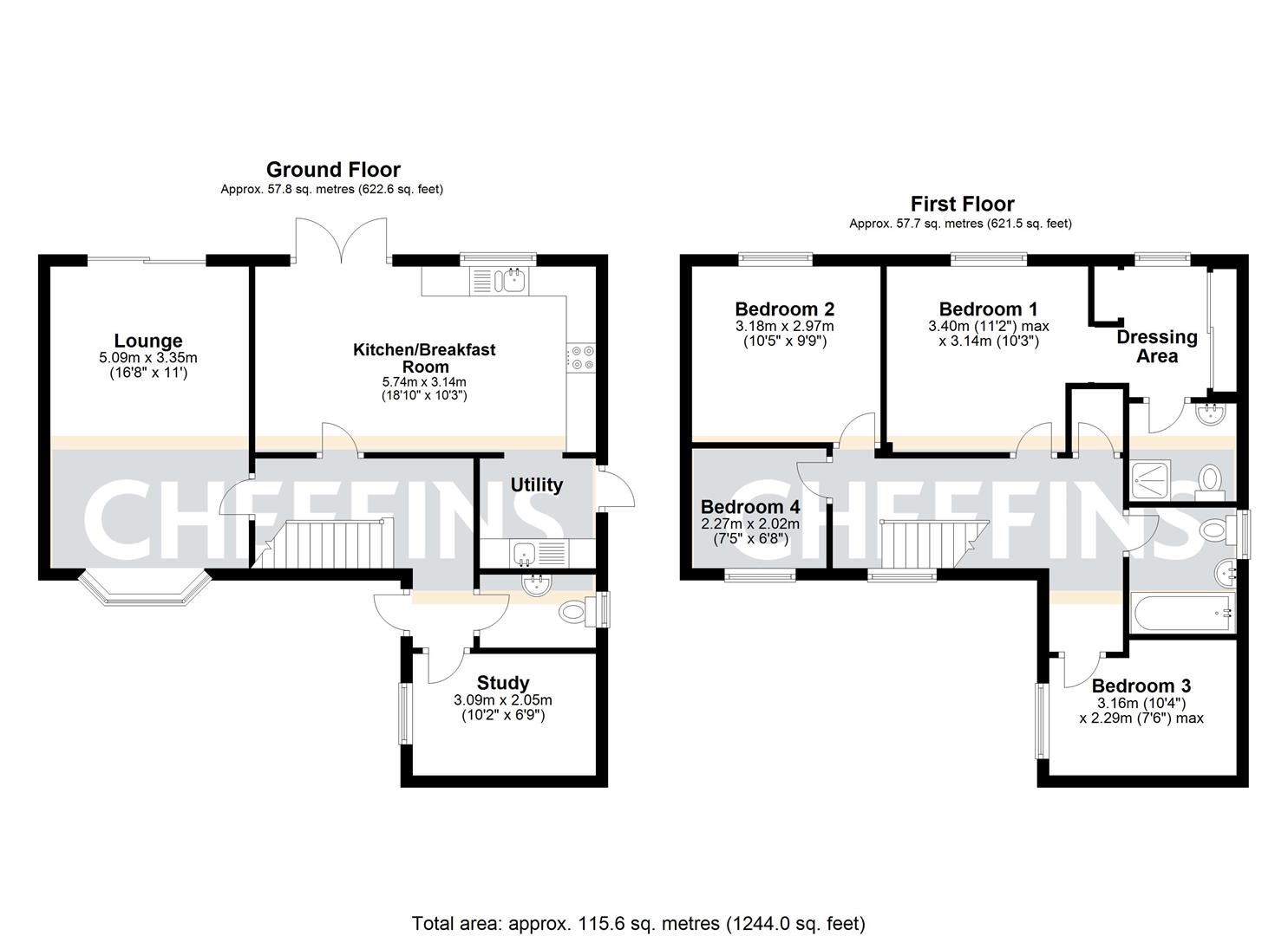
This beautiful home offers flexible and spacious accommodation from an entrance hallway, a study / playroom, a dual aspect lounge that overlooks the rear garden, a stunning kitchen / diner that provides access to the rear garden, a utility room and a ground floor cloakroom. Upstairs, there are 4 good size bedrooms, the master benefitting from an ensuite shower room, plus a family bathroom that completes the internal accommodation.
Outside the property is a driveway to the front providing off road parking and leads up to the double garage. The garage has 2 up & over doors plus power & light connected. At the rear is a mainly laid to lawn garden with paved patio, gated access to front & fields beyond.
To fully appreciate this spectacular family home, an early viewing is highly recommended!
Entrance Hall - Door to front, stairs leading to first floor, radiator and under stairs storage cupboard.
Kitchen / Diner - Refitted with a range of base and wall units, cupboards and drawers with work surfaces over, double oven, 4 ring induction hob with extractor hood over, integral dishwasher, one and a half bowl sink with mixer tap over, integral fridge freezer, window to the rear, door to rear, radiator. breakfast bar.
Utility Room - Range of base wall units with work surfaces over, door to side, stainless steel sink with mixer tap over, plumbing for washing machine.
Study / Playroom - Window to the front, radiator, fitted shelving.
Cloak Room - Fitted with a two piece suite, comprising of low level WC and vanity wash hand basin, radiator and window to the side.
Lounge - Bay window to front, patio doors to rear leading in to the garden and two radiators
First Floor Landing - Window to the side, loft access, airing cupboard housing the hot water tank and window to the front.
Master Bedroom - Window to the rear enjoying field views, radiator, dressing room also with window to rear and fitted wardrobes
Ensuite - Fitted with a three piece suite comprising of low level WC, vanity wash hand basin and a shower cubicle, window to the side, heated towel rail and spotlights.
Bedroom 2 - Window to the rear enjoying field views and radiator.
Bedroom 3 - Window to the front and radiator.
Bedroom 4 - Window to the side and a radiator.
Family Bathroom - Fitted with three piece suite comprising of low level WC, vanity wash hand basin, panelled bath with shower over, window to the side and heated towel rail.
Outside - Mainly laid to lawn front garden, driveway providing off road parking leading up to the double garage. The double garage has two up and over doors, door to rear into the garden, power and light connected and fitted boiler. The south facing rear garden is mainly laid to lawn, paved patio, outdoor power socket, gated access to the front and fields to the rear.
Viewing Arrangements - Strictly by appointment with the Agents.
Agents Note - Please note, there is currently a newly installed Electric Vehicle Charging point that may not be left at the property, but could be available by negotiation.

Agent Statistics (Based on 1313 Reviews) :