The UK's Largest Customer Review Website for the Property Industry
The UK's Largest Customer Review Website for the Property Industry
Back to Property Listings
Country House near Somerton
An absolutely delightful period house in a quiet, rural setting on village outskirts. Generous accommodation, style and charm, beautiful gardens and land.
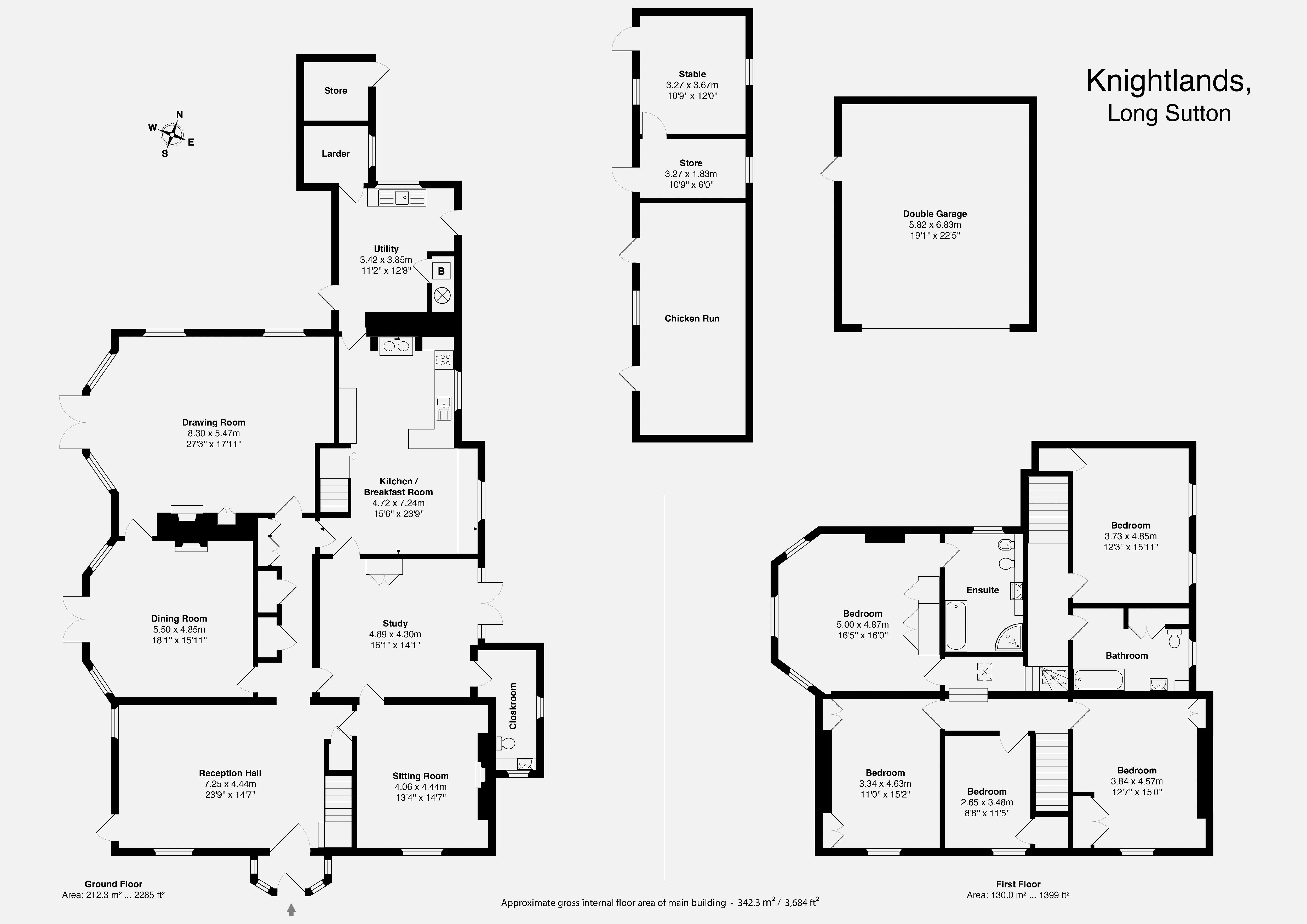
KNIGHTLANDS, LONG SUTTON, LANGPORT, TA10 9HX
Langport 3 miles, Somerton 2 miles, Street 8 miles, Castle Cary Rail Station 13 miles, Yeovil 10 miles.
Summary
A charming country house in a quiet peaceful setting with generous accommodation and beautiful grounds. On the market for the first time in 70 years.Knightlands is an idyllic family property being a period house retaining its considerable character and charm. It has a reception hall, drawing room, dining room, sitting room, study, kitchen/breakfast room, utility/boot room, 5 bedrooms and 2 bathrooms.Outside are useful outbuildings and beautiful, well landscaped and maintained grounds of over two and a half acres. In addition, the owners have, for many years, rented just under 4 acres of Glebe land. This land may continue to be available. A planning application to build another house in the grounds has been submitted and is awaiting a decision.
Location
The property has a quiet and peaceful rural setting alongside a small country lane. It's less than half a mile from the village green to the west and about a mile to the golf clubhouse to the south. Within a short drive is the A372 which gives fast access to Langport, Somerton and the A303. (London road).
Description
Knightlands stands within its own mature grounds in peaceful countryside with a carriage (in-and-out) drive. The house faces south and west with fine views and several French doors opening to the gardens.The house is stone bult under a slated roof and retains many period details. It has been in two generations of the same family for 70 years and whilst improved in many ways, including central heating, and double glazing, it has held its original style and charm.
Accommodation
The house has both elegant formal and informal rooms, ideal for entertaining, and both large and small family living. The front door opens into a reception hall with a staircase and a door to the inner hall which runs through the house and has several excellent storage cupboards for china and glassware. The dining room has a full width bay with central French doors flanked by large windows. There's also an open fireplace and a door leading into the drawing room. This also has a door from the hall and is a beautiful, well-proportioned room, 27ft. in length with a high ceiling. Again, it has a full width bay with central French doors and a fireplace with a Jetmaster.Immediately, and conveniently outside the drawing room is a paved terrace with a western aspect.
*
Returning to the hall, a door opens into the comfortable sitting room which has fitted bookshelves a window seat and a fireplace with a Jetmaster. It has a door to the adjacent study which also has a door to the hall, French doors to the garden, a fireplace and a cloakroom with loo and basin.The kitchen and breakfast room is adjacent with doors to the study and the hall. It has an electric Aga, an additional cooker, fitted units and plenty of space for the breakfast table and chairs.Beyond the kitchen is a utility/boot room with a boiler/cylinder cupboard, sink unit, a walk-in larder and a garden door.
First Floor
This is approached by two staircases, the main staircase from the hall and the backstairs from the kitchen.There are five bedrooms and two bathrooms. Three of the bedrooms are on the south side of the house. All have fitted wardrobes/cupboards and wonderful countryside views.The main bedroom has a large bay and faces west. Again, there are wonderful views over the garden and countryside and to the village church. The room also has an en suite bathroom which has both a bath and shower. On the east side of the house are the fifth bedroom and the family bathroom.
Outbuildings
The main drive enters the grounds, and a spur continues to the large garage on the northeast side of the house. Adjacent and screened by a hedge is the oil tank. Further beyond is a gravel yard and in the orchard a chicken house and run and 2 stables.
The Grounds
Knightlands has beautiful and well landscaped mature gardens which complement the house extremely well. There are lawns, numerous shrubs and trees, herbaceous beds, a Chesil Beach, and a wild garden with large beech and other trees. Further into the garden is the former tennis court lawn and a well-arranged vegetable garden. The garden has various rooms, identified with mature yew and other hedges and beyond is an orchard.
Glebe Land
Immediately adjoining are 2 fields of level lying, permanent pasture totalling nearly 4 acres. The owners of Knightlands have rented the fields for many years and this arrangement may be continued. The agents will provide further details if required.
Boundaries
One of the photographs has markings in red and and blue to indicate boundaries. The land edged in red is the property. The blue indicates the Glebe land.
Other points
Freehold. Not listed. Mains water, electricity and drainage. Oil central heating. Grounds 2.57 acres plus a further 3.74 acres leased.EPC rating. 74 Band (F). Council Tax Band G.
Planning application
An application has been made for "The erection of a new dwelling, car port and vehicle access." This application was submitted in January 21 and is awaiting decision. Full details are available from the agents.
About the area
The Parish of Long Sutton is situated in the heart of Somerset, bordered to the south by the Levels and the river Yeo and to the north by rolling hills and woods. At the centre of the village is the Green which is surrounded by a splendid XVIth century church and other interesting, listed buildings making it one of the most attractive villages in the county. The village has a church, primary school, village hall, shop and post office, golf club, an excellent gastro pub (Devonshire Arms) and a friendly vibrant community with a good number of clubs and associations. More extensive facilities are on hand in the local towns of Somerton, Street, Langport , Sherborne and Taunton with their wide range of retail and recreational facilities.
**
Nearby Castle Cary station offers regular mainline services to London (Paddington) taking from 110 minutes. Alternatively, Yeovil/Sherborne junction offers services to London (Waterloo) taking from 135 minutes. The A303 (becoming the M3 to London) provides access to London and the West Country.There is an outstanding choice of state and independent schools in the area including Hazelgrove at Sparkford, Millfield at Street, Sherborne schools, Downside at Shepton Mallett, Wells Cathedral School and the Bruton schools
Important Notice
Roderick Thomas, their clients and any joint agents state that these details are for general guidance only and accuracy cannot be guaranteed. They do not constitute any part of any contract. All measurements are approximate and floor plans are to give a general indication only and are not measured accurate drawings. No guarantees are given with regard to planning permission or fitness for purpose. No apparatus, equipment, fixture or fitting has been tested. Items shown in photographs are not necessarily included. Buyers must rely on information passed between the solicitors with regard to items included in the sale. Purchasers must satisfy themselves on all matters by inspection or otherwise. VIEWINGS Interested parties are advised to check availability and current situation prior to travelling to see any property.

Agent Statistics (Based on 1 Reviews) :