The UK's Largest Customer Review Website for the Property Industry
The UK's Largest Customer Review Website for the Property Industry
Back to Property Listings
Couhe Close, Swaffham
Situated on the popular Couhe Close area of Swaffham, Longsons are delighted to bring to the market this superb very well presented detached two bedroom bungalow. Boasting a garage, low maintenance gardens, ample parking for several vehicles, conservatory, gas central heating and UPVC double glazing.
Viewing is highly recommended!
Offered for sale CHAIN FREE!
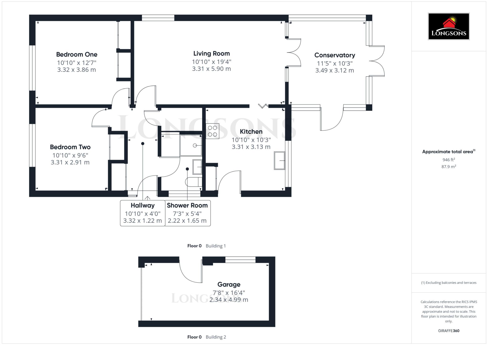
Briefly the property offers entrance hall, living room, conservatory, kitchen, two bedrooms, shower room, garage (currently used as utility room), low maintenance gardens, gas central heating and UPVC double glazing.
Swaffham
Swaffham, situated in the heart of Norfolk, is a sought-after market town that boasts a wide range of independent shops, traditional pubs, and delightful restaurants and cafes. This vibrant town is well-served, offering amenities like a Waitrose, Tesco and other supermarkets, a fantastic Saturday market, three doctors` surgeries, abundant free parking, as well three primary schools and a secondary school. With its proximity to the A47, you can reach Kings Lynn in approximately 15 miles and the bustling city of Norwich in around 30 miles. Additionally, excellent bus services connect to nearby villages and surrounding towns and cities. Being in the heart of Norfolk, Swaffham is in the perfect location for the North Norfolk Coast, Thetford Forestry Commission, and close to train links to Cambridge and London. Dereham 12 miles, Watton 10 miles, Norwich 34 miles.
Entrance Hall
UPVC double glazed entrance door to side, built-in storage cupboard, built-in cupboard housing hot water cylinder, loft access, radiator.
Living Room - 10'10" (3.3m) x 19'4" (5.89m)
Feature fire place (not in use) with ornate surround and marble effect hearth, UPVC double glazed French doors opening to conservatory with UPVC double glazed windows either side, UPVC double glazed window to side, radiator.
Conservatory - 11'5" (3.48m) x 10'3" (3.12m)
UPVC double glazed conservatory with French doors opening to rear garden, entrance door opening to side, wall light, radiator.
Kitchen - 10'10" (3.3m) x 10'3" (3.12m)
Range of fitted kitchen units to walls and floor, work surface over, stainless steel one and half bowl sink unit with mixer tap and drainer, integrated Bosch electric double oven, integrated Bosch gas hob with extractor hood over, space for dishwasher, space for upright fridge/freezer, built-in storage cupboard, tiled splashback, UPVC double glazed entrance door to side, UPVC double glazed window to rear, under unit lighting.
Bedroom One - 10'10" (3.3m) x 12'7" (3.84m)
Built-in wardrobes, UPVC double glazed window to front, radiator.
Bedroom Two - 10'10" (3.3m) x 9'6" (2.9m)
Built-in wardrobe, UPVC double glazed window to front, radiator.
Shower Room
Fully tiled shower cubicle, hand wash basin set within fitted cabinet, concealed cistern WC, towel radiator, extractor fan, tiled splashback, obscure glass UPVC double glazed window to side, tiles to floor.
Garage - 7'8" (2.34m) x 16'4" (4.98m)
Currently used as utility room, double doors to front, UPVC double glazed entrance door to side, UPVC double glazed window to side, space and plumbing for washing machine, electric lights and power.
Outside Front
Front garden laid to low maintenance shingle, parking for several vehicles, driveway to garage, gated access to rear garden.
Rear Garden
Enclosed rear garden laid to low maintenance shingle, paved patio seating area, selection of shrubs, plants and flowers to beds and borders, two wooden garden sheds, wooden fence to perimeter, gated access to front.
Agent`s Note
EPC rating D66 (Full copy available on request)
Council tax band B (Own enquiries should be made via Breckland District Council)
what3words /// evaporate.stretch.blacked
Notice
Please note we have not tested any apparatus, fixtures, fittings, or services. Interested parties must undertake their own investigation into the working order of these items. All measurements are approximate and photographs provided for guidance only.
Utilities
Electric: Mains Supply
Gas: Mains Supply
Water: Mains Supply
Sewerage: Mains Supply
Broadband: Cable
Telephone: Landline
Other Items
Heating: Gas Central Heating
Garden/Outside Space: Yes
Parking: Yes
Garage: Yes

Agent Statistics (Based on 1 Reviews) :