The UK's Largest Customer Review Website for the Property Industry
The UK's Largest Customer Review Website for the Property Industry
Back to Property Listings
Cormont Road, Camberwell, SE5
Vast Grade II Listed Mansion Block Three Bedder - Over 1200Sq Ft - CHAIN FREE.
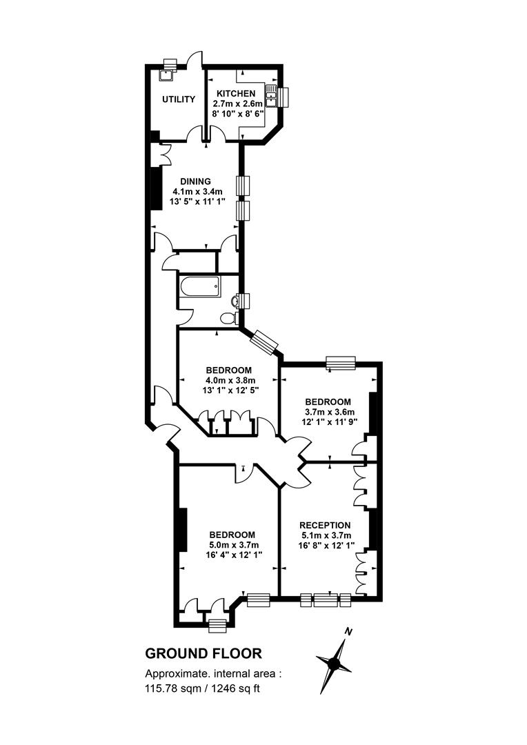
They don't build them like this anymore! This uniquely generous three bedder is spread lavishly over the ground floor of a landmark Grade II listed late Victorian mansion block. Enjoying a particularly majestic parkside position, the building was built by the French aristocratic Minet family in 1895 and stands at the heart of the Minet Conservation Area. Built for the area's wealthy families, the block has a dramatic skyline that includes the Minet family coat of arms, stepped gables, creatively shaped chimney pots and terracotta cats (Minet meaning 'little cat' in French). It boasts further magnificent original detail throughout the interior including stone floor and timber flooring, picture rails, cornicing and some show-stopping feature mantels and hearths. Indeed, the current owners proudly display wonderful framed pictures of the building in days gone - it's that sort of property. Accommodation comprises a wonderful reception room, three large double bedrooms, second reception/diner, kitchen, utility room, bathroom and handy guest shower room. There is direct access to a pretty shared garden and communal carpark, and you're overlooking the joyously presented award-winning Myatt's Field Park with its bandstand, fully-licensed café, mature, fragrant roses, tennis courts and wonderful sense of community. Nearby Camberwell offers a full range of shops, weekend markets and opportunities for both café, restaurant and pub dining. Oval and Brixton stations provide a Zone 2 Tube connection and Loughborough Junction gives access to Thameslink services.
A most wonderful communal hall with original tiled walls, arched original doors and impressive stone staircase creates the perfect first impression. An original inner door with brass letterbox opens to the fantastically spacious L-shaped hall which dons picture rails and ubiquitous shelving. Heading right you find your gloriously bright living room boasting original wooden flooring, feature mantel, picture rails and lovely bespoke fitted storage. A triptych of sash windows, each with louvered blinds fronts the development with views toward Myatt's Field. To the rear of this comes a delightful rear-facing bedroom where designer wallpaper, cornicing and ceiling rose will charm you silly. A second even larger bedroom comes next boasting more tall bespoke storage, cornicing and another rear-facing sash window. A second living room or third bedroom completes this section with more parkside views, a window seat and a charming feature mantel.
Continuing your intrepid exploration you reach the far side of the hall where you'll note gorgeous rustic original timber floorboards. The bathroom is amongst the most charming we've seen with a roll-top bath, dainty wash hand basin, pretty Delft wall tiles and wooden panelling to dado rail level, as well as underfloor heating. There's a brass heated towel rail and period style loo to complete the look. A handy guest shower room (also with underfloor heating) comes next along the hall. Beyond this is your side aspect dining room with more fitted storage, another feature mantel and a gorgeous tiled hearth. A duo of be-louvered sash windows supplies a calming vista over the communal greenery and there are numerous wall-mounted candle holders (yum!). To the rear sits the DeVol kitchen where country-style cabinets and counters run generously to an L-shape. There's a four ring Stove's range, butler sink, integrated Bosch dishwasher and tonnes of storage. A handy utility room (also DeVol) with rear access, wooden counters, integrated Bosch freezer and integrated washer dryer completes the tour nicely.
A number of buses on Camberwell New Road will whizz you to the underground station at the Oval (Northern Line) (a fifteen-minute walk away) or take one directly into the West End (a 15-20 minute trip). If you work in the city, Loughborough Junction mainline station (Blackfriars & City Thameslink) is a five-minute walk away. There are shops too within easy walking distance. After a hard day at the office chill out at your locals 'The Bear' or the much loved 'Sun of Camberwell', each with good food and great cocktails. We also love the 'Camberwell Arms' for tasty nosh and a pint. Nearby Brixton has a further flood of fab things to do. The 'Ritzy' cinema is a fab spot to catch art house and mainstream movies. Windrush Square is a fine spot for a sit down. There's a huge selection of bars and restaurants - we love the Brixton Village covered market. If the weather's good you can practice your forehand at the tennis courts in Myatt's Fields opposite.
Tenure: Leasehold
Lease Length: 172 years remaining
Service Charge: £2,984 per annum (including building insurance)
Council Tax Band: D

Agent Statistics (Based on 168 Reviews) :