The UK's Largest Customer Review Website for the Property Industry
The UK's Largest Customer Review Website for the Property Industry
Back to Property Listings
Coombe Road, Kingston Upon Thames
Saxon Kings are delighted to bring to the market this immaculately presented 1 bedroom apartment within a lift serviced development.
Fantastic location offering convenience and lifestyle, just a few minutes walk from local restaurants and supermarkets and only a short distance from Kingston town centre, Norbiton Station and Richmond Park.
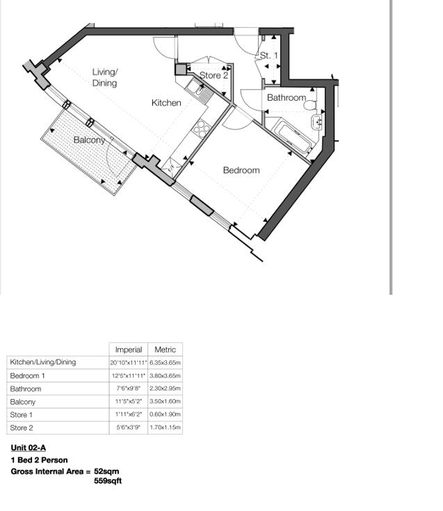
The property boasts a bright and spacious open plan living room/ kitchen with integrated appliances, a well-proportioned double bedroom and contemporary bathroom. The well designed layout includes extensive storage within the property.
Tastefully decorated throughout, this modern property is ready to move into while still offering potential for personalisation.
Added benefits include private balcony, entry phone system and secure bike storage.

This property is marketed by

Saxon Kings - Kingston upon Thames, Kingston Upon Thames, KT2
4.8/5 Rating
(50) reviews
Agent Statistics (Based on 50 Reviews) :