The UK's Largest Customer Review Website for the Property Industry
The UK's Largest Customer Review Website for the Property Industry
Back to Property Listings
Concanon Road, SW2
Keating Estates are proud to present to market this beautifully finished two double bedroom, two bathroom garden flat. Set within an attractive Victorian end-of-terrace and boasting over 800 square feet, this lovely property further benefits from a brilliant location between Clapham and Brixton High Streets.
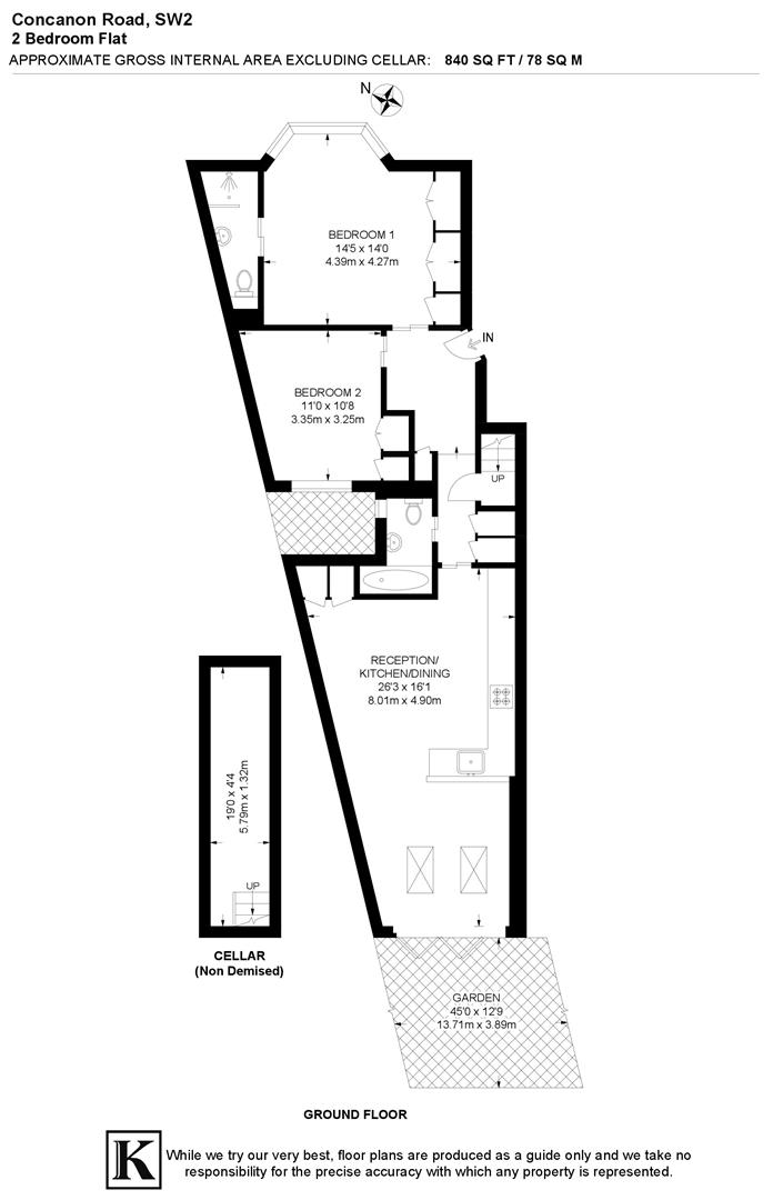
Full Description - Keating Estates are proud to present this beautifully designed ground floor, two-bedroom, two bathroom garden flat, set within a handsome end-of-terrace Victorian conversion on a quiet residential street just moments from central Brixton. This meticulously finished property combines contemporary style with period charm, offering over 800 square feet of versatile living space, a private garden, and an enviable location between Brixton and Clapham.
Upon entering the property, you're immediately struck by the generous proportions and the abundance of natural light that flows throughout.
The heart of the home is the stunning open-plan kitchen and living area located at the rear of the property-a bright and sociable space, perfect for entertaining or relaxing in comfort. The modern kitchen is fitted with sleek, handleless white cabinetry, high-spec Siemens integrated appliances, and finished with an abundance of worktop space. The wraparound layout offers a picturesque garden view from the kitchen sink.
Adjacent, the living and dining areas flow effortlessly, with ample space for hosting and day-to-day living. The living area accommodates a large sofa and media unit, forming a fluid and highly functional space that adapts seamlessly to both quiet evenings and lively gatherings. Numerous skylights overhead and wide bi-fold doors across the rear of the property allow sunlight to flood the space, creating a seamless connection with the private garden.
The bi-fold doors open fully onto the garden, enhancing the indoor-outdoor living experience. The long, south-facing private garden is a peaceful retreat, with a patio at the rear and low-maintenance artificial lawn, bordered by mature Japanese Acer trees. These are lit beautifully at night with integrated outdoor lighting. Whether you're dining al fresco, reading in the sun, or hosting a barbecue, this thoughtfully landscaped space enhances the home's appeal year-round.
Both bedrooms are well-proportioned doubles and feature generous built-in storage. The principal bedroom, situated at the front of the property, benefits from a large bay with sash windows and ample wardrobe space. Recently refreshed with a Farrow & Ball paint finish in Preference Red, the room exudes depth and warmth. A smart, tiled en-suite-attractively finished with modern fixtures and fittings-completes the interior, featuring a walk-in shower. The second double bedroom sits quietly at the rear, a tranquil space ideal for guests, a nursery, or a home office.
Leading off the hallway is the stylish family bathroom, thoughtfully positioned for visiting guests. Featuring a full-sized bath and overhead shower, the bathroom has also been freshly redecorated with Farrow & Ball's Studio Green, adding a dramatic, boutique-hotel feel.
This flat has been enhanced with several practical and quality upgrades, including underfloor heating throughout, ensuring comfort in every season. There is access to a large cellar, ideal for long-term storage and hiding away lesser-used items. Additionally, there is significant built-in storage in the open-plan kitchen area and hallway.
Concanon Road is a quiet and neighbourly street tucked away in a sought-after pocket, with the restaurants, supermarkets, and bars of Acre Lane just a short walk away. Within a seven-minute stroll is everything Brixton has to offer-from music venues and the ever-popular Brixton Village, to large-brand shops and excellent transport links, including the first stop on the Victoria Line. Vibrant and diverse Clapham High Street is eleven minutes in the other direction, offering great nightlife, along with the cafés and boutique shops of Abbeville Village, Venn Street, and Clapham Old Town, all close by.
Potential purchasers will benefit from access to both the Northern Line (Clapham North, Clapham Common, and Clapham South stations) and the Victoria Line (Brixton station). This property also enjoys proximity to two of South London's most loved green spaces-Clapham Common and Brockwell Park, the latter home to the iconic 1930s Lido.
Chain-free.

Agent Statistics (Based on 1262 Reviews) :