The UK's Largest Customer Review Website for the Property Industry
The UK's Largest Customer Review Website for the Property Industry
Back to Property Listings
Colleton Close, Exmouth
A spacious three bedroom end of terrace house offered for sale with no onward chain, occupying a generous plot and enjoying distant views towards the Exe Estuary. The property is located within a highly sought after residential area, close to a range of local schools and amenities.
The accommodation benefits from gas central heating and double glazing and comprises, in brief, a hallway, lounge, separate dining room, conservatory, kitchen, store/workshop, downstairs WC, three bedrooms, and a bathroom/WC.
Externally, the property features good sized gardens to both the front and rear, providing ample outdoor space.
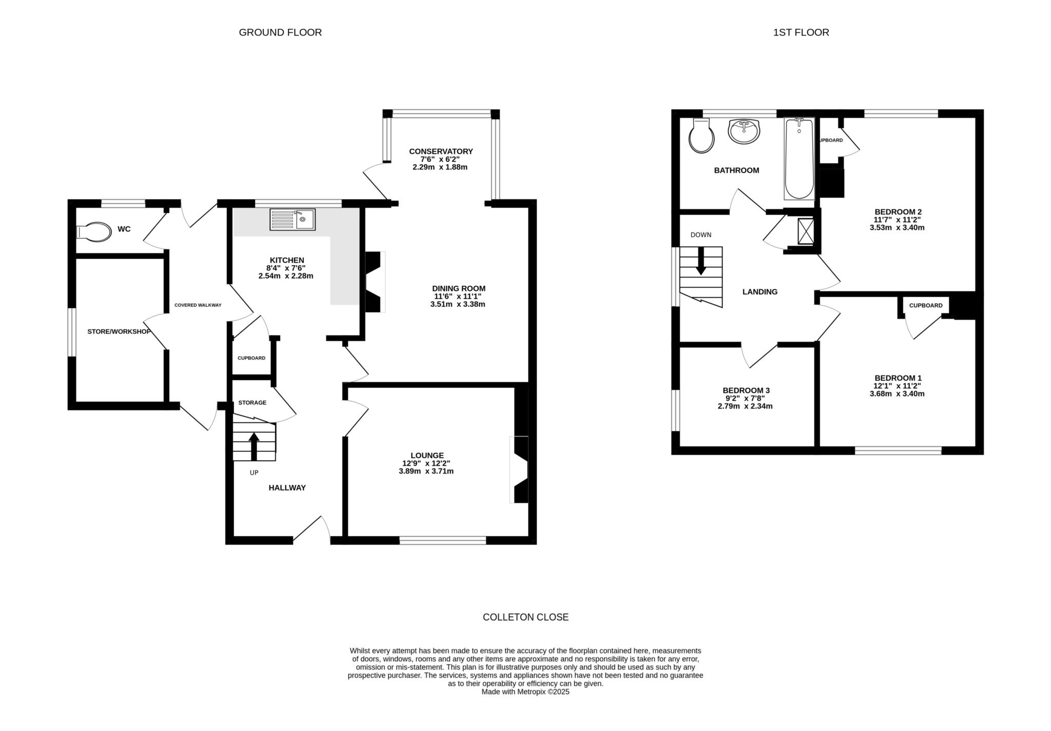
Accommodation
Ground Floor
canopy porch. Outside courtesy light. Double glazed entrance door to:
Hallway
Stairs to first floor. Built-in cupboard under stairs. Radiator. Doors to:
Lounge - 12'9" (3.89m) Max x 12'2" (3.71m)
Double glazed window to the front with distant hill views. Tiled fireplace. Radiator.
Dining Room - 11'6" (3.51m) x 11'1" (3.38m) Plus Recess
Gas coal effect fire in modern surround. TV aerial point. Opening to:
Conservatory - 7'6" (2.29m) x 6'2" (1.88m)
Double glazed with double glazed door to the rear garden.
Kitchen - 8'4" (2.54m) x 7'6" (2.29m)
Double glazed window to the rear. One and a half bowl sink unit. Work top surfaces. Part tiled spalsh back. Base cupboard and drawer units. Eye-level units. Space for cooker with gas point. Plumbing for washing machine. Space for fridge/freezer. Larder cupboard. Part Double glazed door to:
Covered Side Walkway
Doors to the front and rear gardens. Doors to:
Store/Workshop - 12'2" (3.71m) x 6'1" (1.85m)
Double glazed window to the side. Power and light.
WC
Close-coupled WC. Window to the rear.
First Floor
Landing
Double glazed window to the side. Hatch to roof space. Airing cupboard with Vaillant gas fired boiler supplying domestic hot water and central heating. Doors to:
Bedroom 1 - 12'1" (3.68m) x 11'2" (3.4m)
Double Glazed window to the front with distant views towards the Exe Estuary and Haldon Hills. Radiator. Built-in Wardrobe.
Bedroom 2 - 11'7" (3.53m) x 11'2" (3.4m)
Double glazed window to the rear. Radiator. Built-in wardrobe.
Bedroom3 - 9'2" (2.79m) x 7'8" (2.34m)
Double glazed window to the side.
Bathroom/WC
Double glazed window to the rear. Panelled bath. Tiled splash back. Electric Shower. Pedestal wash hand basin. Close-coupled WC. Radiator.
Externally
To the front of the property is an area of lawned garden with shrub borders and a pathway leading to the front entrance door.
To the rear is a good size garden laid to lawn with flower and shrub borders. Tool store.
Tenure
The property is FREEHOLD
Services
All mains services are connected. Council Tax Band C
Mortgage Assistance
We are pleased to recommend Meredith Morgan Taylor, who would be pleased to help no matter which estate agent you finally buy through. For a free initial chat please contact us on 01395 222350 to arrange an appointment
Your home may be repossessed if you do not keep up repayments on your mortgage
Meredith Morgan Taylor Ltd is an appointed representative of The Openwork Partnership, a trading style of Openwork Ltd which is authorised and regulated by the Financial Conduct Authority (FCA).
Agents Note
Please note these are draft particulars and are awaiting vendors verification.
Directions
From our prominent Town Centre office, continue down Rolle Street, past The Strand Gardens and at the roundabout, turn right onto The Parade and into Exeter Road. Turn right into Withycombe Road and at roundabout turn left. Continue straight ahead at the next roundabout into Withycombe Village Road and take the 2nd right into Moorfield Road. Take the 5th right hand turning, passing Marpool School, into Colleton Way and then the second left hand turning into Colleton Close. The property will be found on the left hand side, clearly identified by our for sale board.
what3words /// craft.tones.bumps
Notice
Please note we have not tested any apparatus, fixtures, fittings, or services. Interested parties must undertake their own investigation into the working order of these items. All measurements are approximate and photographs provided for guidance only.
Utilities
Electric: Mains Supply
Gas: Mains Supply
Water: Mains Supply
Sewerage: Unknown
Broadband: Unknown
Telephone: Unknown
Other Items
Heating: Gas Central Heating
Garden/Outside Space: Yes
Parking: No
Garage: No

Agent Statistics (Based on 735 Reviews) :