The UK's Largest Customer Review Website for the Property Industry
The UK's Largest Customer Review Website for the Property Industry
Back to Property Listings
Colham Avenue, Yiewsley, West Drayton
Ideally positioned in this desirable location moments from West Drayton Station, this superb character home provides well proportioned stylish interiors, finished to a high standard throughout.
Description - This substantial period property offers a wonderful blend of character and contemporary comfort. Well presented throughout, the home boasts a wealth of traditional features alongside tasteful modern enhancements.
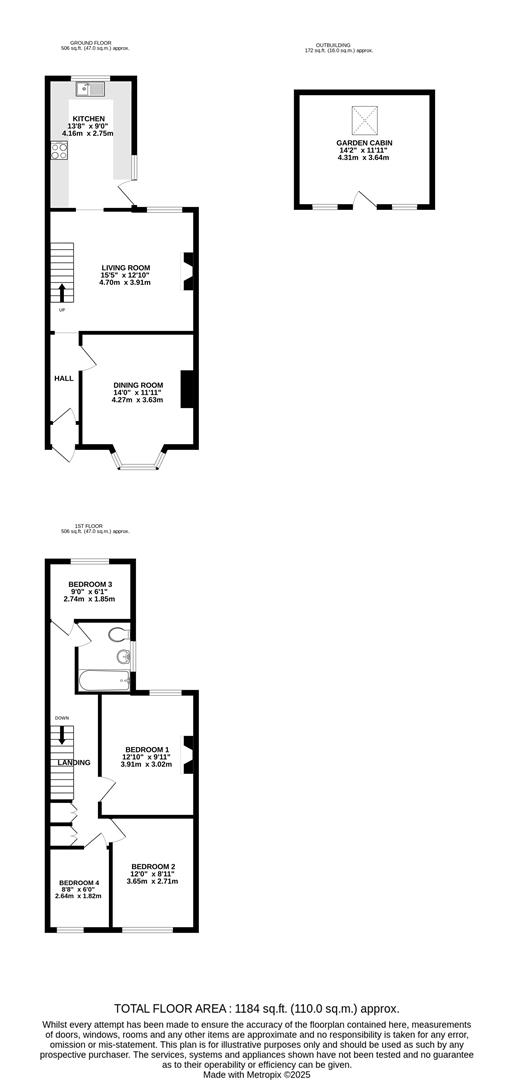
Accommodation - The accommodation briefly comprises: entrance hall, a front reception room with a double-glazed bay window, and a rear reception room featuring a charming log burner and stairs rising to the first floor.
The kitchen is fitted with a comprehensive range of base and eye-level units, complemented by ample work surfaces and an inset sink. There is space for a range-style cooker with an extractor hood above, as well as integrated appliances including a fridge freezer, washing machine, and dishwasher. Double-glazed windows to the side and rear aspects provide plenty of natural light, and a door leads out to the rear garden.
To the first floor, the property offers four bedrooms and a family bathroom fitted with a panel-enclosed bath with shower over, a vanity wash basin, and a WC.
Outside - The property boasts an attractive rear garden, with a variety of mature shrubs and trees. At the far end of the garden, there is a fantastic timber cabin, ideal for use as a home office or studio.
To the front, the property features a garden area, while to the side there is a useful timber lean-to providing a covered storage area.
The property has the benefit of having recently had a new roof.
Situation - West Drayton offers excellent transport links. The area benefits from quick access to central London, with journeys to Bond Street from West Drayton taking just 30 minutes. Additionally, Heathrow Airport is just a short drive away, making international travel easily accessible. With good local bus services and road connections, including the M4 and M25, West Drayton offers exceptional transportation options for residents. Combined with local amenities such as shops, schools, and green spa
Terms And Notification Of Sale - Tenure: Freehold
Local Authority: London Borough of Hillingdon
Council tax band: D
EPC rating: D

This property is marketed by

Cameron Estate Agents - Uxbridge, Uxbridge, UB8
4.8/5 Rating
(1176) reviews
Agent Statistics (Based on 1176 Reviews) :