The UK's Largest Customer Review Website for the Property Industry
The UK's Largest Customer Review Website for the Property Industry
Back to Property Listings
Colby Drive, Bradwell
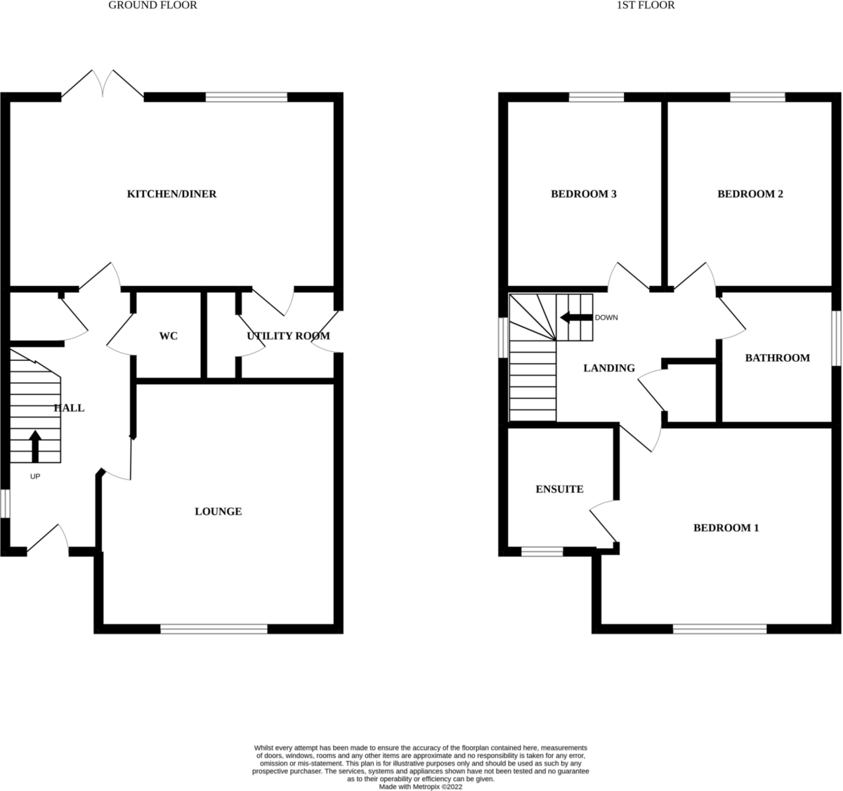
Bycroft Estate Agents are delighted to present this modern three bedroom detached family house situated in this sought after and convenient location within the village of Bradwell close to shops, amenities and schools for all ages. Accommodation comprises entrance hall, cloakroom, lounge, kitchen/diner, utility room, first floor landing, three bedrooms with en suite to principal, bathroom, front, side and rear gardens, driveway parking and detached single garage, gas central heating and double glazing.
Details - Bycroft Estate Agents are delighted to present this modern three bedroom detached family house situated in this sought after and convenient location within the village of Bradwell close to shops, amenities and schools for all ages. Accommodation comprises entrance hall, cloakroom, lounge, kitchen/diner, utility room, first floor landing, three bedrooms with en suite to principal, bathroom, front, side and rear gardens, driveway parking and detached single garage, gas central heating and double glazing.
ENTRANCE HALL entrance door; stairs to first floor; understairs storage cupboard.
CLOAKROOM wc; vanity unit comprising wash hand basin with mixer tap and storage cupboard; radiator; extractor fan.
LOUNGE 13' 0" x 12' 3" max (3.96m x 3.73m) fireplace with electric fire; window to front aspect; radiator.
KITCHEN / DINER 18' 1" x 9' 4" (5.51m x 2.84m) large u-shaped worktop with a good range of base cupboards and drawers; integrated dishwasher and upright fridge freezer; built in oven with four ring gas hob and light and extractor; one and a half bowl sink; range of wall units; radiator; French doors to rear garden.
UTILITY ROOM 5' 7" x 5' 4" (1.7m x 1.63m) worktop with base unit; space for washing machine and tumble dryer; Ideal Logic combi gas boiler; door out to side; radiator; built in storage cupboard.
FIRST FLOOR LANDING access to roof space; side window; storage cupboard.
BEDROOM 1 13' 0" max x 10' 10" max (3.96m x 3.3m) including fitted triple wardrobe with sliding mirror fronted doors; window to front aspect; radiator.
EN SUITE wc; shower cubicle with mains fittings; vanity unit comprising wash hand basin with mixer tap and storage cupboard; two frosted windows; heated towel rail.
BEDROOM 2 9' 7" x 9' 4" (2.92m x 2.84m) including fitted double wardrobe with sliding mirror fronted doors; window to rear aspect; radiator.
BEDROOM 3 9' 7" x 8' 6" (2.92m x 2.59m) side window; radiator.
BATHROOM wc; vanity unit comprising wash hand basin with mixer tap and storage cupboard; bath with mixer tap, screen and Mira electric shower fittings; fully tiled walls; chrome heated towel rail; frosted window; extractor fan.
OUTSIDE To the outside there is a front and side garden with a pathway to the side entrance door. To the rear there is a brickweave driveway leading to a detached single garage.
VIEWINGS Strictly by appointment with the selling agents, BYCROFT ESTATE AGENTS, tel: 01493 664000.
COUNCIL TAX This property is currently listed as Band C.
DISCLAIMER While we endeavour to make our sales particulars fair, accurate and reliable, they are only a general guide to the property and, accordingly, if there is any point which is of particular importance to you, please contact the office and we will be pleased to check the position for you, especially if you are contemplating travelling some distance to view the property.
The approximate room sizes are only intended as general guidance. You must verify the dimensions carefully before ordering carpets or any built-in furniture.
Any references to garden sizes are approximate and subject to confirmation by a measured survey. A pro-spective purchaser is advised to arrange for their own land survey to be carried out.
Please note we have not tested the services or any of the equipment or appliances in this property, accord-ingly we strongly advise prospective buyers to commission their own survey or service reports before finalis-ing their offer to purchase.
THESE PARTICULARS ARE ISSUED IN GOOD FAITH BUT DO NOT CONSTITUTE REPRESENTATIONS OF FACT OR FORM PART OF ANY OFFER OR CONTRACT. THE MATTERS REFERRED TO IN THESE PARTICULARS SHOULD BE INDEPENDENTLY VERIFIED BY PROSPECTIVE BUYERS.

Agent Statistics (Based on 356 Reviews) :