The UK's Largest Customer Review Website for the Property Industry
The UK's Largest Customer Review Website for the Property Industry
Back to Property Listings
Clock House Road, Beckenham, Kent
Bought As Seen!
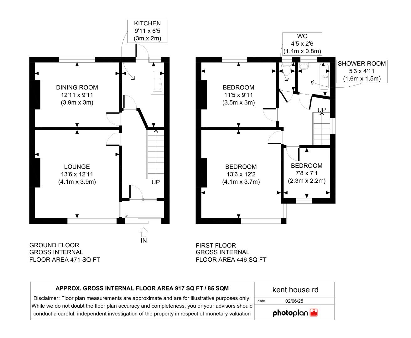
Propertyworld presents a three bedroom 1930's family home to the sales market. With no onward chain, the property does require extensive modernisation and for the right buyer, can be a fantastic, tailored home. All of the rooms are deceptively spacious and so the modernisation opportunities, are endless.
The area is well served with excellent schools and open spaces, including a Tesco Superstore and a variety of smaller grocery shops, eateries, bars and restaurants. And for commuting into London there's Elmers End and Clock House station, including rail and Tram link services connecting the centres of Beckenham, Wimbledon and Croydon, with Beckenham Junction station also within easy reach. Numerous regular bus routes also link the surrounding area.
Spacious rooms throughout, this house is ready to enter a new chapter, with a new owner, with accommodation providing as follows: Sliding Patio enclosed porch, with the main door into the hall, giving access to two separate reception rooms and the kitchen area.
Up on the first floor there are three bedrooms and bathroom with a separate W/c.
Outside, to the front there is a generously sized garden, whilst to the rear is a lengthy garden, lawned and patio, but best of all - a detached garage!
This is a fantastic buy and almost a blank canvass and to gives so much opportunity to tailor this home to your very own personal specification.
Please note: all potential buyers must be proceedable and have sufficient funds readily available for essential works
This was once a great family home, but as time went on, it was simply to big to manage.
All of the rooms are great sizes and the garden was a real gem, back in the day. It was great having a garage too. The area is brilliant and very family orientated.

Agent Statistics (Based on 2721 Reviews) :