The UK's Largest Customer Review Website for the Property Industry
The UK's Largest Customer Review Website for the Property Industry
Back to Property Listings
Church Walk, Worthing
Offered to the market with no onward chain, this one bedroom first floor flat presents an ideal opportunity for investors or developers seeking a full renovation project.
Situated in a convenient central Worthing location, just moments from local shops, transport links, and the seafront, the property offers excellent potential once refurbished.
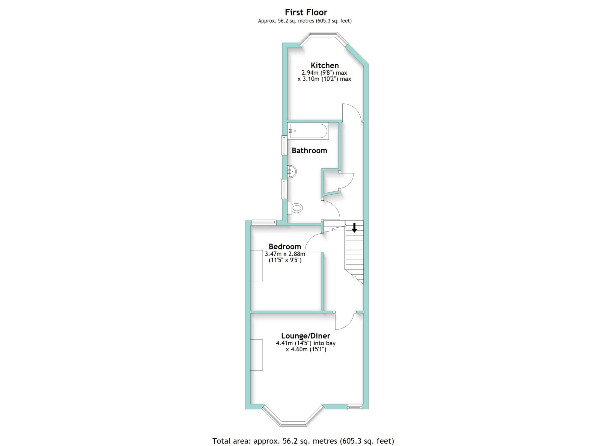
The accommodation comprises a spacious lounge/diner with bay window, a double bedroom, bathroom, and separate kitchen.
The flat retains some period character and features high ceilings throughout, providing a great base for improvement.
Due to its internal condition and the short lease of approximately 61 years remaining, the property is suitable for cash buyers only.
Flood risk
Surface water: Very low
Rivers and the sea: Very low
what3words /// notion.take.lease
Notice
Please note we have not tested any apparatus, fixtures, fittings, or services. Interested parties must undertake their own investigation into the working order of these items. All measurements are approximate and photographs provided for guidance only.
Council Tax
Adur & Worthing, Band A
Ground Rent
?30.00 Yearly
Lease Length
61 Years
Utilities
Electric: Mains Supply
Gas: Mains Supply
Water: Mains Supply
Sewerage: Mains Supply
Broadband: None
Telephone: None
Other Items
Heating: Gas Central Heating
Garden/Outside Space: Yes
Parking: No
Garage: No

This property is marketed by

Village Estate Agency - Brighton, Brighton, BN113JA
0/5 Rating
(0) reviews
Agent Statistics (Based on 0 Reviews) :