The UK's Largest Customer Review Website for the Property Industry
The UK's Largest Customer Review Website for the Property Industry
Back to Property Listings
Church Hill, Bramhope, Leeds
Fine stone built Grade II Listed Barn conversion close to the heart of Bramhope village combined with access to open countryside, four bedrooms, three bathrooms part of a small imaginative courtyard development.
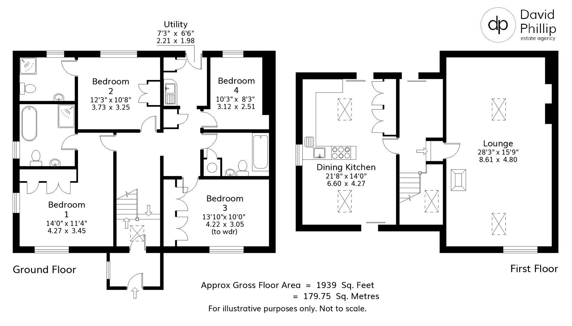
A particularly fine stone-built Grade II Listed barn conversion of considerable character, which is believed to date back to 1691, as indicated by the insignia above the rear entrance door. A great opportunity therefore to acquire a lovely property of individual charm and with oak beamed ceiling, especially the fine exposed trusses in the lounge. Owl Pen is one of just four dwellings created from originally Old Manor Farm and outbuildings into an exclusive courtyard type setting in a secluded but accessible location, off Church Hill and within just a short walk into the village centre. Offering an interesting internal layout to enjoy the superb long-distance elevated rural views from the lounge window especially. The front entrance porch opens to the hall with a staircase rising to the first floor with a landing used as a study area. The lounge is a large room with a high ceiling revealing exposed oak beams and original trusses. There is a wood burning stove and a window which enjoys a delightful outlook over its enclosed west facing courtyard type garden with a large timber shed and views across fields beyond. The luxury fitted dining kitchen with integrated appliances was designed and installed by Clarity Arts of Summerbridge renowned for their high specification craftsmanship. Three of the four double bedrooms have built in wardrobes, two of which have en suites as well as a house bathroom and there is a utility room with a rear entrance door. The property has a gas-fired heating system, and the windows are sealed double glazed. There are two carports with electric light and power installed.
Bramhope is so highly regarded as one of North Leeds most sought-after villages in the heart of Yorkshire's beautiful countryside. It enjoys an active community spirit with the primary school which currently feeds to Prince Henry's Grammar school in Otley, a children's nursery, a medical centre with a dental practice and the Fox and Hounds pub with a coffee lounge and patio area. Local amenities include the village bakery, butchers', Post Office/Store, Dry Cleaners, Hairdressers, Fish and Chip shop and a recently opened COOP store amongst other general facilities. Sporting amenities include tennis and bowling clubs, a cricket ground and West Park rugby club located on the edge of the village. More extensive daily requirements are available in Otley's nearby market town approximately 3 miles away with Waitrose, Sainsburys and Asda supermarkets. The popular spa towns of Ilkley and Harrogate are within comfortable daily travelling distance. 130 acres of gardens and woodland at Golden acre park approximately a mile or so down Leeds Road is popular to walkers and for family entertainment. The village is strategically located for commuting into Yorkshire's key business centres including Leeds, Bradford and there is the M1/A1/M62 national motorway network near to Wetherby making areas further afield more accessible by road. A train station with main line links is available at nearby Horsforth and there is the Leeds/Bradford International Airport at Yeadon
Leeds 7.5 miles, Bradford 10 miles, Harrogate 10 miles, Motorway 12 miles - approximate.

This property is marketed by

David Phillip Estate Agent - Leeds, Leeds, LS16
4.9/5 Rating
(109) reviews
Agent Statistics (Based on 109 Reviews) :