The UK's Largest Customer Review Website for the Property Industry
The UK's Largest Customer Review Website for the Property Industry
Back to Property Listings
Choumert Grove, Peckham, SE15
Beautifully Presented Three Bedroom Period Home with Garden Studio.
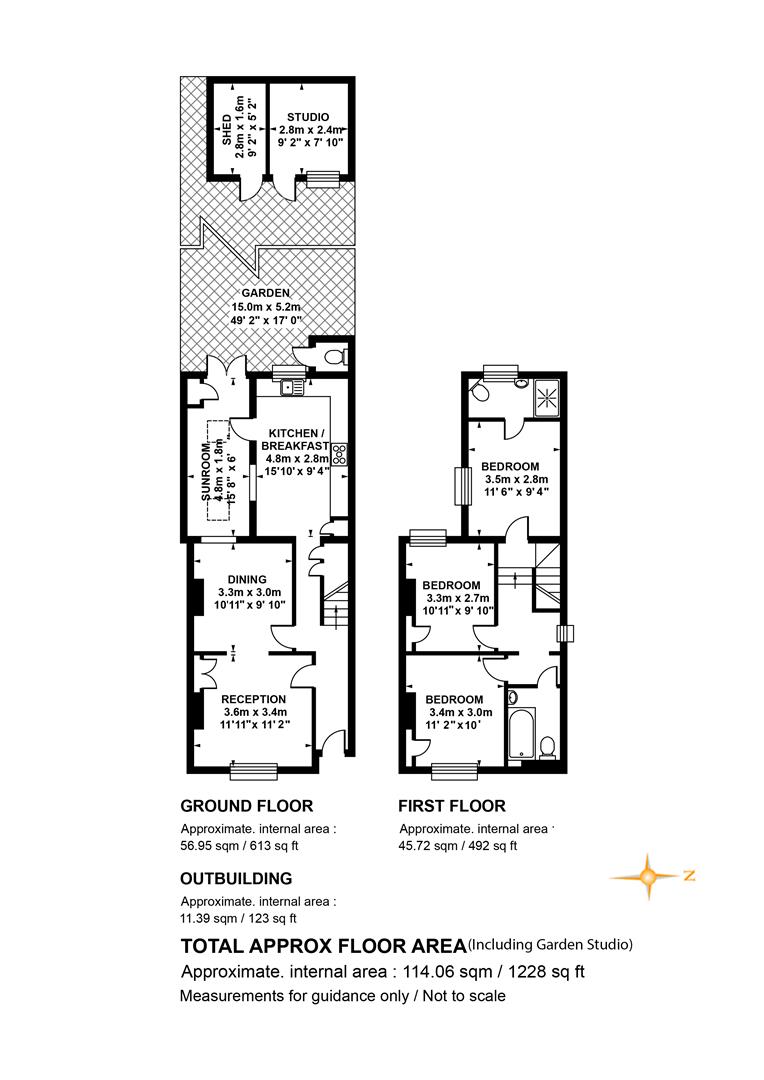
Handsome throughout and sympathetically styled, this fantastic three bedroom period home will have you at hello! Tasteful decor, quality fixtures and a well appointed layout make it a fine living environment. The accommodation comprises a lovely double reception, kitchen/diner, sunroom/study, three bedrooms (master ensuite) and bathroom. There's a pleasant sprinkling of original features and a a most charming and mature rear garden. A garden room and storage complete the tour nicely. Choumert Grove forms part of a magical collection of period streets within the Bellenden Village area. From here you can sample the dishy delights of Bellenden Road in seconds. Rye Lane is a short 5 minute stroll and you can be at Peckham Rye Station in moments for swift, frequent services to central London and beyond.
A smart period exterior greets you gracefully, leading off the street through lovely black railings. The hall boasts original timber floors, ornate corbals and retro grey walls. The double reception sits to the right with a feature fireplace, low-level fitted storage and space for lounging and formal dining. Toward the rear of the hall you find a bright modern kitchen/diner with ubiquitous cabinet and counter space, five ring gas hob, oven, integrated washing machine and fridge/freezer.
Adjoining the kitchen is a bright and airy sunroom with two large skylights, tiled floor and plenty of space for working from home. Double doors lead from here to your superb rear garden. It's a mature, leafy spot with York stone patio, vine, roses and fragrant shrubs and trees. A pretty wooden garden studio and storage sits to the rear.
Back inside, head upward to the rear return to find the first of your bedrooms. It's a peaceful side aspect room with double glazed sash window and an adjoining shower room. Bedroom two fronts the street with fitted storage and more quality carpeting. A third double bedroom faces rear with a leafy aspect. Completing the accommodation is a modern bathroom with pristine white suite and heated towel rail.
This leafy, mature and community driven neighbourhood is bursting with creativity. Peckham Rye is less than a 5 minute walk for swift and frequent services to London Bridge, Victoria and Blackfriars. Denmark Hill is also easily reached on foot or train. There's a whole variety of buses run into town along Peckham Road and Rye Lane just five minutes away. Shops, restaurants and green spaces in East Dulwich, Camberwell and Peckham are all nearby, also within walking distance is the excellent and very popular Nursery and Pre-Prep, The Villa and the new Belham Primary School. Local bars include The Victoria Inn, The Hermit's Cave and The Camberwell Arms. Even closer is the much loved Montpelier - it's a cracking spot to meet all your new neighbours. Miss Tapas and The Begging Bowl are highly rated as is Ganapati and the much feted Artusi - all are just around the corner or a 2 minute walk down the road. This area is spoilt for green spaces such as the 120 acre Peckham Rye Common which is small walk or jog away also very nearby is the local Warwick Gardens and Goose Green both a gentle stroll away.
Tenure: Freehold
Council Tax Band: D

Agent Statistics (Based on 168 Reviews) :