The UK's Largest Customer Review Website for the Property Industry
The UK's Largest Customer Review Website for the Property Industry
Back to Property Listings
Chester Road, Wanstead
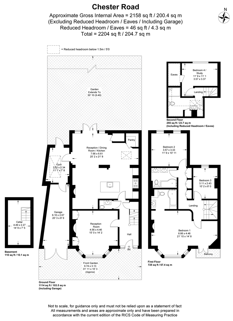
Nestled on Chester Road in the charming area of Wanstead, this modern end-terrace house offers a delightful blend of space and contemporary living. Spanning an impressive 2,158 square feet, this property is just a stone's throw from Wanstead underground station, making it an ideal choice for commuters and families alike.
Upon entering, you are greeted by two inviting reception rooms that provide ample space for relaxation and entertainment. The heart of the home is the open-plan kitchen diner, which boasts a pantry for additional storage and is perfect for family gatherings or hosting friends. The property features four spacious bedrooms, including a converted loft that offers a private bedroom, bathroom, and eaves space, providing versatility for guests or a home office.
The main bedroom is a true retreat, complete with an en-suite bathroom and a lovely balcony that invites you to enjoy the fresh air. With three well-appointed bathrooms throughout the house, convenience is at your fingertips, complemented by a downstairs WC for guests.
Storage is plentiful, with additional space on the first floor and a cellar that can be utilised for various purposes. For those who value fitness, a dedicated gym area is included, allowing you to maintain an active lifestyle without leaving home. Parking is made easy with a garage and space for one vehicle.
The low-maintenance garden offers a serene outdoor space, perfect for unwinding after a busy day. This property is a rare find in Wanstead, combining modern amenities with a prime location.
AVAILABLE 21ST SEPTEBER 2025
UNFURNISHED
COUNCIL TAX BAND - F
EPC RATING - E47 4,038
1 WEEK HOLDING DEPOSIT - £761.53
5 WEEKS TOTAL DEPOSIT - £3807.69
Reception Room - 14'12" x 14'8" -
Dining Room/ Kitchen - 25'2" x 21'8" -
Bedroom - 2185' x 14'8" -
Bedroom - 11'9" x 10'11" -
Bedroom - 11'9" x 11'1" -
Bedroom - 10'2" x 7'12" -
NEW ASSURED SHORTHOLD TENANCIES (ASTs) SIGNED ON OR AFTER 1 JUNE 2019*
Holding Deposit (per tenancy) - One week's rent. This is to reserve a property. Please Note: This will be withheld if any relevant person (including any guarantor(s)) withdraw from the tenancy, fail a Right-to-Rent check, provide materially significant false or misleading information, or fail to sign their tenancy agreement (and / or Deed of Guarantee) within 15 calendar days (or other Deadline for Agreement as mutually agreed in writing).
Security Deposit (per tenancy and where Rent is under £50,000 per year) - Five weeks' rent. This covers damages or defaults on the part of the tenant during the tenancy.
Security Deposit (per tenancy and where Rent of £50,000 or over per year) - Six weeks' rent. This covers damages or defaults on the part of the tenant during the tenancy.
Unpaid Rent - Interest at 3% above the Bank of England Base Rate from Rent Due Date until paid in order to pursue non-payment of rent. Please Note: This will not be levied until the rent is more than 14 days in arrears.
Lost Key(s) or other Security Device(s) - Tenants are liable to the actual cost of replacing any lost key(s) or other security device(s). If the loss results in locks needing to be changed, the actual costs of a locksmith, new lock and replacement keys for the tenant, landlord any other persons requiring keys will be charged to the tenant. If extra costs are incurred there will be a charge of £15 per hour (inc. VAT) for the time taken replacing lost key(s) or other security device(s).
Variation of Contact (Tenants Request) - £50 (inc. VAT) per agreed variation. To cover the costs associated with taking landlord's instructions as well as the preparation and execution of new legal documents.
Change of Sharer (Tenant's Request) - £50 (inc. VAT) per replacement tenant or any reasonable costs incurred if higher. To cover the costs associated with taking landlord's instructions, new tenant referencing and Right-to-Rent checks, deposit registration as well as the preparation and execution of new legal documents.
Early Termination (Tenant's Request) - Should the tenant wish to leave their contract early, they shall be liable to the landlord's costs in re-letting the property as well as all rent due under the tenancy until the start date of the replacement tenancy. These costs will be no more than the maximum amount of rent outstanding on the tenancy.
Please ask a member of staff if you have any questions about our fees.

This property is marketed by

Petty Son & Prestwich - Wanstead Lettings Department, London, E11
4.9/5 Rating
(309) reviews
Agent Statistics (Based on 309 Reviews) :