The UK's Largest Customer Review Website for the Property Industry
The UK's Largest Customer Review Website for the Property Industry
Back to Property Listings
Chester Road, Walton, Warrington
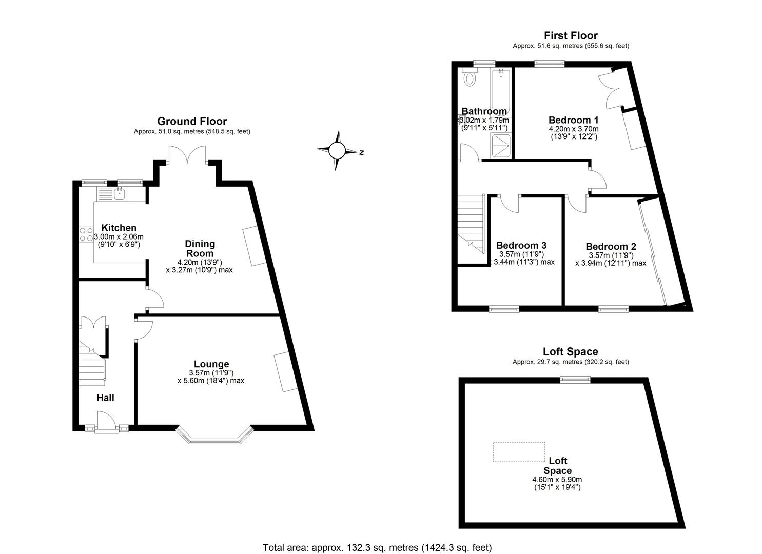
Welcome to this SPACIOUS home! Enjoy a BRIGHT lounge with a STUNNING bay window and COZY log burner, a MODERN kitchen with Integrated appliances, and Patio doors to the Garden. Upstairs, find three GENEROUSLY sized double bedrooms, a CONTEMPORARY four-piece bathroom, and a LARGE loft for storage. This home blends COMFORT and STYLE perfectly.
Welcome to this spacious and inviting home! Enter through the hallway into a bright lounge featuring a stunning bay window that floods the room with natural light and a cozy log burner. The dining room at the rear seamlessly flows into the modern kitchen, equipped with integrated appliances. Patio doors provide direct access to the south-facing garden, perfect for summer months.
Upstairs, you'll find three generously sized double bedrooms and a contemporary four-piece family bathroom. Additionally, this home boasts a large loft space, ideal for storage.
This property perfectly blends comfort and style, offering ample living space and modern amenities. With its thoughtful layout and abundance of natural light, this home is ready to move into. Don't miss the opportunity to make this charming property your own!
Note to Prospective Tenants:
Furnished/Unfurnished - Landlord Flexible
Furniture would be - Open to leaving all sofas, tables, wardrobes, units, beds.
Appliances Integrated - Oven, Hob and Extractor Fan, Dishwasher and Washing Machine.
Appliances Non Repairable/Non Replaceable - Fridge/Freezer
Pets - Landlord will consider - Case by case basis - Extra £20 Per Month
Loft Space - Can be used for Storage

This property is marketed by

Mark Antony Estates - Stockton Heath, Warrington, WA4
4.9/5 Rating
(1956) reviews
Agent Statistics (Based on 1956 Reviews) :