The UK's Largest Customer Review Website for the Property Industry
The UK's Largest Customer Review Website for the Property Industry
Back to Property Listings
Chester Road, Kingshurst, Birmingham
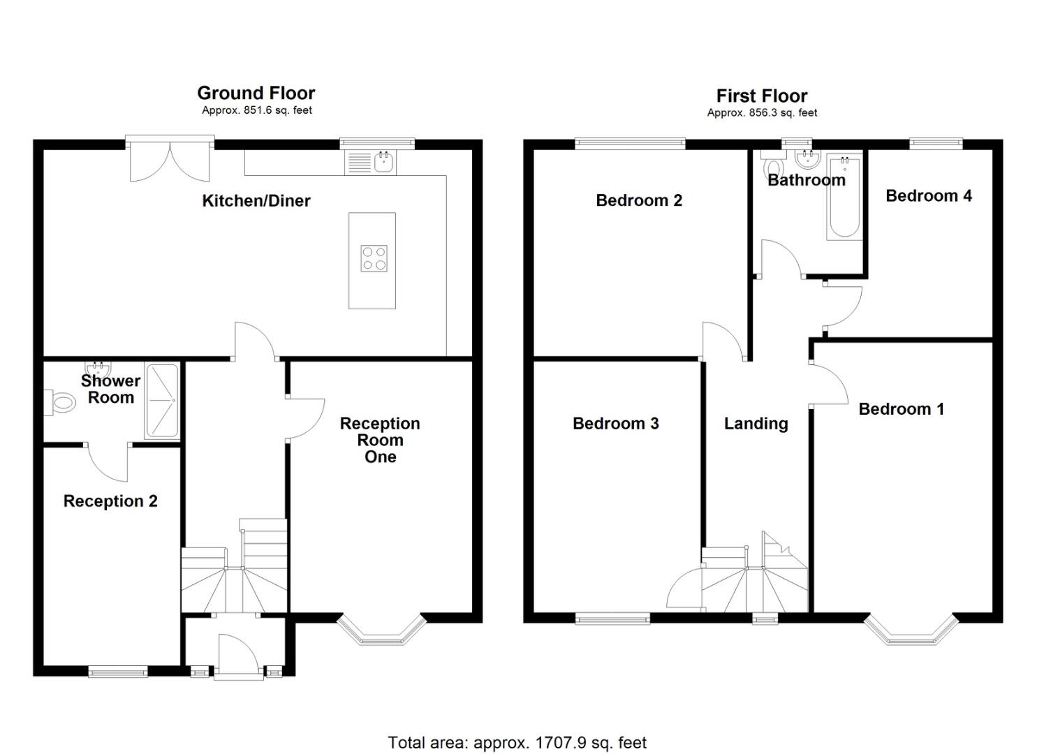
This extended semi detached home situated in a popular location must be viewed . The property briefly comprises porch, hallway, two reception rooms, downstairs shower room and w/c, kitchen/diner/family room, four bedrooms and family bathroom. There is a driveway to the front for ample parking and a good sized rear garden.
Approach - Via a block paved and stone driveway and side access.
Entrance Porch - Door to front and spot light to ceiling
Hallway - Stairs to first floor accommodation, radiator and ceiling light point.
Reception One - 4.17m x 3.23m max (13'08 x 10'07 max) - Double glazed bay window to front, two radiators and ceiling light point.
Inner Hallway - Window to front, storage and ceiling light point.
Reception Two - 2.62m x 3.25m (8'07 x 10'08) - Double glazed window to front, radiator and spotlights to ceiling.
Downstairs Shower Room - Low level w/c, heated towel rail, hand wash basin with storage below, shower and spotlights to ceiling.
Kitchen/Diner/Family Room - 8.13m max (7.54m to cupboards) x 3.96m max (26'08 - Wall base and drawer units, sink with hot tap and drainer, integrated dishwasher, washing machine, fridge freezer, two ovens, microwave, warming drawer and bins. Larder cupboard, island with integrated hob with extractor over, underfloor heating and a AC wall mounted unit, bifold doors to rear, two skylights, radiator and spotlights to ceiling.
Landing - Stained glass window to front, loft access with integrated loft ladder, radiator and spotlights to ceiling.
Bedroom One - 4.27m into bay x 3.30m max (14'00 into bay x 10'10 - Double glazed bay window to front, radiator and ceiling light point.
Bedroom Two - 2.72m x 3.73m max (8'11 x 12'03 max) - Double glazed window to rear, radiator and ceiling light point.
Bedroom Three - 3.45m x 2.72m (11'04 x 8'11) - Double glazed window to front, radiator and ceiling light point.
Bedroom Four - 2.31m x 2.97m (7'07 x 9'09) - Double glazed window to rear, radiator and ceiling light point.
Bathroom - Double glazed window to rear, panel bath with shower over, sink with built in storage, low level w/c, underfloor heating and ceiling light point.
Rear Garden - Paved patio area, mainly laid to lawn and enclosed to boundaries.
Further Information - We endeavour to make our sales particulars accurate and reliable, however they do not constitute or form part of an offer or any contract and none is to be relied upon as statements of representation or fact. Any services, systems and appliances listed in this specification have not been tested by Chambers Estate & Letting Agents and we make no guarantee as to their operating ability or efficiency. All measurements have been taken as a guide only to prospective buyers and may not be correct. Potential buyers are advised to re-check measurements and test any appliances. A buyer should ensure that a legal representative confirms all the matters relating to this title including boundaries and any other important matters.
Money Laundering Regulations:intending purchasers will be required to provide proof of identification at offer stage, a sale cannot be agreed without this.
Council Tax Band - D
EPC Rating - D

This property is marketed by

Chambers Estate & Letting Agents - Water Orton, Birmingham, B46
4.9/5 Rating
(257) reviews
Agent Statistics (Based on 257 Reviews) :