The UK's Largest Customer Review Website for the Property Industry
The UK's Largest Customer Review Website for the Property Industry
Back to Property Listings
Cheriswood Avenue, Exmouth
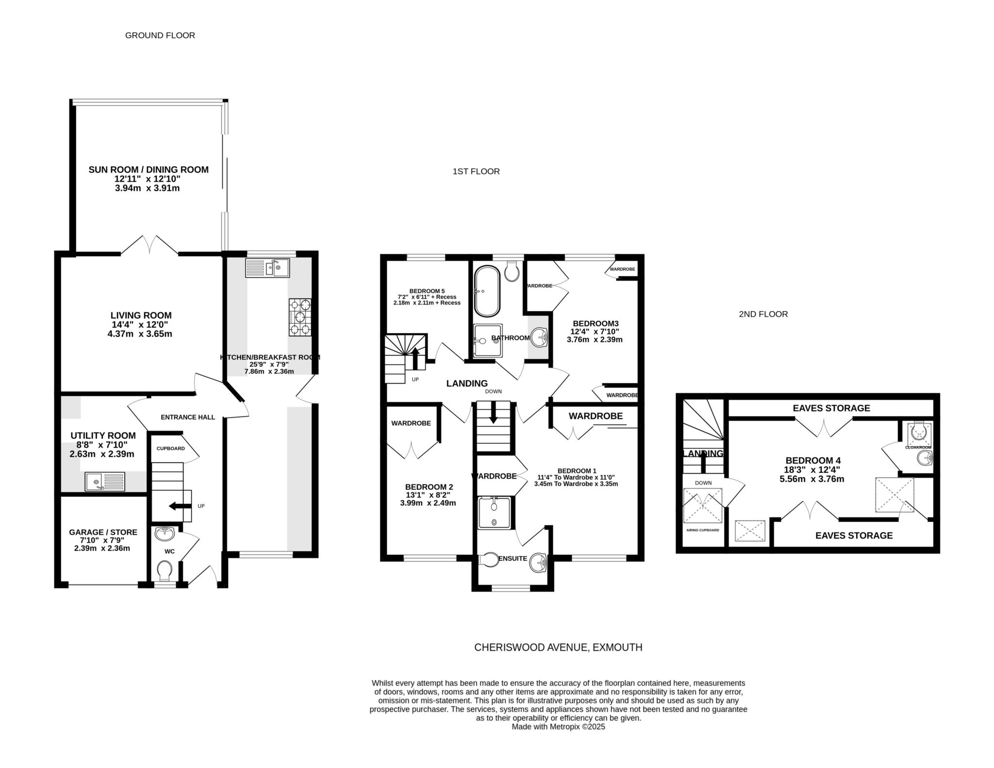
Situated in a popular cul-de-sac, this deceptively spacious five-bedroom, two-bathroom detached house offers versatile family living, a level rear garden, and a generous kitchen/breakfast room.
The property is gas centrally heated via a combi boiler and uPVC double glazed. The ground floor comprises a cloakroom, a living room, a double-glazed sunroom/dining room, a dual-aspect kitchen/breakfast room, and a utility room.
On the first floor, there are four bedrooms, all with fitted bedroom furniture, including a master with an en-suite shower room, alongside a family bathroom.
The second floor features a fifth bedroom with an en-suite cloakroom and distant views of the Exe Estuary.
This attractive home provides an ideal family residence. An internal viewing is strongly recommended to fully appreciate the accommodation on offer.
Accommodation
Ground Floor
Step up to front entrance door, beneath pitched and tiled storm canopy with outside lighting, leading to:
Entrance Hall
Staircase rising to first floor with under stairs storage cupboard. Radiator. Smoke alarm. Wooden flooring. Doors leading to living room, kitchen/dining room and:
Cloakroom
Obscure uPVC double glazed window to front. White suite of low level WC and vanity wash hand basin. Wooden flooring. Radiator. Fully tiled walls.
Living Room - 14'4" (4.37m) x 12'0" (3.66m)
Radiator. Double doors leading to:
Sun Room / Dining Room - 12'11" (3.94m) x 12'10" (3.91m)
uPVC double glazed sliding patio doors to side leading to rear garden with uPVC double glazed windows to rear and side on render dwarf brick walls. Radiator.
Kitchen / Breakfast Room - 25'9" (7.85m) x 7'9" (2.36m) Max
Dual aspect having uPVC double glazed windows to rear and front. uPVC double glazed external door side leading to rear garden. Good range of cupboard and drawer storage units with roll edged work surfaces and tiled Splashbacks. Ceramic one and a half bowl sink with single drainer unit and mixer tap. The range style cooker in situ is included in the sale, filter hood above. Integrated dishwasher. Further space for freestanding fridge/freezer et cetera. Radiator.
Utility Room - 8'8" (2.64m) x 7'10" (2.39m)
Cupboard and drawer storage units with roll edged work surfaces. Stainless steel single sink and drainer unit with mixer tap. Space and plumbing for washing machine. Further space for appliances. Laminate flooring.
First Floor
Landing
Smoke alarm. Staircase rising to second floor with under stairs storage cupboard. Doors leading to:
Bedroom 1 - 11'4" (3.45m) To Wardrobe x 11'0" (3.35m)
uPVC double glazed window to front gaining distant Haldon Hill views. Good range of fitted and built - in wardrobes. Radiator. Door leading to:
En - Suite
Obscure uPVC double glazed window to front. White suite comprising shower cubicle with thermostatically controlled shower unit, low level WC and vanity wash hand basin. Radiator. Fully tiled walls. Extractor fan. Shaver socket.
Bedroom 2 - 13'1" (3.99m) x 8'2" (2.49m)
uPVC double glazed window to front gaining distant Haldon Hill views. The freestanding wardrobe unit is included in the sale. Radiator.
Bedroom 3 - 12'4" (3.76m) x 7'10" (2.39m)
uPVC double glazed window to rear. Good range of fitted and built - in wardrobes. Radiator.
Bedroom 5 - 7'2" (2.18m) x 6'11" (2.11m) Plus Recess
uPVC double glazed window to rear. The freestanding wardrobes in situ are included in the sale. Radiator.
Bathroom
Obscure uPVC double glazed window to rear. 4 piece white suite of panelled bath, shower cubicle with thermostatically controlled shower unit and tiling to ceiling height, low level WC and vanity wash hand basin. Radiator. Extractor fan. Shaver socket.
Second Floor
Landing
Skylight to front. Airing cupboard housing the gas fired Combi boiler that supplies the central heating and domestic hot water. Door leading to:
Bedroom 4 - 18'3" (5.56m) x 12'4" (3.76m)
2 double glazed skylights to front gaining Exe Estuary and Haldon Hill views. Under eaves storage space. Radiator. Wooden flooring. Door leading to:
Cloakroom
Double glaze skylight to rear. White suite of low level WC and vanity wash hand basin. Radiator. Wooden flooring.
Externally
The level Front Garden is laid to lawn with hedge borders. A double width driveway provides off road parking for several motor vehicles, further patio area adjacent to the property, leading to:
Garage / Store - 7'11" (2.41m) x 7'9" (2.36m)
Up and over door to front. Light connected.
Rear Garden
The property has a level, enclosed and reasonable private Rear Garden consisting of a patio area immediately adjacent the property, further patio area to the rear, being ideal for outdoor dining and sitting during the fine weather. The remainder is then laid to lawn, with shrub and herbaceous beds and borders that provide year round interest and colour. Timber panelled fencing to either side. Brick wall boundary to rear. Outside water tap. Outside lighting. Outside electric meter box. Timber garden shed. Front pedestrian access to side of property via timber garden gate.
Tenure
The property is FREEHOLD
Services
All mains services are connected. The property is on a water meter. Council Tax Band D
Mortgage Assistance
We are pleased to recommend Meredith Morgan Taylor, who would be pleased to help no matter which estate agent you finally buy through. For a free initial chat please contact us on 01395 222350 to arrange an appointment
Your home may be repossessed if you do not keep up repayments on your mortgage
Meredith Morgan Taylor Ltd is an appointed representative of The Openwork Partnership, a trading style of Openwork Ltd which is authorised and regulated by the Financial Conduct Authority (FCA).
Agents Note
These are draft particulars and are awaiting vendors verification
Directions
From our prominent Town Centre office, proceed onto Salterton Road and turn left at the first set of traffic lights signposted Exeter. Proceed down the hill having Phear Park on your right hand side and turn right at the mini roundabout. Proceed straight ahead at the second mini roundabout into Withycombe Village Road. At the end of the road, and at the next mini roundabout, turn left and immediately right into Forton Road. Turn right into Cheriswood Avenue. Follow the road to the right, then bear left where the property will be found on the right hand, clearly identified by our For Sale sign.
what3words /// inspector.modest.goals
Notice
Please note we have not tested any apparatus, fixtures, fittings, or services. Interested parties must undertake their own investigation into the working order of these items. All measurements are approximate and photographs provided for guidance only.
Utilities
Electric: Mains Supply
Gas: Mains Supply
Water: Mains Supply
Sewerage: Mains Supply
Broadband: Unknown
Telephone: Unknown
Other Items
Heating: Gas Central Heating
Garden/Outside Space: Yes
Parking: Yes
Garage: Yes

Agent Statistics (Based on 746 Reviews) :