The UK's Largest Customer Review Website for the Property Industry
The UK's Largest Customer Review Website for the Property Industry
Back to Property Listings
Chepstow House, Chepstow Street
Julie Twist Properties are thrilled to present this spacious studio apartment, nestled within the stunningly converted Chepstow House development. The apartment offers an inviting entrance hallway, a generously sized living and bedroom area, a separate kitchen with integrated appliances, and a three-piece bathroom suite. The apartment retains many original features, such as high ceilings and sash windows, meaning the space is flooded with natural light, creating a bright and airy atmosphere.
Chepstow House dates back to 1874 and was converted to flats in 1991 and is now a stunning Grade II Listed conversion development. Chepstow House is located right in the heart of the city centre, with Oxford Road, Deansgate and St Peter's Square only a couple of minutes away. All of these offer a range of bus, train and Metrolink options making travel within and out of the city centre very easy.
Details - DESCRIPTION Julie Twist Properties are thrilled to present this spacious studio apartment, nestled within the stunningly converted Chepstow House development. The apartment offers an inviting entrance hallway, a generously sized living and bedroom area, a separate kitchen with integrated appliances, and a three-piece bathroom suite. The apartment retains many original features, such as high ceilings and sash windows, meaning the space is flooded with natural light, creating a bright and airy atmosphere.
Chepstow House dates back to 1874 and was converted to flats in 1991 and is now a stunning Grade II Listed conversion development. Chepstow House is located right in the heart of the city centre, with Oxford Road, Deansgate and St Peter's Square only a couple of minutes away. All of these offer a range of bus, train and Metrolink options making travel within and out of the city centre very easy. An array of bars, restaurants, shops, cafes and theatres are all within a short stroll, offering the very best of city centre living right on your doorstep.
GENERAL Rental Yield: 7.5% (Based on expected rental price of £1000pcm)
Service Charge: £2400 per annum
Ground Rent: Peppercorn
Lease: 999 years from 1 January 1990
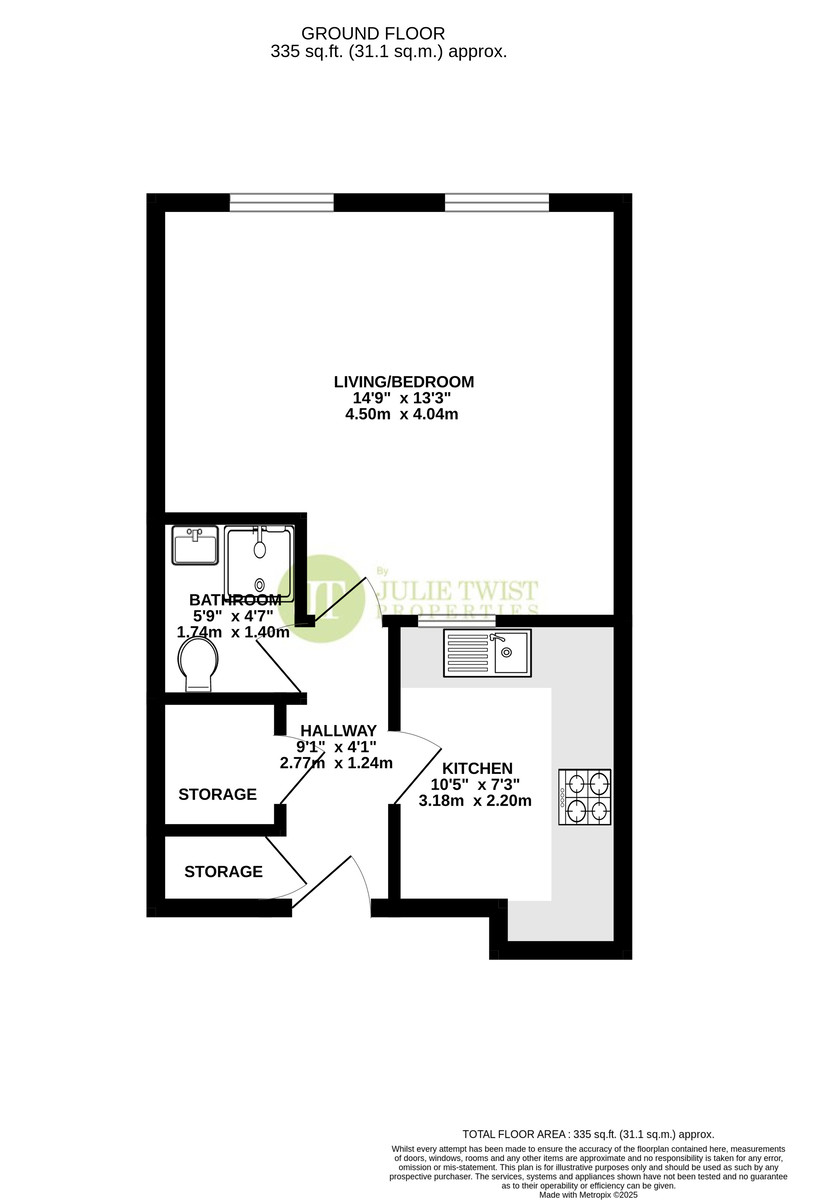
Square Footage: 335 sq.ft ( 31.1sq.m)
Council Tax Band: C
Management Company: Chepstow House Management Company Ltd
No Onward Chain
HALLWAY Wooden flooring, ceiling light and access to two storage cupboards.
KITCHEN A separate kitchen comprising wall and base units, space and plumbing for a full-size dishwasher, built-in oven, four ring hob with extractor over, sink with mixer tap and drainer, wooden flooring, spotlights, extractor, window overlooking living area and wall mounted heater.
LIVING AND BEDROOM AREA Two sash windows, carpeted flooring, wall mounted heater, phone/TV point and ceiling lights.
BATHROOM Accessed via the hallway, a three piece bathroom comprising shower cubicle, separate shower cubicle, WC, sink with mixer tap, heated towel rail, partially tiled walls, tiled flooring, extractor and spotlights.

This property is marketed by

Julie Twist Properties - Head office, Manchester, M3
4.6/5 Rating
(722) reviews
Agent Statistics (Based on 722 Reviews) :