The UK's Largest Customer Review Website for the Property Industry
The UK's Largest Customer Review Website for the Property Industry
Back to Property Listings
Charlotte Quay, Priory Street, Hertford
Tranquil town centre location - An outstanding and private 3-bedroom, semi-detached, town house with unobstructed views over Hertfordshire's River Lea, exclusive mooring rights and just a stones throw from both Hertford North & East train station.
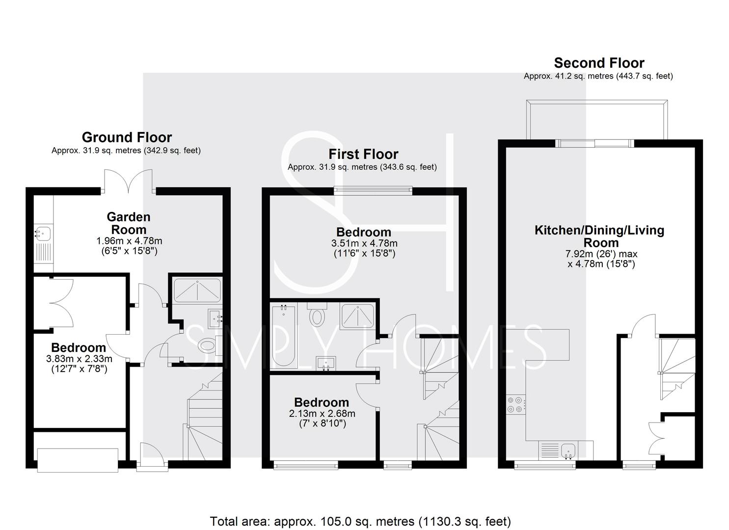
Enter via the entrance hallway with downstairs shower room with quartz tiles, additional kitchen/utility room with granite worktops, rear aspect UPVC wood style patio doors leading to the rear decked garden. The ground floor also features a double bedroom which has been converted from the integrated garage.
To the first floor where there are two good sized bedrooms and a recently re-fitted, fully tiled 3-piece family bathroom with coloured cut glass borders, quartz floor tiles and Aqualisa high pressure power shower.
To the second floor and into the kitchen/living room, featuring a range of base and eye level units, granite worktops, new oven, and a separate work-top breakfast bar. The kitchen also features several integrated appliances and a large butler sink. The UPVC double sliding doors open out onto the large full-length balcony with glass balustrade and exceptional river views.
The exterior of the property features a new composite decked garden with access to the river which also has mooring rights (also great for fishing and kayaking). The garden is a fantastic place to sit all year round with views over the allotments, river, woodland and countryside beyond. The 2nd floor balcony also features views over the Victorian rooftops of Folly Island. Towards the front of the property which features brand new and attractive cladding and windows. The property also benefits from off-road parking and additional storage in the garage.
Located within the much sought after town location of Hertford, offering easy access to the town centre, Hertford East train station and within the catchment area for the exceptional local schools.
- Summary - -
- Ground Floor - -
Entrance Hall -
Inner Hallway -
Shower Room -
Garden Room/Utility - 1.96m x 4.78m (6'5" x 15'8") -
Bedroom Three - 3.83m x 2.33m (12'6" x 7'7") -
- First Floor Landing - -
Landing -
Bedroom One - 3.51m x 4.78m (11'6" x 15'8") -
Bedroom Two - 2.13m x 2.68m (6'11" x 8'9") -
Family Bathroom -
- Second Floor Landing - -
Landing W/Storage -
Kitchen/Dining/Living Room - 7.92m x 4.78m (25'11" x 15'8") -
- Exterior - -
Rear Decked Garden -
2nd Floor Balcony -
Off-Street Parking -
Integral Garage -
Buyers Information:
In compliance with the UK's Anti Money Laundering (AML) regulations, we are required to confirm the identity of all prospective buyers at the point of an offer being accepted and use a third party, Identity Verification System to do so. There is a nominal charge of £48 (per person) including VAT for this service. For more information, please refer to the terms and conditions section of our website.

Agent Statistics (Based on 22 Reviews) :