The UK's Largest Customer Review Website for the Property Industry
The UK's Largest Customer Review Website for the Property Industry
Back to Property Listings
Chalkpit Lane, Chinnor
A really lovely two bedroom, two bathroom semi detached property situated on a popular road, with stunning views of the Chiltern Hills and nearby access to the beautiful Old Kiln Lakes nature reserve. Close to local shops and amenities and Chinnor`s infant and primary schools. Excellent transport links.
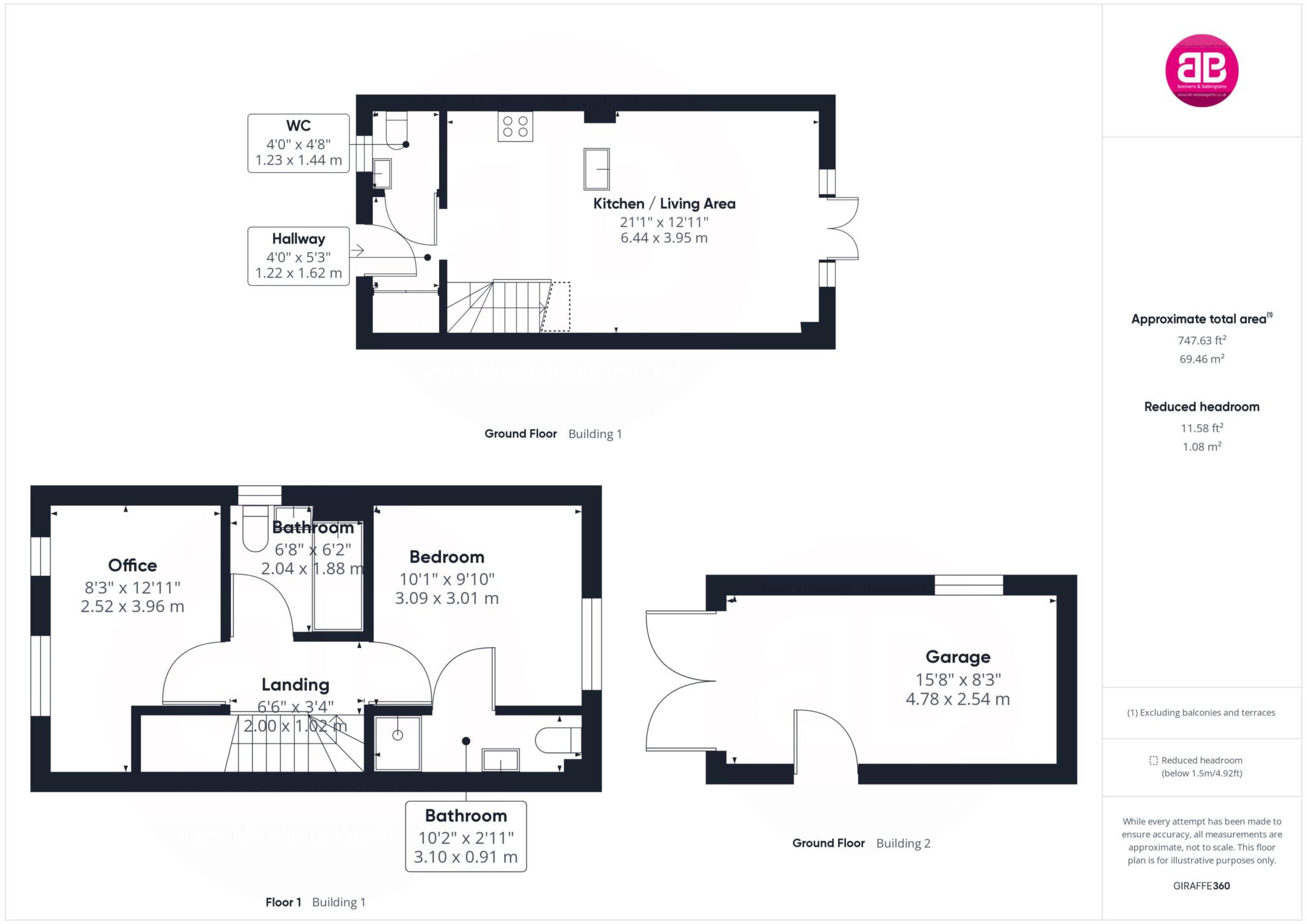
The property consists of an entrance hallway with access to the downstairs WC and large, practical utility/storage cupboard. Continuing on from the entrance is the well appointed open plan kitchen, housing an integrated double oven, electric hob, space for a slim-line dishwasher and fridge/freezer and includes a sociable breakfast bar area.The living room has French doors to the enclosed pretty garden backing on to the historic Chinnor Steam Heritage railway.
Upstairs comprises; Two double bedrooms, with the master bedroom benefitting from an ensuite with rainfall shower, vanity sink and heated towel rail. There is also a modern family bathroom with bath and overhead rainfall shower, vanity sink and heated towel rail.
Outside; The garden is mainly laid to lawn with an area of composite decking for summer entertaining. In addition, there is a large wooden storage shed. The property has two allocated parking spaces at the rear of the house, however one has been utilised by the shed and can be accessed via the garden or double doors from the driveway. There is ample visitor parking on the shared driveway to the side of the property.
Other notable features include gas central heating, UPVC double glazing, part boarded loft with ladder and wifi controlled light switches and heating.
Location
Situated at the foot of the Chiltern Hills, Chinnor is a popular village conveniently situated on the Oxfordshire/Buckinghamshire borders. Within the village there are good local facilities including a variety of shops, churches, pubs and restaurants, post office, doctor`s surgery, a nursery and two combined schools. Chinnor lies within catchment for the highly regarded Lord Williams`s secondary school in Thame.
M40(Junction 6) is within 3 miles giving access to Oxford(20 miles), High Wycombe(13 miles) and London(48 miles). Princes Risborough mainline station is within 5 miles (Marylebone 35 minutes).
Notice
Please note we have not tested any apparatus, fixtures, fittings, or services. Interested parties must undertake their own investigation into the working order of these items. All measurements are approximate and photographs provided for guidance only.
Disclaimer
We are required by law to conduct anti-money laundering checks and obtain verified ID from all purchasers. Whilst we retain responsibility for ensuring checks and any ongoing monitoring are carried out correctly, the initial checks are carried out using a third party, Creditsafe UK Limited. The cost of these checks is ?36 (incl. VAT) per person, which covers the cost of obtaining relevant data and any manual checks and monitoring which might be required. This fee will need to be paid before we can agree the sale and are able to issue a memorandum of sale and is non-refundable.
Council Tax
South Oxfordshire District Council, Band C
Utilities
Electric: Mains Supply
Gas: Mains Supply
Water: Mains Supply
Sewerage: Mains Supply
Broadband: None
Telephone: None
Other Items
Heating: Not Specified
Garden/Outside Space: No
Parking: No
Garage: No

Agent Statistics (Based on 9 Reviews) :