The UK's Largest Customer Review Website for the Property Industry
The UK's Largest Customer Review Website for the Property Industry
Back to Property Listings
Cemetery Road, Hemsworth, Pontefract
**NEW PRICE & NO CHAIN**A SPACIOUS three bedroom mid terrace in Hemsworth with rear extension, versatile living space & excellent POTENTIAL. VIRTUAL TOUR AVAILABLE. EPC rating D57.
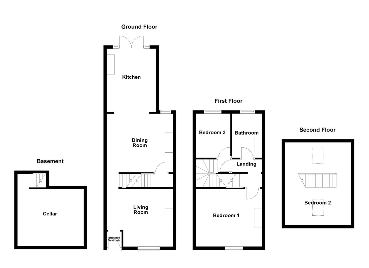
Situated in the popular Hemsworth area of Pontefract is this three bedroom mid terrace property, offering spacious accommodation over three floors, including three well proportioned bedrooms, versatile reception space, a rear kitchen extension and gardens to both the front and rear, this property presents excellent potential and is certainly not one to be missed.
The accommodation briefly comprises an entrance vestibule leading into the living room, which in turn provides access to a further hallway with stairs to the first floor and entry to the dining room. The dining room offers access to the cellar and flows through to the kitchen, which opens onto the rear garden. To the first floor, the landing provides access to two bedrooms and the house bathroom, with stairs leading to the second floor, where a further double bedroom and useful storage can be found. Externally, the front garden is laid with artificial lawn and bordered by mature shrubs, with a timber gate and pathway leading to the entrance door. The rear garden is designed for low maintenance with a pebbled patio area, ideal for outdoor dining and entertaining, and is fully enclosed with gated access to the rear.
Hemsworth is a fantastic location for a variety of buyers, including first time buyers, small families and professional couples. The property is conveniently placed for local shops, schools and the amenities of Hemsworth town centre, all within walking distance. The A1 motorway is also easily accessible for those commuting further afield. For leisure, Hemsworth Water Park is within walking distance, providing a wonderful family attraction.
In need of a degree of modernisation but offering excellent potential, this three bedroom mid terrace property must be viewed internally to be fully appreciated. An early viewing is highly recommended to avoid disappointment.
Accommodation -
Cellar - 4.20m x 3.77m (13'9" x 12'4") - Power and light, gas meter and electric meter.
Entrance Vestibule - Composite front door with frosted glass pane, coving to the ceiling and opening into the living room.
Living Room - 3.74m x 4.20m max x 2.78m min (12'3" x 13'9" max x - UPVC double glazed window to the front, central heating radiator, coving to the ceiling, picture rail, electric fireplace with marble hearth, surround and wooden mantle. Opening to a further hallway.
Hallway - Stairs to the first floor landing and an opening into the dining room.
Dining Room - 3.72m x 4.20m max x 3.67m min (12'2" x 13'9" max x - Access down to the cellar, an opening into the kitchen, UPVC double glazed window to the rear, dado rail, picture rail, central heating radiator and decorative fireplace with tiled hearth and wooden mantle.
Kitchen - 4.04m x 3.12m max x 2.80m min (13'3" x 10'2" max x - Range of wall and base units with laminate work surface over, stainless steel sink and drainer with mixer tap, tiled splashback, four ring electric hob with stainless steel extractor hood above, plus integrated oven. Space for under counter fridge/freezer and plumbing for a washing machine. A set of UPVC double glazed French doors to the rear garden and coving to the ceiling.
First Floor Landing - Coving to the ceiling, stairs to the second floor/bedroom two. Doors to three bedrooms and the house bathroom.
Bedroom One - 3.70m x 4.20m max x 3.24m min (12'1" x 13'9" max x - UPVC double glazed window to the front, coving to the ceiling, central heating radiator and fitted wardrobes.
Bedroom Three - 2.77m x 2.17m (9'1" x 7'1") - UPVC double glazed window to the rear, coving to the ceiling, dado rail and central heating radiator.
Bathroom/W.C. - 2.84m x 1.90m max x 1.38m min (9'3" x 6'2" max x 4 - Frosted UPVC double glazed window to the rear, coving to the ceiling, chrome ladder-style central heating radiator, fitted storage cupboard, low flush w.c, ceramic wash basin built into a vanity storage unit with mixer tap and a panelled bath with mixer tap and electric shower head attachment.
Second Floor -
Bedroom Two - 4.16m x 5.25m max x 2.25m min (13'7" x 17'2" max x - Two Velux skylights, central heating radiator and access to storage eaves.
Outside - To the front garden is mainly laid with artificial lawn, with a shrubbed border and a paved pathway to the front door. Enclosed by timber fencing with a timber gate providing access. To the rear is a low maintenance garden, mainly pebbled with a patio area, perfect for outdoor dining and entertaining, fully enclosed by timber fencing with a timber gate to the rear.
Council Tax Band - The council tax band for this property is A.
Floor Plans - These floor plans are intended as a rough guide only and are not to be intended as an exact representation and should not be scaled. We cannot confirm the accuracy of the measurements or details of these floor plans.
Viewings - To view please contact our Pontefract office and they will be pleased to arrange a suitable appointment.
Epc Rating - To view the full Energy Performance Certificate please call into one of our local offices.

This property is marketed by

Richard Kendall Estate Agent - Pontefract, Pontefract, WF8
4.9/5 Rating
(1653) reviews
Agent Statistics (Based on 1653 Reviews) :