The UK's Largest Customer Review Website for the Property Industry
The UK's Largest Customer Review Website for the Property Industry
Back to Property Listings
Castlehill Street, Stewarton
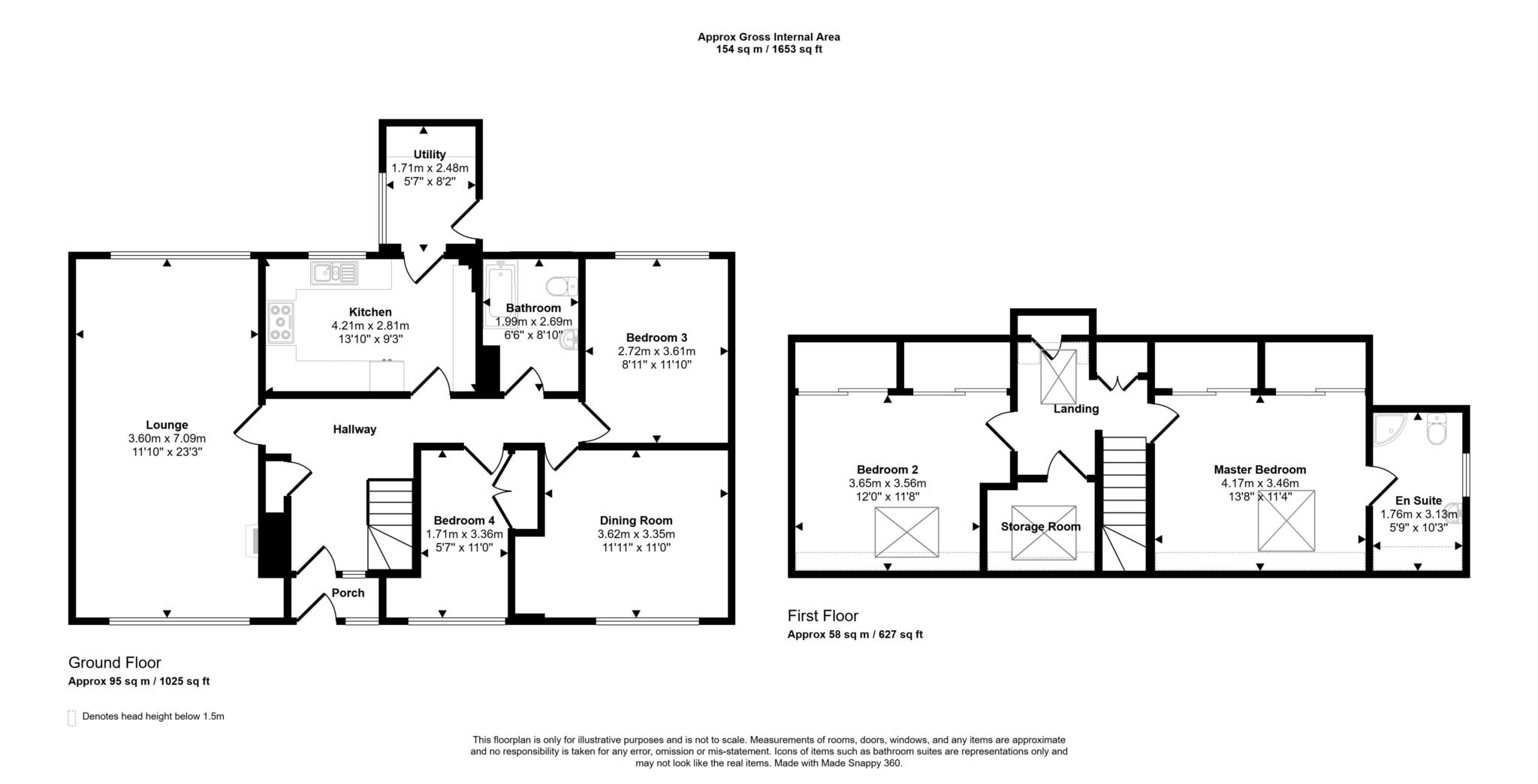
Nestled in the charming town of Stewarton, East Ayrshire, this spacious detached family home offers an exceptional opportunity for those seeking comfort, convenience, and a touch of countryside tranquillity. Priced attractively IN EXCESS OF ?315,000, this property boasts five generously sized bedrooms, making it ideal for larger families or those who require additional space for a home office or guest accommodation.
Upon entering, you are welcomed into a bright and inviting reception room, perfect for relaxing with family or entertaining guests. The room benefits from ample natural light, courtesy of double-glazed picturesque windows that not only enhance the aesthetic appeal but also contribute to the property`s energy efficiency. The gas central heating system ensures warmth and comfort throughout the colder months, providing a cosy atmosphere all year round, with the added Log burner to sit in front of in cold night, and is complimented by the bamboo flooring leading into the hallway.
The kitchen, designed with practicality in mind, offers plenty of storage and work surface space, ideal for preparing meals for a large household. Adjacent to the kitchen, with direct access to the utility and the rear garden, with the dining room/ 5th bedroom provides a sociable space for family meals or casual dining.
The five bedrooms are well-proportioned, the fourth bedroom is currently used as an office and with the master bedroom featuring an en-suite bathroom for added privacy and convenience. The additional bathroom serves the remaining bedrooms and guests.
Outside, the property benefits from a well-maintained garden, offering a peaceful retreat for outdoor activities, gardening, or simply enjoying the fresh air. The garage provides secure parking and additional storage, while the driveway accommodates two vehicles, ensuring ample parking for residents and visitors alike.
Double glazing throughout the property not only enhances security but also contributes to sound insulation, making this home a quiet and comfortable haven. The combination of these features makes this detached house a superb choice for families looking to settle in a friendly and accessible community.
Stewarton itself is a delightful town steeped in history and surrounded by beautiful Ayrshire countryside. Residents enjoy a range of local amenities including shops, cafes, and traditional pubs, all within easy reach. For those who appreciate outdoor pursuits, the nearby countryside offers excellent walking and cycling routes, allowing you to explore the scenic landscapes and enjoy the fresh air.
The town is also known for its community spirit, with various local events and activities held throughout the year, fostering a welcoming atmosphere for newcomers. For families, there are well-regarded schools in the area, providing quality education close to home.
Stewarton`s location offers excellent transport links, with easy access to the A77 and M77, making commuting to Glasgow or Ayr straightforward. The nearby Stewarton railway station provides regular services, further enhancing connectivity for work or leisure.
For leisure and recreation, residents can visit local parks, sports clubs, and community centres, ensuring there is always something to do. The town`s proximity to the coast means that beautiful beaches and seaside towns are just a short drive away, perfect for weekend outings.
In summary, this five-bedroom detached home in Stewarton presents a rare opportunity to acquire a spacious and well-appointed property in a vibrant and welcoming community. With its excellent features, convenient location, and the charm of East Ayrshire on your doorstep, this property is sure to appeal to families and professionals alike. Viewing is highly recommended to fully appreciate all that this home and the surrounding area have to offer.
LOUNGE - 11'10" (3.61m) x 23'3" (7.09m)
KITCHEN - 13'10" (4.22m) x 9'3" (2.82m)
UTILITY ROOM - 5'7" (1.7m) x 10'3" (3.12m)
DINING ROOM / BEDROOM 5 - 11'10" (3.61m) x 11'0" (3.35m)
BATHROOM - 6'6" (1.98m) x 8'10" (2.69m)
STUDY / BEDROOM FOUR - 5'7" (1.7m) x 11'0" (3.35m)
BEDROOM TWO - 12'0" (3.66m) x 11'8" (3.56m)
BEDROOM THREE - 9'0" (2.74m) x 11'10" (3.61m)
MASTER BEDROOM - 13'8" (4.17m) x 11'4" (3.45m)
Notice
Please note we have not tested any apparatus, fixtures, fittings, or services. Interested parties must undertake their own investigation into the working order of these items. All measurements are approximate and photographs provided for guidance only.
Council Tax
East Ayrshire Council, Band F
Utilities
Electric: Mains Supply
Gas: Mains Supply
Water: Mains Supply
Sewerage: Mains Supply
Broadband: FTTP
Telephone: Landline
Other Items
Heating: Gas Central Heating
Garden/Outside Space: Yes
Parking: Yes
Garage: Yes

Agent Statistics (Based on 0 Reviews) :