The UK's Largest Customer Review Website for the Property Industry
The UK's Largest Customer Review Website for the Property Industry
Back to Property Listings
Castleford Road, Normanton
NEW PRICE. TRULY DECEPTIVE from the roadside this is a spacious, CHARMING FOUR bedroom traditional home with TWO RECEPTION ROOMS and ATTIC ROOM. VIRTUAL TOUR AVAILABLE. EPC rating D64
Truly deceptive from the roadside, a larger style traditional end terrace house with two separate reception rooms, all situated in this convenient location on the fringe of the town centre.
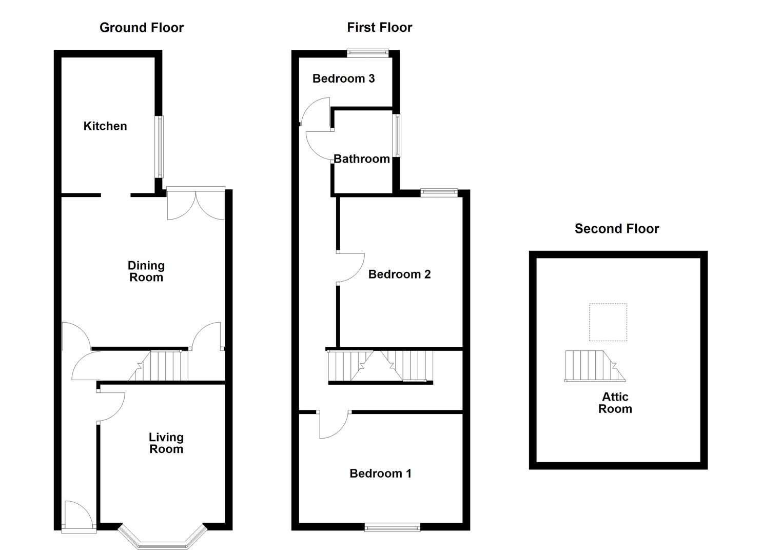
With a central heating system and double glazed windows, this comfortable family home is approached via a welcoming entrance hall that leads through into a good sized living room that splay bay windows to the front. To the rear there is a separate dining room with French doors out to the back garden and also leads through into the modern fitted kitchen. To the first floor there are two double bedrooms, a further single bedroom and a bathroom fitted with a modern white and chrome suite. The second floor is devoted to an attic room with characterful sloping ceilings. Outside, the property has a low maintenance buffer style garden to the front with a larger enclosed garden area to the rear.
The property is situated in this highly convenient location on the fringe of the town centre within easy reach of a broad range of shops, schools and recreational facilities. Normanton itself has its own railway station and ready access to the national motorway network.
Accommodation -
Reception Hall - 4.8m x 0.9m (15'8" x 2'11") - UPVC front entrance door, useful understairs store and trap door access to a cellar covering the front portion of the house.
Living Room - 3.7m x 3.4m (12'1" x 11'1") - Splay bay window to the front, feature fireplace with an ornate wooden surround with marbled insert and hearth housing a living flame coal effect gas fire.
Dining Room - 4.4m x 4.0m (14'5" x 13'1") - Double French doors out to the back garden, a further feature fireplace with wooden surround, marbled insert and hearth housing a living flame coal effect gas fire. Door to the cellar steps and archway through to the adjoining kitchen.
Kitchen - 3.6m x 2.5m (11'9" x 8'2") - Fitted with a good range of gloss white fronted wall and base units with contrasting dark laminate work surfaces and tiled splash backs. Inset stainless steel sink unit, five ring stainless steel gas hob with filter hood over, built in double oven, space and plumbing for a washing machine and tumble dryer. Space for a tall fridge/freezer, integrated dishwasher, kick space heater and double glazed window to the side.
First Floor -
Bedroom One - 4.5m x 2.9m (14'9" x 9'6") - Window to the front, double central heating radiator and wood effect laminate flooring.
Bedroom Two - 4.0m x 3.4m (13'1" x 11'1") - Continuation of the wood effect laminate flooring, double central heating radiator and window to the rear.
Bedroom Three - 2.5m x 2.4m (8'2" x 7'10") - Window to the rear and central heating radiator.
Bathroom/W.C. - 2.2m x 1.5m (7'2" x 4'11") - Fitted with a three piece white and chrome suite comprising P-shaped shower bath with glazed screen, pedestal wash basin and low suite w.c. Tiled walls, frosted window to the side and chrome ladder style heated towel rail.
Attic Room - 4.3m x 3.2m (14'1" x 10'5") - Wood effect laminate flooring, central heating radiator and velux style roof light.
Outside - To the front the property has a buffer style garden with crushed slate for low maintenance. To the rear of the house there is a larger enclosed garden area, designed for low maintenance with gates out to Gladstone Street at the side.
Solar Panels Leased - The property benefits from a system of solar panels that is subject to a lease arrangement through A Shade Greener. A full copy of our lease is available within our office.
Council Tax Band - The council tax band for this property is A.
Floor Plans - These floor plans are intended as a rough guide only and are not to be intended as an exact representation and should not be scaled. We cannot confirm the accuracy of the measurements or details of these floor plans.
Viewings - To view please contact our Normanton office and they will be pleased to arrange a suitable appointment.
Epc Rating - To view the full Energy Performance Certificate please call into one of our local offices.

This property is marketed by

Richard Kendall Estate Agent - Normanton, Normanton, WF6
4.9/5 Rating
(1653) reviews
Agent Statistics (Based on 1653 Reviews) :