The UK's Largest Customer Review Website for the Property Industry
The UK's Largest Customer Review Website for the Property Industry
Back to Property Listings
Castleford Road, Normanton
Situated in Normanton town centre is this THREE bedroom mid terraced property benefitting from AMPLE reception space, LOW MAINTENANCE YARD and MODERN fitted bathroom. VIEWING ESSENTIAL. EPC rating D63.
Situated only a short distance from Normanton town centre is this well presented and fully renovated three bedroom mid terrace home spanning over four floors and benefitting from well proportioned rooms and new carpets throughout.
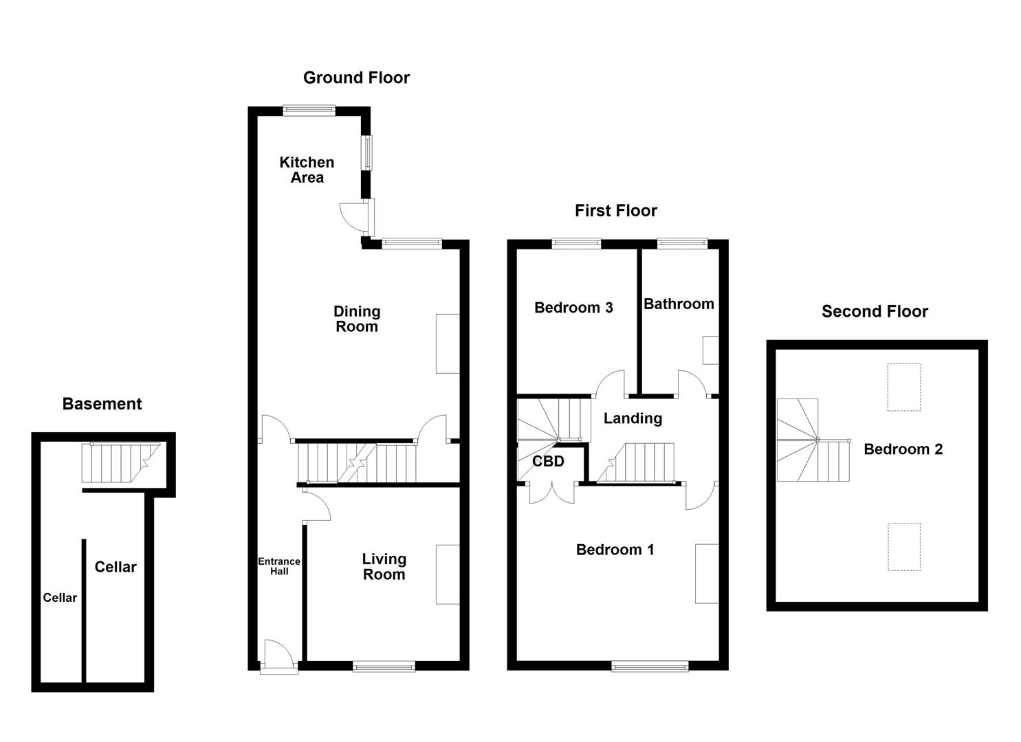
The property briefly comprises of entrance hall, spacious living room, open plan kitchen/dining room with access down to the cellar rooms. The first floor landing leads to two bedrooms and the brand new modern fitted house bathroom, with a further set of stairs leading to bedroom two. Outside to the front there is a small buffer garden, mainly paved, surrounded by walls and fencing. To the rear, there is a low maintenance decked patio area leading down to a paved patio area, perfect for outdoor dining and enclosed by walls and timber fencing.
Normanton plays host to a range of buyers as it is close to local amenities including good schools and shops, as well as transport links such as the M62 motorway network being only a short drive away. Normanton train station is nearby and main bus routes running to and from Wakefield and Castleford.
Only a full internal inspection will reveal all that's on offer at this quality home and an early viewing is highly advised to avoid any disappointment.
Accommodation -
Entrance Hall - New composite door, central heating radiator, coving to the ceiling, stairs to the first floor landing and doors to the open plan kitchen/dining room and living room.
Living Room - 4.02m x 3.21m (13'2" x 10'6") - Central heating radiator, UPVC double glazed window to the front, coving to the ceiling and ceiling rose. Picture rail, dado rail and gas fire with laminate hearth, surround and wooden mantle.
Dining Room - 4.02m x 4.28m (13'2" x 14'0") - UPVC double glazed window to the rear, central heating radiator, coving to the ceiling, decorative fire with marble, hearth and surround. An opening into the kitchen area and door providing access to the cellar. Start of the kitchen with wall and base units with laminate work surface over and under counter fridge and freezer.
Cellar - 4.02m x 2.33m (max) x 1.27m (min) (13'2" x 7'7" (m - Power and light, central heating radiator and opening into further cellar store.
Further Cellar - 2.91m x 0.98m (9'6" x 3'2") - Power and light.
Kitchen - 2.18m x 2.56m (7'1" x 8'4") - Range of wall and base units with laminate work surface over, sink and drainer with mixer tap and tiled splash back, gas cooker. Two UPVC double glazed windows and UPVC double glazed door leading out to the rear garden, LED ceiling spotlights and coving to the celling.
First Floor Landing - 4.32m x 4.02m (14'2" x 13'2") - Doors providing access to two bedrooms, house bathroom and stairs to a further bedroom.
Bedroom One - 4.32m x 4.02m (14'2" x 13'2") - Central heating radiator, UPVC double glazed window to the front, coving to the ceiling and door to storage cupboard.
Bedroom Three - 3.16m x 2.27m (10'4" x 7'5") - Central heating radiator, UPVC double glazed window to the rear and storage cupboard housing the Ideal combi boiler.
Bathroom/W.C. - 3.11m x 1.81m (max) x 1.5m (min) (10'2" x 5'11" (m - Modern fitted and fully tiled bathroom comprising UPVC double glazed frosted window to the rear, ladder style radiator, low flush w.c., pedestal wash basin with mixer tap, bath with mixer tap, glass shower screen and overhead shower attachment.
Bedroom Two - 4.32m x 5.34m (14'2" x 17'6") - Two Velux skylights and access to the storage eaves.
Outside - To the front of the property the garden is paved and enclosed by walls and fencing with a pathway leading to the front door. To the rear, there is a decked patio area leading to a paved patio area, perfect for outdoor dining and entertaining and enclosed by walls and timber fencing with a gate to the rear. There is possibility for off street parking to rear.
Council Tax Band - The council tax band for this property is A.
Floor Plans - These floor plans are intended as a rough guide only and are not to be intended as an exact representation and should not be scaled. We cannot confirm the accuracy of the measurements or details of these floor plans.
Epc Rating - To view the full Energy Performance Certificate please call into one of our local offices.
Viewings - To view please contact our Normanton office and they will be pleased to arrange a suitable appointment.

This property is marketed by

Richard Kendall Estate Agent - Normanton, Normanton, WF6
4.9/5 Rating
(1653) reviews
Agent Statistics (Based on 1653 Reviews) :