The UK's Largest Customer Review Website for the Property Industry
The UK's Largest Customer Review Website for the Property Industry
Back to Property Listings
Cassley Avenue, Renfrew, PA4
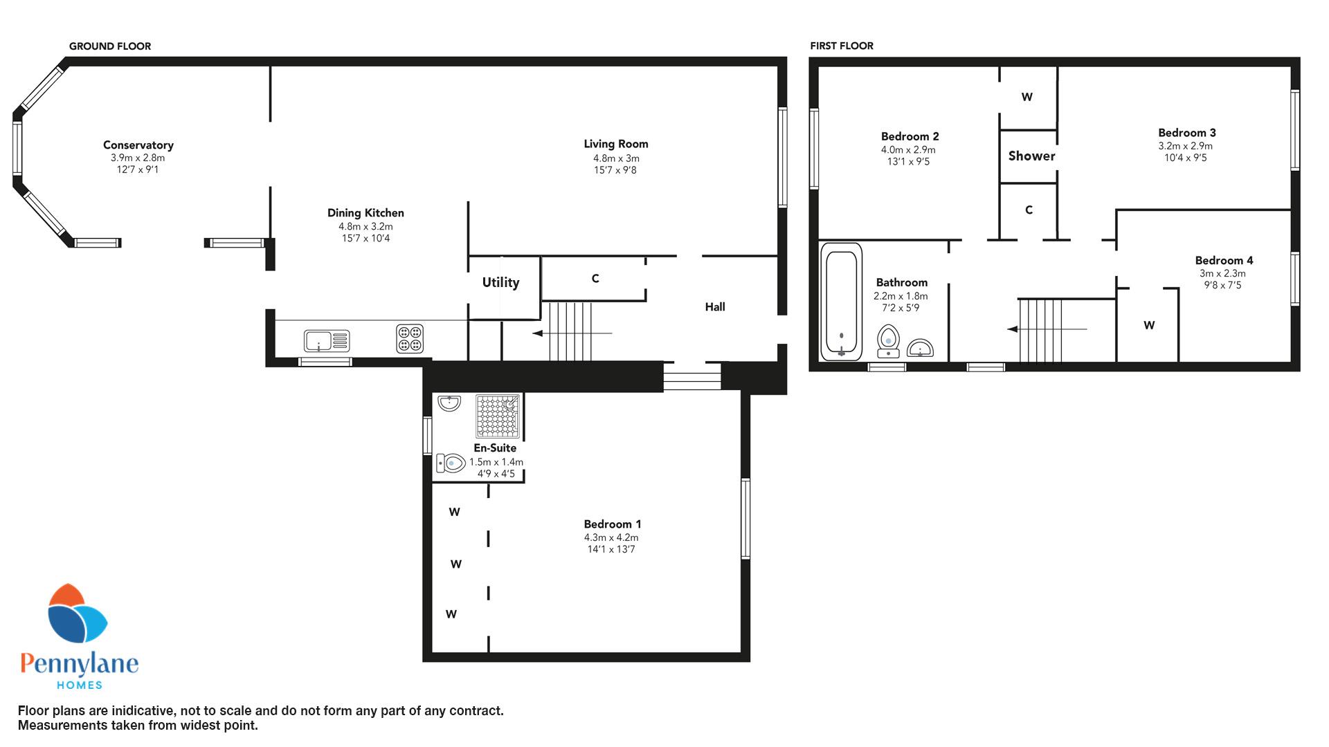
The property is accessed via a welcoming entrance hallway with stairway to upper level and under stair cupboard. The spacious lounge, to the front of the property, has been freshly and neutrally decorated, as with the rest of the property and has a large window overlooking the front garden and flooding the room with natural light. An archway within the lounge offers access to the dining kitchen, a fantastic area with ample space for a large dining table, perfect for any family. The kitchen itself comprises a combination of wall and floor mounted units with central island, integrated oven, four burner gas hob and hood. There is a fantastic utility cupboard off the kitchen, which doubles as a convenient larder cupboard. To the rear, overlooking the garden, is a large conservatory offering the perfect space for entertaining.
Also on the ground floor is a convenient additional bedroom with extensive fitted wardrobes and en-suite shower room. This is a large space and if not required as a bedroom, could make a fantastic additional lounge area, The en-suite comprises a modern three piece suite including walk in shower cubicle.
On the upper level the master bedroom has the added benefit of a unique yet convenient shower room with walk in shower. An additional double bedroom is quietly located to the rear and a smaller single with bulkhead storage is also available.
Externally there are extensive mature garden grounds to the rear with hedge surround and deck area, accessible via the kitchen or conservatory,
The property benefits from gas central heating and double glazing throughout.
To the front there is an additional private garden and monoblock driveway parking for two vehicles. Additional parking is available nearby.
Cassley Avenue is a quiet cul-de-sac within the ever popular Deanpark area of Renfrew. All local amenities are available a short distance from the property. The area is popular with families with many green spaces for children to play and easy access to many local schools, Arkleston and Newmains Primary Schools and Trinity and Renfrew High Schools. Renfrew Town Centre is a short walk from the property. Easy access to the M8 Motorway and new Renfrew/Yoker Bridge make this a popular location for commuters.
Notice
Please note we have not tested any apparatus, fixtures, fittings, or services. Interested parties must undertake their own investigation into the working order of these items. All measurements are approximate and photographs provided for guidance only.
Council Tax
Renfrewshire Council, Band E
Utilities
Electric: Mains Supply
Gas: Mains Supply
Water: Mains Supply
Sewerage: Mains Supply
Broadband: Unknown
Telephone: Unknown
Other Items
Heating: Gas Central Heating
Garden/Outside Space: Yes
Parking: Yes
Garage: No

Agent Statistics (Based on 197 Reviews) :