The UK's Largest Customer Review Website for the Property Industry
The UK's Largest Customer Review Website for the Property Industry
Back to Property Listings
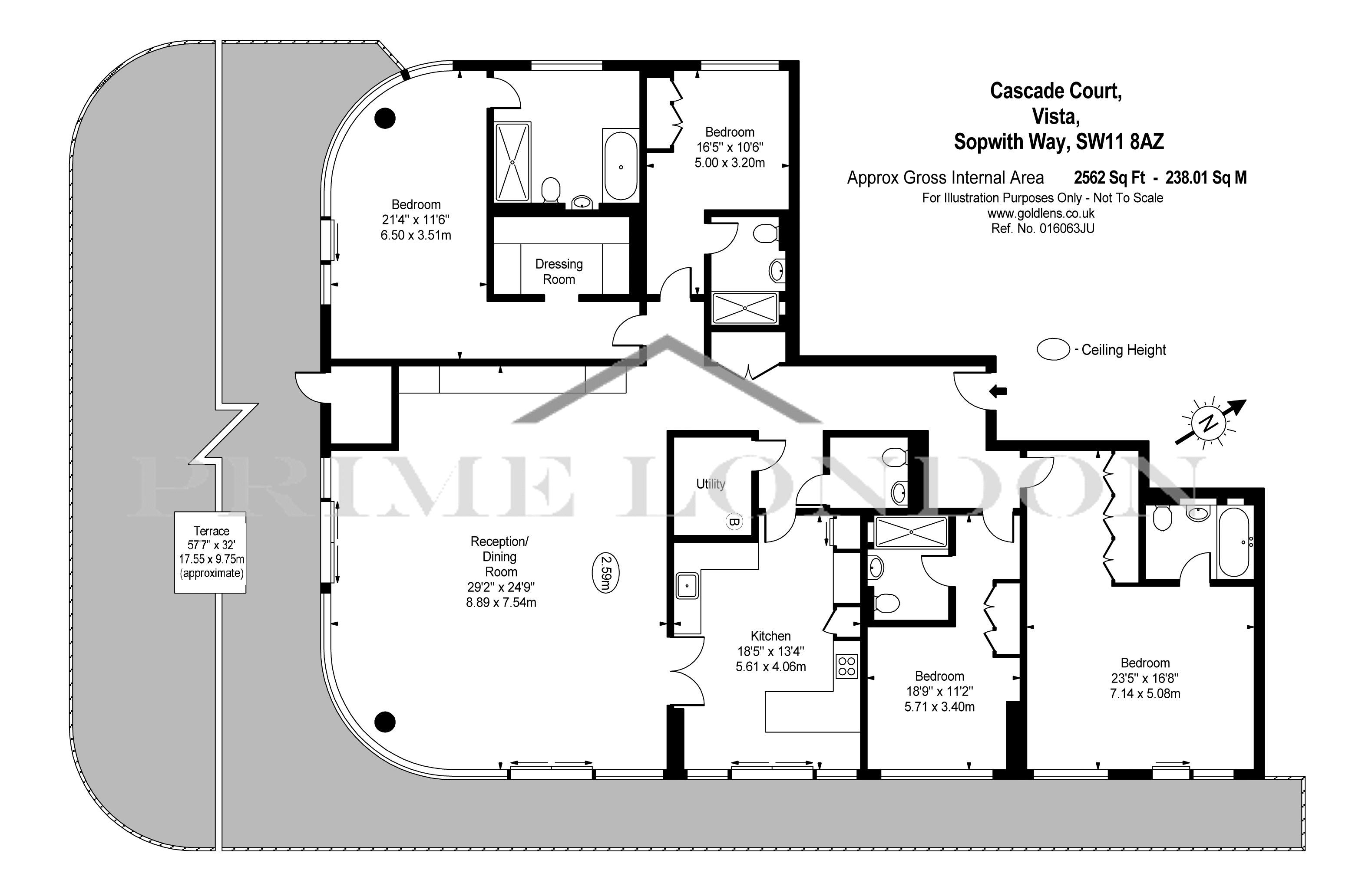
Cascade Court, Vista Chelsea Bridge Wharf, London
An exceptional penthouse apartment directly overlooking Battersea Park, offering 2,562 sq ft (238 sqm) internally and a staggering private terrace, available through Prime London.
The property is one of a kind, with bespoke internal updates and furnishings throughout its curved reception, eat-in kitchen, four double bedrooms (master with dressing room and en-suite bath and shower) and elegant hallway.
Cascade Court at Vista is the primary phase in this contemporary development (with residents' leisure facilities and 24 hour concierge service), offering bright apartments with magnificent large windows and superb finishes, quality engineered timber flooring, kitchens with subtle satin finishes and beautiful stone work surfaces, high specification bathrooms and bedrooms with a fusion of subtle lighting, muted tones and soft carpeting.
The innovative and striking architecture has been conceived by world-leading architects Scott Brownrigg, to incorporate extensive outdoor landscaping and feature terraces whilst fitting into the beautiful surroundings of Battersea Park.

This property is marketed by

Prime London Residential - Prime London, London, SE1
4.9/5 Rating
(316) reviews
Agent Statistics (Based on 316 Reviews) :