The UK's Largest Customer Review Website for the Property Industry
The UK's Largest Customer Review Website for the Property Industry
Back to Property Listings
Cannon Street, Little Downham, Ely
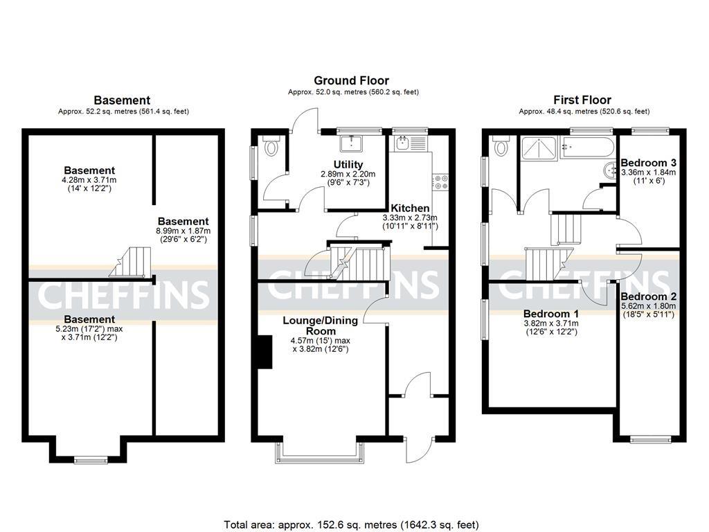
A spacious semi detached property situated within a highly regarded location and offered for sale with no upward chain. Accommodation comprises entrance porch and hallway, living room, kitchen, rear hall with steps down to cellar, utility, cloakroom, 3 bedrooms and bathroom with separate WC. Outside, to the front of the property there is an extensive driveway and to the rear there is a garden with a further double width driveway with garage/workshop. The property would benefit from some cosmetic updating, however, retains a number of attractive character features and to be fully appreciated a viewing is recommended.
Entrance Porch - With door to front aspect.
Entrance Hall - With attractive leaded light and stained glass window to front aspect, woodblock floor, stairs to first floor, radiator.
Lounge - With gas fire with tiled surround and hearth, woodblock floor, double glazed bay window to front aspect, radiator.
Kitchen - With wall and base level storage units, work surfaces and drawers, stainless steel sink unit and drainer, cooker space, double glazed window to rear aspect, radiator.
Rear Hall - With double glazed window to side aspect, steps down to:
Cellar - With 3 separate rooms, power and light connected and housing the gas fired central heating boiler.
Utility - With double glazed window and door to rear garden, butler sink, work surfaces and storage cupboards, radiator.
Cloakroom - With high level WC, double glazed window to side aspect.
Half Landing - With feature stained glass window to side aspect, exposed timber floorboards, radiator.
Wc - With low level WC, double glazed window to side aspect, radiator.
Bathroom - With pedestal hand wash basin, panelled bath, shower cubicle, double glazed window to rear aspect, airing cupboard housing hot water cylinder, radiator.
Landing -
Bedroom 1 - With double glazed window to side aspect, radiator.
Bedroom 2 - With double glazed window to front aspect with an attractive view beyond neighbouring properties of countryside.
Bedroom 3 - With double glazed window to rear aspect, radiator.
Outside - To the front of the property there is a spacious driveway providing ample off street parking. Gated pedestrian access leads to the rear garden which is laid to lawn. To the rear of the garden there is a further double width driveway with sectional garage/workshop.
Viewing Arrangements - Strictly by appointment with the Agents.

Agent Statistics (Based on 1530 Reviews) :