The UK's Largest Customer Review Website for the Property Industry
The UK's Largest Customer Review Website for the Property Industry
Back to Property Listings
Campsie Drive, Renfrew, PA4
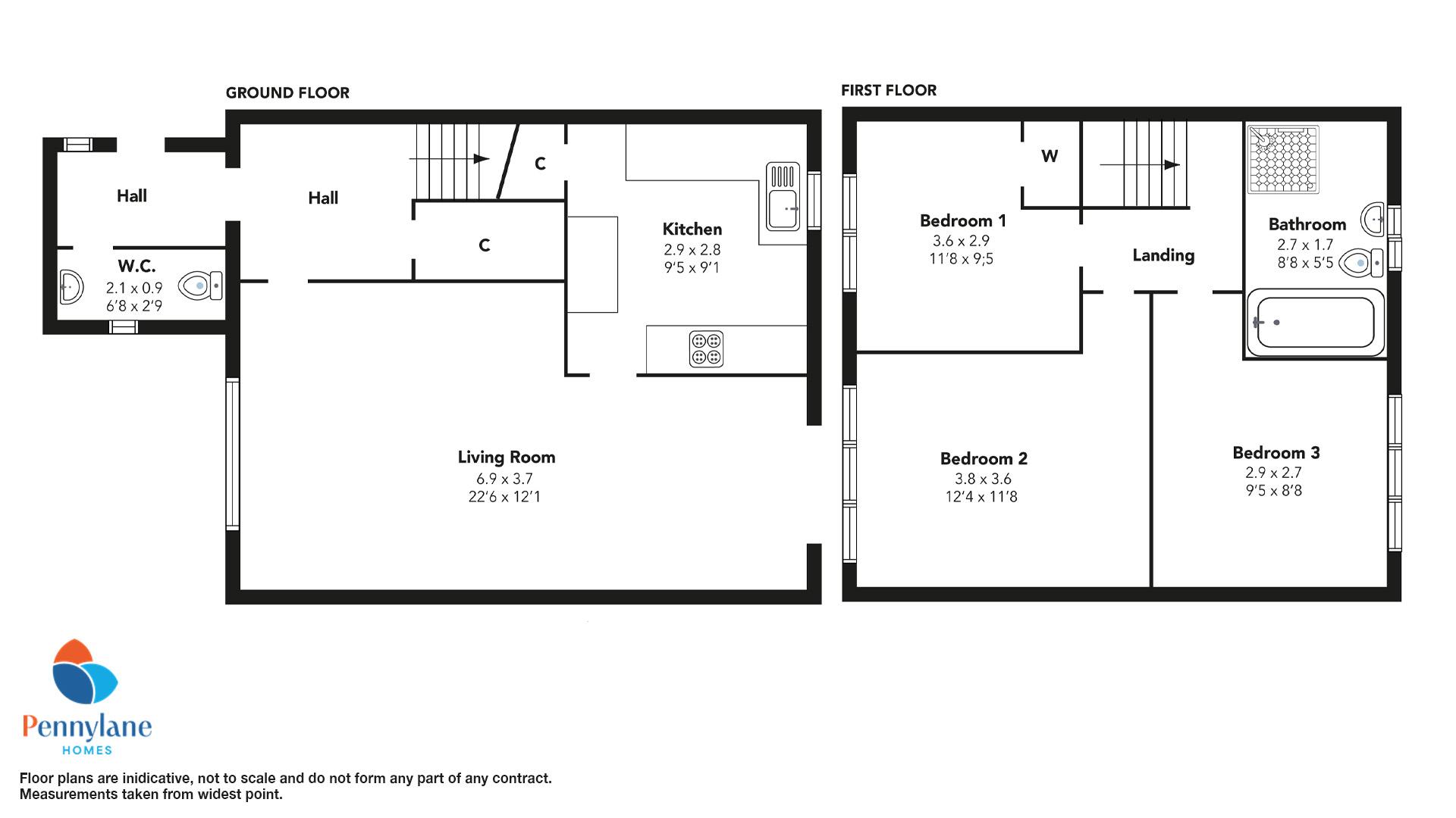
The property is accessed via a recently added extension, comprising entrance vestibule including convenient downstairs WC comprising modern two piece white suite. The fantastic lounge/dining room has been freshly plastered throughout and benefits from windows to the front and patio doors to the rear creating a bright and airy space. Accessed via the living space is the kitchen, which requires modernisation.
On the upper level there are three spacious bedrooms and a family bathroom which has been upgraded to include a modern four piece suite with bath and separate shower cubicle.
The property benefits from gas central heating and double glazing throughout.
Externally, there are private gardens to the rear and driveway parking to the front as well as single garage.
The property is located at the end of a quiet cul-de-sac in this popularv pocket of Renfrew with easy access to the M8 Motorway, making this a popular spot for commuters, Renfrew and Paisley town centres are each a short distance from the property where all local amenities are readily available.
Notice
Please note we have not tested any apparatus, fixtures, fittings, or services. Interested parties must undertake their own investigation into the working order of these items. All measurements are approximate and photographs provided for guidance only.
Council Tax
Renfrewshire Council, Band E
Utilities
Electric: Mains Supply
Gas: Mains Supply
Water: Mains Supply
Sewerage: Mains Supply
Broadband: Unknown
Telephone: Unknown
Other Items
Heating: Gas Central Heating
Garden/Outside Space: Yes
Parking: Yes
Garage: Yes

Agent Statistics (Based on 197 Reviews) :