The UK's Largest Customer Review Website for the Property Industry
The UK's Largest Customer Review Website for the Property Industry
Back to Property Listings
Campden Close, Uppingham, Rutland
A generously proportioned and immaculately presented, four-bedroom detached home with off-road parking, garaging and open countryside views, sitting in a popular location within walking distance of the sought-after market town of Uppingham.
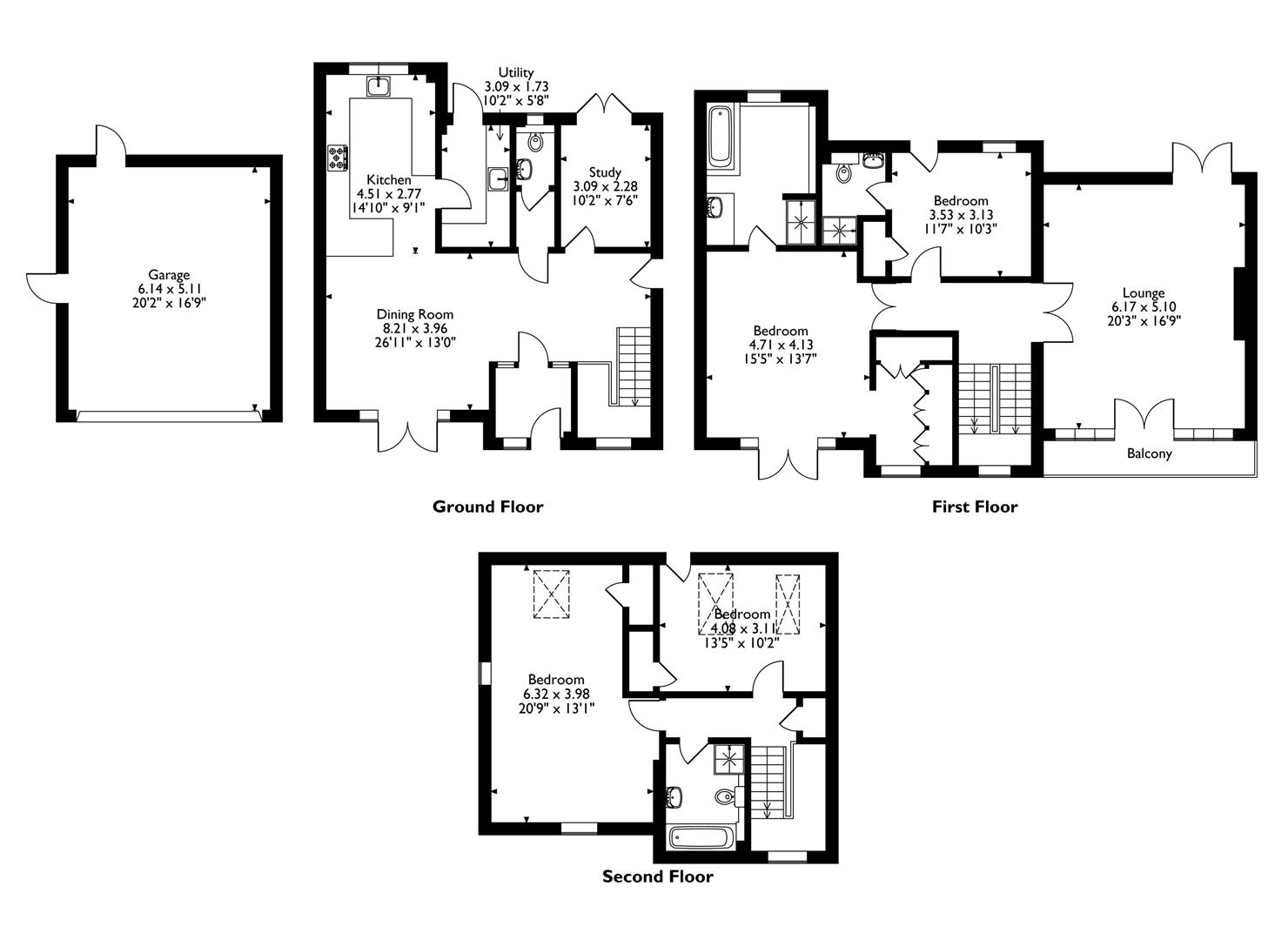
Ground Floor - The property is arranged over three floors, the ground floor comprising a large open-plan living kitchen, an office, utility room and downstairs cloakroom. The first floor comprising a large reception room and two ensuite bedrooms. The second floor provides two further double bedrooms and a bathroom.
Enter the property into a porch with a door opening into a spacious entrance hall with access to the office that has French doors opening out to the garden, downstairs cloakroom, and integral garage.
The hall then flows to the left into the open plan living kitchen that spans the depth of the property with windows to the rear and a French door opening to the front. There are a good range of fitted units with a variety of integrated appliances, a breakfast bar and space for both dining and seating areas. The utility is accessed from the kitchen and offers further storage, space for white goods and a door out to the rear.
First Floor - Stairs rise to the first floor where you'll find the generously sized, light and airy sitting room with a gas fire, and French doors to both the front and rear. The front French door opens to a balcony offering the ideal spot to take in the countryside views and the rear French door to a suspended walkway leading to the mature garden.
Two bedrooms are located on the first floor, the master bedroom suite, complemented by a large walk-in wardrobe, a French door out to a balcony with wonderful countryside views and an ensuite bathroom comprising a bath, separate shower, wash hand basin, low flush lavatory, bidet and a heated towel rail. The second bedroom also has its own ensuite shower room, built-in storage and a door opening to a Juliet balcony overlooking the rear garden.
There are a further two double bedrooms to the second floor, both with built in storage and served by a bathroom comprising a bath, separate shower, wash hand basin, low flush lavatory and a heated towel rail.
Outside - The property is accessed via a block-paved driveway offering ample off-road parking and access to the integral double garage. There is a patio to the front with a pathway leading to the front door and a gate to the left-hand side leading to the rear garden.
To the rear of the property there is a beautifully-landscaped, tiered garden with well-established planting and a variety of seating areas to take advantage of the sun throughout the day.
Location - Uppingham is a thriving and highly attractive market town with an eclectic mix of boutique shops and restaurants centred around the Market Square and adjoining High Street. There are several excellent primary and secondary schools in the area. Situated close to the A47, Uppingham is well located for Leicester, Peterborough, Corby, and Kettering. These 4 centres all have main line train services and the ability of reaching London within the hour.
Services & Council Tax - The property is offered to the market with all mains services and gas-fired central heating.
Rutland County Council - Tax Band G
Tenure - Freehold

This property is marketed by

James Sellicks Estate Agents - London office, London, SW1A
5/5 Rating
(281) reviews
Agent Statistics (Based on 281 Reviews) :