The UK's Largest Customer Review Website for the Property Industry
The UK's Largest Customer Review Website for the Property Industry
Back to Property Listings
Cambridge Street, Normanton
For sale by Modern Method of Auction; Starting Bid Price £325,000 plus reservation fee. Subject to an undisclosed reserve price. Situated in Normanton is this NINE bedroom end terrace house benefitting from AMPLE reception space and PLENTIFUL off street parking. VIEWING ESSENTIAL. This property is for sale by West Yorkshire Property Auction powered by iamsold ltd. EPC rating E47.
For sale by Modern Method of Auction; Starting Bid Price £325,000 plus reservation fee. Subject to an undisclosed reserve price.
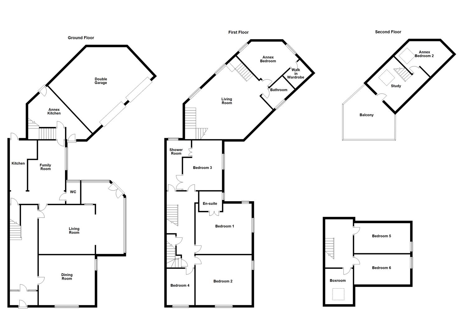
Situated just out of Normanton town centre is this expansive nine bedroomed end terraced home, featuring well proportioned accommodation spanning over three floors and an annex extension to the rear.
The property features an entrance hall leading to the inner hallway, with access to the dining room, living room, family room and stairs to the first floor. The living room opens to a side conservatory, while the family room connects to the kitchen, understairs storage, downstairs W.C. and annex kitchen. Both kitchens open to the rear garden. Upstairs, the first floor offers four bedrooms (the main with an en suite), a shower room, storage cupboard and stairs to the second floor, which hosts two more bedrooms and a box room. The annex includes a kitchen with garden access and stairs leading to a first floor living area, bathroom and bedroom with walk in wardrobe. The second floor features a study, a second bedroom and a balcony. Outside, a large block paved driveway provides ample parking or patio space, leading to a double garage and a fully enclosed rear garden ideal for outdoor entertaining.
Normanton is an ideal location especially for the growing family or those looking to be close to local amenities as shops, pubs and schools can all be found within walking distance especially within Normanton town centre itself. Normanton does have local bus routes running to and from neighbouring towns and cities such as Wakefield, Castleford and Pontefract. The Normanton train station also serves those looking for more major city links including Leeds and Sheffield. For those who look to travel even further afield the M62 motorway link is only a stones throw from the property.
A complete internal inspection is essential to fully appreciate all that is on offer. While some renovation is required, the property offers great potential. An early viewing is strongly recommended to avoid disappointment.
This property is for sale by West Yorkshire Property Auction powered by iamsold ltd.
Accommodation -
Entrance Porch - UPVC double glazed front door with stained glass double glazed pane above into the entrance porch. Door to inner hallway. Coving to the ceiling, dado rail, original tiled flooring.
Inner Hallway - Door with frosted glass pane into inner hallway. Coving to the ceiling, ceiling rose, stairs to first floor landing, central heating radiator. Doors to dining room, living room and the family room.
Dining Room - 4.86m x 4.33m (max) x 3.95m (min) (15'11" x 14'2" - UPVC double glazed bow window to the front, UPVC double glazed window to the side, coving to the ceiling, ceiling rose, central heating radiator. Decorative fire place with tiled hearth surround and wooden mantle.
Living Room - 4.89m x 4.34m (max) x 3.96m (min) (16'0" x 14'2" - Opening through to the conservatory, central heating radiator, coving to the ceiling, ceiling rose, open fireplace with tiled hearth surround and wooden mantle.
Side Conservatory - 6.43m x 4.08m (max) x 2.4m (min) (21'1" x 13'4" ( - Surrounded by UPVC double glazed windows with a set of UPVC double glazed French doors providing access, central heating radiator.
Family Room - 4.8m x 5.61m (max) x 1.08m (min) (15'8" x 18'4" (m - UPVC double glazed window to the side, coving to the ceiling, decorative panelling, central heating radiator, understairs storage cupboard. Access to the downstairs W.C., access to the annex, opening to the kitchen.
Downstairs W.C. - 1.96m x 0.93m (6'5" x 3'0") - Frosted UPVC double glazed window to the rear, spotlights, coving to the ceiling, full tiling. Low flush W.C., pedestal wash basin.
Kitchen - 2.33m x 4.32m (max) x 1.6m (min) (7'7" x 14'2" (ma - Timber framed rear door, coving to the ceiling. A range of wall and base units with laminate worksurface over, space and plumbing for a range style cooker with a stainless steel extractor hood above, tiled splashback, ceramic Belfast sink with mixer tap, partial panelling to the walls.
First Floor Landing - Coving to the ceiling, picture rail, ceiling rose. Doors to four bedrooms, shower room, storage cupboard. Stairs to the second floor landing.
Shower Room - 2.09m x 4.32m (max) x 1.24m (min) (6'10" x 14'2" ( - Frosted UPVC double glazed window to the rear, central heating radiator, panelling to the walls. Wall mounted wash basin, pull chain high flush W.C., shower cubicle with mains fed overhead shower. Doors to bedroom three.
Bedroom One - 4.89m x 4.36m (max) x 3.98m (min) (16'0" x 14'3" ( - Two UPVC double glazed windows to the side and rear, central heating radiator, coving to the ceiling. A range of fitted wardrobes with mirrored doors. Door to en suite bathroom.
En Sute Bathroom - 1.78m x 1.7m (5'10" x 5'6") - Frosted UPVC double glazed window to the side, spotlights, central heating radiator, coving to the ceiling. Pedestal wash basin, low flush W.C., sunken bath with mixer tap. Tiling thoughout.
Bedroom Two - 4.89m x 4.35m (max) x 3.97m (min) (16'0" x 14'3" ( - Two UPVC double glazed windows to the front and side, central heating radiator, coving to the ceiling.
Bedroom Three - 3.17m x 4.33m (max) x 2.6m (min) (10'4" x 14'2" (m - UPVC double glazed window to the side, coving to the ceiling, ceiling rose, central heating radiator. Doors to shower room.
Bedroom Four - 2.4m x 3.15m (7'10" x 10'4" ) - UPVC double glazed window to the front, central heating radiator, coving to the ceiling.
Second Floor Landing - Access to loft storage. Doors to bedrooms five, six and a boxroom. Velux skylight.
Bedroom Five - 4.88m x 2.61m (max) x 2.24m (min) (16'0" x 8'6" (m - UPVC double glazed window to the side, central heating radiator, fitted wardrobes, access to storage eaves.
Bedroom Six - 4.87m x 2.6m (max) x 2.25m (min) (15'11" x 8'6" (m - UPVC double glazed window to the side, central heating radiator, access to the storage eaves.
Boxroom - 2.43m x 2.3m (7'11" x 7'6") - Skylight, central heating radiator.
Annex -
Annex Kitchen - 5.67m x 2.68m (max) x 1.09m (min) (18'7" x 8'9" (m - Entrance door with frosted double glazed pane. Frosted and stained UPVC double glazed door to the rear, central heating radiator, boiler cupboard housing the boiler and water tank, further storage cupboard. Wall and base units with laminate worksurface over, 1 1/2 sink and drainer with mixer tap, tiled splashback, space and plumbing for a gas cooker. Door to further hallway.
Annex Further Hallway - Access to the family room of the main property, stairs to the first floor of the annex.
Annex First Floor Landing - 5.68m x 7.39m (max) x 4.28m (min) (18'7" x 24'2" ( - Lead into the open plan living area. Three UPVC double glazed windows to the side and rear, coving to the ceiling, spotlights, two central heating radiators. Doors to annex bedroom one and the annex bathroom. Stairs to the second floor of the annex.
Annex Bathroom - 1.56m x 2.51m (5'1" x 8'2") - Frosted UPVC double glazed window to the side, spotlighting to the ceiling, coving to the ceiling, partial tiling. Low flush W.C., pedestal wash basin, tiled in bath with mixer tap and shower head attachment.
Annex Bedroom One - 3.81m x 4.0m (max) x 1.6m (min) (12'5" x 13'1" (ma - Two UPVC double glazed windows to the side and the rear, central heating radiator, coving to the ceiling, access to a walk in wardrobe.
Annex Walk In Wardrobe - 1.96m x 1.57m (6'5" x 5'1") -
Annex Second Floor Landing - 4.24m x 3.5m (max) x 1.2m (min) (13'10" x 11'5" (m - Lead to the study area, access to the storage eaves, spotlights, Velux skylight, frosted UPVC double glazed door to the balcony. Door to annex bedroom two.
Annex Bedroom Two - 3.82m x 3.51m (max) x 2.16m (min) (12'6" x 11'6" ( - Velux skylight, spotlights, access to storage eaves.
Annex Balcony - 4.7m x 4.32m (max) x 1.37m (min) (15'5" x 14'2" (m - Surrounded by iron railing with corrugated privacy plaster.
Double Garage - 7.35m x 5.6m (max) x 3.0m (min) (24'1" x 18'4" (ma - Two manual up and over doors, power and light within.
Outside - The front and side gardens hold the main gardens of the property which are fairly low maintenance and are made up of block paved driveway/patio area, perfect for outdoor dining and entertaining purposes but offering off road parking for several vehicles. The driveway and garden is accessed by a set of iron double gates and is surrounded by walls. To the rear of the property is a small courtyard style paved patio area which is fairly low maintenance, perfect for outdoor dining and entertaining purposes and is fully enclosed by walls.
Council Tax Band - The council tax band for this property is D.
Floor Plans - These floor plans are intended as a rough guide only and are not to be intended as an exact representation and should not be scaled. We cannot confirm the accuracy of the measurements or details of these floor plans.
Epc Rating - To view the full Energy Performance Certificate please call into one of our local offices.
Viewings - To view please contact our Normanton office and they will be pleased to arrange a suitable appointment.
Auctioneer's Comments - This property is for sale by Modern Method of Auction allowing the buyer and seller to complete within a 56 Day Reservation Period. Interested parties' personal data will be shared with the Auctioneer (iamsold Ltd).
If considering a mortgage, inspect and consider the property carefully with your lender before bidding. A Buyer Information Pack is provided, which you must view before bidding. The buyer is responsible for the Pack fee. For the most recent information on the Buyer Information Pack fee, please contact the iamsold team.
The buyer signs a Reservation Agreement and makes payment of a Non-Refundable Reservation Fee of 4.5% of the purchase price inc VAT, subject to a minimum of £6,600 inc. VAT. This Fee is paid to reserve the property to the buyer during the Reservation Period and is paid in addition to the purchase price. The Fee is considered within calculations for stamp duty.
Services may be recommended by the Agent/Auctioneer in which they will receive payment from the service provider if the service is taken. Payment varies but will be no more than £960 inc. VAT. These services are optional.

This property is marketed by

Richard Kendall Estate Agent - Normanton, Normanton, WF6
4.9/5 Rating
(1653) reviews
Agent Statistics (Based on 1653 Reviews) :