The UK's Largest Customer Review Website for the Property Industry
The UK's Largest Customer Review Website for the Property Industry
Back to Property Listings
Cambridge Street, Normanton
A GENEROUS three bedroom family home presented to a HIGH STANDARD with garden backing onto playing fields. VIRTUAL TOUR AVAILABLE. EPC rating C70.
An attractively presented larger style traditional terrace house presenting three bedroomed family accommodation with lovely views out to the rear over the school playing fields.
With a gas fired central heating system and sealed unit double glazed windows, this comfortable family home is presented to an excellent standard and is approached via a welcoming entrance hall that leads through into a central dining room with views over the rear garden and an archway through to the main living room at the front of the house which has a splay bay window and feature fireplace. To the rear there is a kitchen fitted with a good range of modern units with integrated appliances. On the first floor there are two very well proportioned double bedrooms, plus a further single bedroom, all served by a bathroom fitted with a modern white and chrome suite. Outside, to the front the property has a neat buffer style garden with steps up to the front door. To the rear there is a much larger garden with a well proportioned lawn, paved patio sitting area and hand gate out to the rear gate, as well as planted beds.
The property is situated in this popular residential area on the fringe of the town centre within very easy reach of a good range of shops, schools and recreational facilities. Normanton itself has its own railway station and ready access to the national motorway network.
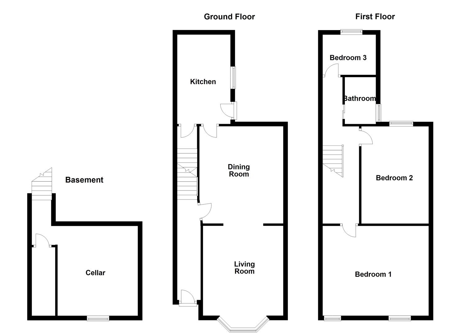
Accommodation -
Reception Hall - Storm porch to the front, composite front entrance door, ceramic tiled floor, double central heating radiator and stairs to the first floor.
Living Room - 4.0m x 3.6m (13'1" x 11'9") - Wood effect herringbone flooring, splay bay window to the front, double central heating radiator and feature fireplace with marble surround, hearth and inset housing a living flame coal effect gas fire. Archway through to the adjoining dining room.
Dining Room - 4.4m x 3.7m (14'5" x 12'1") - Window overlooking the back garden, double central heating radiator, continuation of the herringbone flooring and former fireplace.
Kitchen - 4.0m x 2.4m (13'1" x 7'10") - Fitted with a lovely range of contemporary style wall and base units brass handles, marble effect laminate work surface and tiled splash backs. Inset ceramic sink unit, point for a Range style cooker with filter hood over, integrated fridge and freezer, space and plumbing for a washing machine and integrated dishwasher. Door to the cellar head, window and external door to the side.
First Floor Landing - Loft access point.
Bedroom One - 4.8m x 4.0m (15'8" x 13'1") - A lovely large bedroom with two windows to the front, two central heating radiators and contemporary style wood effect laminate flooring.
Bedroom Two - 4.3m x 3.0m (14'1" x 9'10") - Window overlooking the back garden, double central heating radiator and wood effect laminate flooring.
Bedroom Three - 2.4m x 2.2m (7'10" x 7'2") - Currently used as a home office with lovely views over the back garden and school playing fields beyond. Central heating radiator.
Bathroom/W.C. - 2.1m x 1.4m (6'10" x 4'7") - Fitted with a three piece white and chrome suite comprising panelled bath with electric shower over, pedestal wash basin and low suite w.c. Frosted window to the side, extractor fan, tiled walls and floor.
Outside - To the front the property has a neat buffer style garden. Whilst round to the rear there is a larger garden area, laid mainly to lawn with a paved patio sitting area and pleasant southerly aspect.
Council Tax Band - The council tax band for this property is A.
Floor Plans - These floor plans are intended as a rough guide only and are not to be intended as an exact representation and should not be scaled. We cannot confirm the accuracy of the measurements or details of these floor plans.
Viewings - To view please contact our Normanton office and they will be pleased to arrange a suitable appointment.
Epc Rating - To view the full Energy Performance Certificate please call into one of our local offices.

This property is marketed by

Richard Kendall Estate Agent - Normanton, Normanton, WF6
4.9/5 Rating
(1653) reviews
Agent Statistics (Based on 1653 Reviews) :