The UK's Largest Customer Review Website for the Property Industry
The UK's Largest Customer Review Website for the Property Industry
Back to Property Listings
Camberwell Grove, Camberwell, SE5
Impressive Four Bedroom Home With Garage and Generous Garden - CHAIN FREE.
GUIDE PRICE £2,000,000 to £2,200,000.
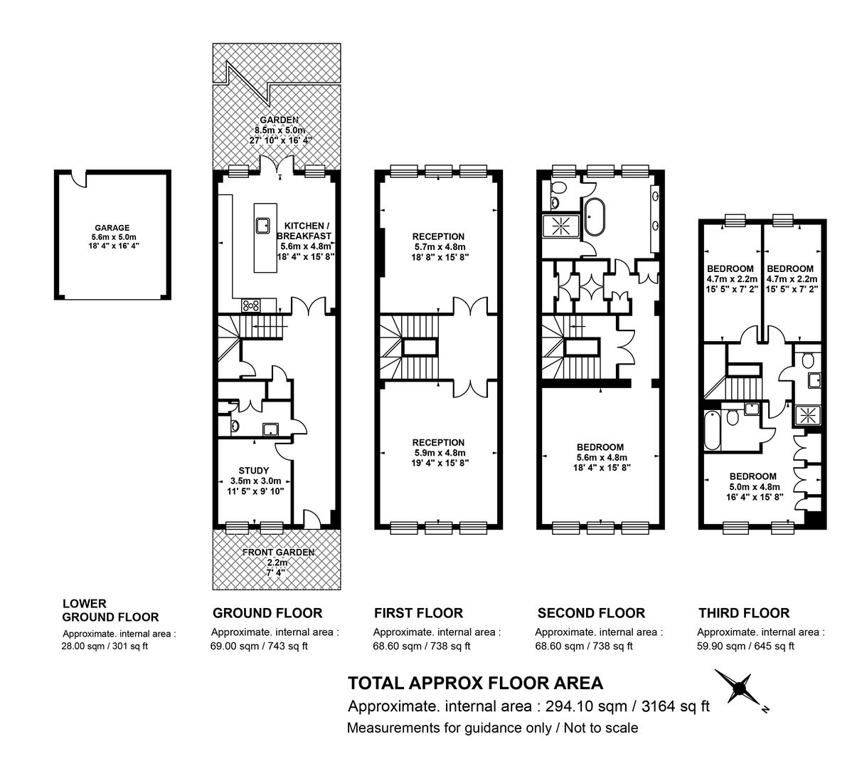
Designed strictly in accordance with conservation guidelines and rigorously overseen by English Heritage, this beautiful house sits well in one of the finest Georgian streets in Britain. Enjoying the tree-lined elegance of the Camberwell Grove Conservation area, the property combines the splendour of Georgian architecture with a host of top-notch contemporary fixtures and fittings throughout. Elegantly presented over four lavish floors, it is in perfect harmony with its beautiful surroundings. The living space is equally divided over two floors with a kitchen/diner, study/bedroom and two enormous reception rooms comprising a formal drawing room and TV room. The two upper floors provide four generously sized bedrooms including a remarkable master suite. The house has fully integrated speakers, recessed LED downlights, Forbes & Lomax toggle switches and white painted solid wood panelled doors with Turnstyle Designs handles throughout. The property is now equipped with air conditioning throughout the house, providing comfort in every room, with the exception of the top floor. However, the necessary cables and pipes have already been installed, allowing the new owner the option to easily add air conditioning to that level if desired.
Car parking is provided in the basement double garage with electric shutter and Banham installed alarm (in addition to the house). Camberwell Grove offers a leafy and tranquil conservation environment while being close to the City. London stock brick work, high black railings and first floor Juliet balconies confirm the authentic period feel of the home.
As you approach the front door (painted light grey and finished off with a chrome knocker set and Banham locks) you enter underneath a fantastic arched fanlight. Inside you are greeted with a luxuriously wide hallway with tiled floor, Farrow & Ball grey walls, integrated wall lighting from RUBN of Sweden and a cast-iron radiator. The study/fifth bedroom is the first room you have access to with oak flooring, cast iron radiator and two large front aspect, arched double glazed sash windows. Arched white plantation shutters afford privacy.
The guest WC sits next door with marble and wooden detail and a recessed laundry cupboard containing the washing machine, tumble dryer and Megaflo hot water tank. The hall widens after the WC to allow for the stately and solid oak staircase. Further storage space is available with a broom cupboard and separately underneath the stairs providing a coat/shoe cupboard. Beyond this is the kitchen/diner with French windows and doors leading to the garden and cast iron radiator. The counters and splashbacks are sleek light coloured marble effect Ceaserstone that sit on spectacular dark wood or gloss lacquered cabinets. Kitted out with a Gaggenau five ring gas hob, extra wide oven, American style fridge/freezer with full height glass fronted dual zone wine fridge, Siemens integrated coffee maker and microwave/oven a well as a Miele dishwasher. The island sits proud in the centre of the kitchen with a large stainless steel sink and waste disposal unit and can seat five stools with pendant lighting again from RUBN of Sweden. Amongst all this there is still space to accommodate a table and eight chairs for formal dining. The southwest facing stone flagged walled garden with wisteria, olive, box and hydrangea plantings is fully irrigated. Seating areas provide for summer relaxation and al fresco dining.
Moving up to the first floor you are welcomed by a large square landing with double doors on either side that lead to the two reception rooms - both three windows-wide! On the right is the TV room with that fabulous oak flooring and Mulberry wallpaper and media unit. Further into the room there are those incredible sash windows connected with black wrought iron Juliet balconies, perfect for topiary. At the rear of the property lies the drawing room - presenting you with a further trio of sash windows, a coal effect fireplace, Mulberry wallpaper and views over the garden.
Another trip upwards and you reach a most impressive master suite. It covers the entire second floor and will definitely please! The expansive space gives you a generously sized front-facing bedroom with a trio of sash windows. A walk-in dressing area and wardrobes and an incredible en-suite bathroom with double walk-in shower complete the floor. Also included is a contemporary stand-alone bath, WC and bidet in a separate cubicle and twin hand basins set in marble. Walls are flanked with heated marble surfaces and floor.
Moving to the final floor of this grand property, you are met by three further spacious bedrooms. To your right is the master guest suite with fitted wardrobes and an attractive en-suite bathroom with marble fittings and a heated floor. Back out to the landing you have a great space giving you access to a shower room with WC also with marble fittings and a heated floor. The other two double bedrooms have great rear aspect sash windows that look over the garden area. Car parking could not be easier! Steps from the front door lead down to your secure basement double garage together with understairs storage and boiler room.
Transport options are excellent; Denmark Hill station (Zone 2) for fast, regular services to Victoria, Blackfriars and London Bridge is a 7 minute walk. Equally the London Overground line serves Denmark Hill. Clapham High Street, Clapham Junction, Islington, Shoreditch and Canary Wharf (via Canada Water). There are also a multitude of buses running close by on Camberwell Church Street into the City and the West End. Alleyn's, JAGS, Dulwich Prep and Dulwich College independent schools are a short drive away and the very excellent Lyndhurst Primary is but a moment's stroll. Eating out? Forza Win, the Kerfield Arms, Camberwell Arms and many other restaurants offer an immediate range of culinary choice within walking distance. Recently opened other establishments include Gladwells delicatessen and Vivraison wine bar. The recently renovated Victorian Camberwell Baths is stunning with a 25m pool and fully equipped gym while local parks include Ruskin Park and Myatt's Field both excellent for kids but not forgetting the Butterfly Tennis club which is literally on the doorstep behind the property offering 2 all weather courts.
Tenure: Leasehold House (983 years)
Council Tax Band: G

Agent Statistics (Based on 168 Reviews) :