The UK's Largest Customer Review Website for the Property Industry
The UK's Largest Customer Review Website for the Property Industry
Back to Property Listings
Camberwell Grove, Camberwell, SE5
GUIDE PRICE £700,000 to £750,000.
Superb Grade II Listed Regency Two Bedder with Private Patio and Garden.
Nestled on the lower ground floor of one of the most glorious houses on Camberwell Grove, this two bedroom Grade II listed beauty is sure to impress with some seriously attractive period detailing. The property is set back from the main road in a leafy Regency crescent and forms part of a stately row of white terraced houses. A sizeable private paved patio and generous private garden continue the charm offensive - both have tonnes of potential. The property also comes with off-street parking - available on a first come first served basis! To sweeten the deal yet further, you'll receive a key to the much loved Lettsom Gardens - a sprawling and treasured nature garden just one minute from your front door
The location leaves as much to rave about. You're a beautiful 10 minute walk down Grove Park to the super hip scene/epicentre of Bellenden Road. Camberwell Grove offers some of the finest Georgian, Regency, Victorian and Edwardian homes in our fair city. Tree lined and keenly placed for every convenient amenity, you'll find yourself rarely roaming far from home. When you do, Denmark Hill station is just a five minute amble for swift services to the city and beyond. East Dulwich station is just a touch further and supplies yet more regular central connections. Peckham, Brixton and Dulwich are all within easy reach. Even closer on foot are the endless delights of Lordship Lane. The Dulwich Foundation schools are a safe and pleasant morning stroll through Greendales and The Camberwell Art College is also easily walkable. There are plenty of shops nearby including a host of independent food shops on Camberwell Church Street and Camberwell Green, plus a new, modern library and playground.
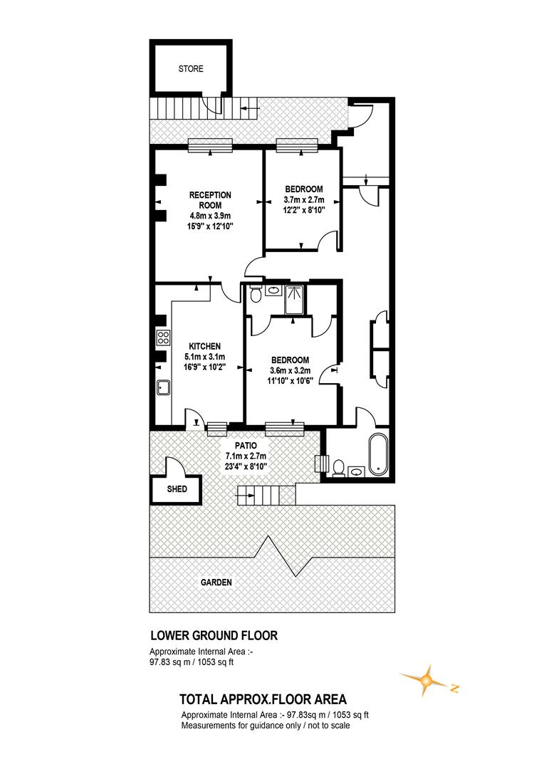
The building sits alongside similarly beautiful Regency dwellings. A set of steps lead downward to the flat's lower ground front patio. Before heading inside you can stash the bike in a coal bunker turned storage area - very handy. Open the door to be greeted by the entrance hall. Natural stone flooring and antique lighting set the theme for the property. We love the door leading to the main hall, it's lead panelled with art nouveau glass - beautiful. Onwards to the main hallway, decked with natural walnut flooring and atmospheric low voltage spotlighting. Need space to bung all your clutter? There's a deep recessed storage cupboard for this and that.
Turn right at the end of the main hall to reach the master bedroom. A beautiful sash window provides plenty of natural light and a pleasant view onto the patio. The shutters on the window are custom-made from antique Victorian doors, a really smart touch. A reconditioned column radiator sits under the window, perfectly matching the style of the room. Storage needs are taken care of with a large cupboard, housing shelving, a clothes rail and shoe rack. To cap it all off there's an en suite shower, wc and hand basin. Exit the bedroom and turn right into the bathroom. It's a fantastic example of period design and packed with beautiful reclaimed pieces that fit sympathetically in the space. Original floor boards, wood panelling, salvaged Victorian wc with cistern, art deco sink and taps (circa 1925), vintage cast iron bath with brass claw feet, wall integrated Lefroy Brooks taps are all wonderful, well thought out touches. Light is supplied by a box window looking out onto the patio.
Back up the hall, turn left and into the second bedroom which has more lovely Victorian shutters and ample room for a double bed. A lovely column radiator features again. Exit and turn right into the reception. Natural walnut flooring makes an appearance again but the feature we love the most is the cast iron Morso wood burning stove that sits perfectly in an original exposed brick Georgian fireplace. It'll make a cosy scene come winter. There's also another sash window looking out to the front and an integrated custom bookcase to house all those winter reads. The reception leads into the kitchen, another master class in period design. There's room for a large dining room table which will accommodate the plethora of wonderful cuisine produced from the five ring gas hob and range cooker with double oven. To left is a butler sink. The counters are particularly nice, made from Iroko wood reclaimed from a school lab! Continuing the reclaimed theme are the industrial pendant lights sourced from a Czech factory - no detail has been over looked. An integrated dishwasher and fridge freezer finish the room. The rear patio is accessed from here and supplies some wonderful al-fresco dining opportunities. Steps lead upward to your private section of the leafy, mature and noticeably peaceful rear garden.
The transport options are excellent; Denmark Hill station (Zone 2) for fast, regular services to Victoria and Blackfriars is a five minute walk away. The highly rated London Overground line has completed its outer orbital route around London and also serves Denmark Hill. Clapham High Street, Clapham Junction, Islington, Shoreditch and Canary Wharf (via Canada Water) are now all easy as pie to reach. There are also a multitude of buses running on either Grove Lane (two minutes away) or Camberwell Church Street (a seven minute walk) into the City and the West End. Local eateries will keep you perpetually calorie counting - we love The Camberwell Arms, a winner of the Observer Food Monthly's Best Sunday Lunch award, five minutes down the Grove. The shops and foodie hotspots of Peckham and East Dulwich are also in walking distance. Keeping fit? Camberwell Baths is stunning and within an easy canter. Ruskin Park is a short hop and you have the Butterfly Tennis Club on your doorstep.
Tenure: Leasehold
Lease Length: 170 years remaining
Council Tax Band: C

Agent Statistics (Based on 168 Reviews) :