The UK's Largest Customer Review Website for the Property Industry
The UK's Largest Customer Review Website for the Property Industry
Back to Property Listings
Caldecott Road, Great Easton, Market Harborough
Redwing House is a substantial and energy-efficient five-bedroom family home, offering well-proportioned living accommodation on an exceptionally generous plot. The property boasts ample off-road parking, garaging, and a south-east facing wrap-around garden with countryside views in the sought-after village of Great Easton.
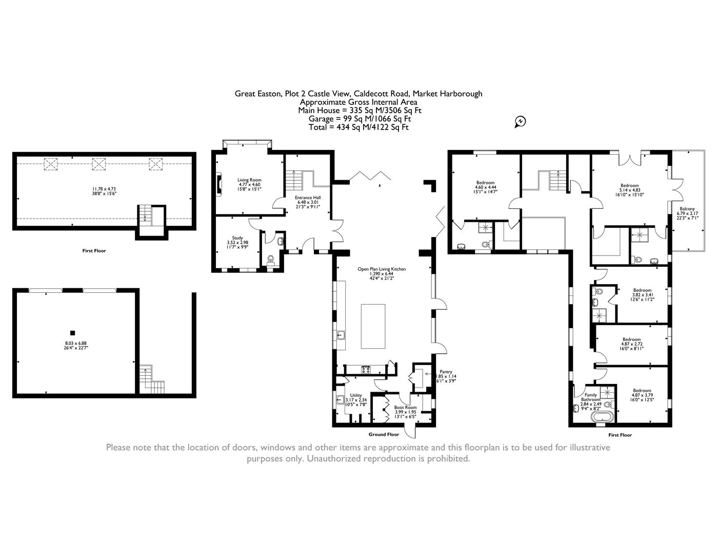
Ground Floor - This exceptional home offers a thoughtfully designed layout, blending high-quality finishes with spacious, light-filled interiors. The accommodation briefly comprises a striking open-plan living kitchen, a formal reception room, a study, utility, boot room, downstairs cloakroom, five double bedrooms, and four luxurious, fully tiled Porcelanosa bath/shower rooms. The downstairs has tiled flooring throughout with oak floorboards and carpets to the first floor - all benefiting from underfloor heating.
An impressive double-height oak-framed archway forms the entrance to the property, featuring full-height glazing and a solid oak front door, which opens into a bright and welcoming entrance hall. Part-glazed double doors lead through to the fantastic open-plan living kitchen-a stunning 42 ft. space with four sets of bi-fold doors that create seamless indoor-outdoor flow, perfect for entertaining and everyday family living
The handmade Shaker-style kitchen features a comprehensive range of bespoke cabinetry, premium NEFF integrated appliances to include an induction hob Range cooker, stone worktops, a Quooker boiling water tap, and a large central island with breakfast bar. To the rear of the kitchen, you'll find a fully fitted walk-in pantry, a utility room with additional storage and appliance space, and a generous boot room with side access.
On the opposite side of the entrance hall, the main reception room is well-proportioned, enhanced by a large bay window that floods the room with natural light and a beautiful stone fireplace with an inset log burner, creating a cosy focal point. The ground floor is completed by a practical study and a downstairs cloakroom, both accessed from the hallway.
First Floor - Upstairs, a bespoke handmade oak staircase leads to the galleried landing, which enjoys further countryside views through full-height rear glazing. The principal bedroom suite is a true retreat, positioned to the rear of the property and featuring an arched, A-frame glazed opening with access to a private balcony, plus an additional Juliet balcony. This room benefits from a fully fitted walk-in wardrobe and a luxurious en-suite bathroom with a large walk-in shower, wash basin, low flush WC, and a heated towel rail. There are four further double bedrooms. One generous room opposite the principal suite also enjoys a fitted walk-in wardrobe and an en-suite shower room. Another bedroom benefits from its own en-suite, while the remaining two are served by a beautifully appointed family bathroom featuring a freestanding bathtub, walk-in shower, wash basin, low flush WC, and heated towel rail. Both the principal and guest bedrooms benefit from built-in air conditioning.
Outside - The property occupies a generous plot, accessed via an electric gate that open onto a combination block-paved and gravel driveway, offering ample off-road parking and access to both the double garage and carport. The garage features electric doors, with a staircase rising from the carport to a spacious room above that could be utilised in a variety of ways and features a kitchen, shower room and living space. A paved pathway bordered by a neatly manicured lawn and planting beds leads to the front door, then continues along the side of the property to the rear garden. The rear garden is primarily laid to lawn and enclosed by secure fencing, ensuring both privacy and safety. A part-covered patio area adjacent to the main living spaces provides a perfect setting for year-round indoor/outdoor entertaining. Additional features include an outdoor tap and two external power sockets, enhancing practicality for garden use or al fresco living.
Energy Efficiency & Smart Technology - Redwing House has been built and finished to an incredibly high specification and has been future proofed with Baulogic smart home technology throughout, controlling the heating, lighting, blinds, curtains and the electric gates. There are solar PV panels with battery storage, an air source heat pump, and a Mechanical Ventilation Heat Recovery system.
All of the above combined with a heavily insulated dwelling create a very inexpensive and green house to own and run. It is unusual to find a developer who is prepared to put this amount of technology and expense into a property however Kaybee Developments pride themselves on being a forward thinking green company with sustainability at the heart of their ethos. They want to create classical modern houses that are not only relevant in today's market but for many years to come.
Mechanical Ventilation With Heat Recovery - MVHR (Mechanical Ventilation with Heat Recovery) provides fresh filtered air into a building whilst retaining most of the energy that has already been used in heating the building. Heat Recovery Ventilation is the solution to the ventilation needs of energy efficient buildings.
Mechanical Ventilation with Heat Recovery (MVHR) is a whole house ventilation system that both supplies and extracts air throughout a property. This is increasingly used to reduce the heating and cooling demands of buildings.
A heat recovery ventilation system works by extracting moist and stale air from wet rooms in your home, it recovers the usually lost heat from the extracted air. It also supplies clean, filtered fresh air that is heated from the recovered warmth of the extracted heat. As an added bonus, this system can make your home more energy efficient when installed correctly.
Solar Pv And Battery Storage - Solar PV systems are popular with homeowners seeking to reduce their energy bills and their impact on the environment. But when considering solar panels, a common challenge is that solar arrays only generate electricity when the sun is shining and homes often have a significant evening usage. If this is the case, solar battery storage offers an ideal solution allowing homeowners to fully harness that clean, green energy day and night.
Solar battery storage works by capturing any excess electricity generated by solar panels during daylight hours and holding it in reserve for use at a later time. This stored energy can then be tapped into after dark to keep the lights on or during cloudy spells to avoid drawing from the grid. With the combination of solar panels and battery banks, you can use more of the power you generate and it's often more cost effective than exporting your energy to the grid.
Location - Great Easton is one of the most attractive Welland Valley villages in highly accessible and yet unspoilt countryside. The village benefits from a public house, shop/post office, active village hall and a parish church. The nearby market towns of Uppingham and Market Harborough provide a good array of everyday shopping facilities and amenities, with the latter providing a good rail link to London St Pancras in under an hour. There are excellent primary and secondary schools with independent schools in the area at Oakham, Stamford and Uppingham.
Services & Council Tax - The property is offered to the market with all mains services an air source heat pump, solar PV panels, a Mechanical Ventilation Heat Recovery System, CCTV and an alarm.
Tenure - Freehold

This property is marketed by

James Sellicks Estate Agents - London office, London, SW1A
5/5 Rating
(281) reviews
Agent Statistics (Based on 281 Reviews) :