The UK's Largest Customer Review Website for the Property Industry
The UK's Largest Customer Review Website for the Property Industry
Back to Property Listings
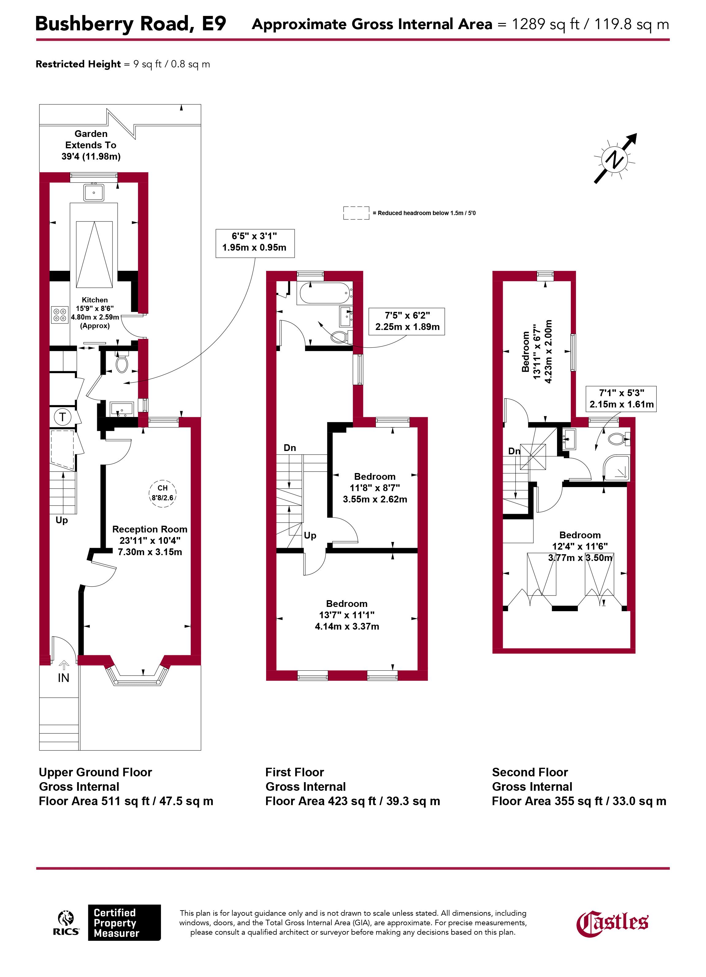
Bushberry Road, E9
Castles Hackney are pleased to offer this exquisitely refurbished turnkey four-bedroom, two-bathroom Victorian terrace with a private garden, ideally located just moments from Victoria Park. This beautifully reimagined Victorian home is set on a peaceful residential street a short walk from Victoria Park. Thoughtfully extended and fully renovated, the property spans three spacious floors and offers a perfect blend of period charm and modern design. Offered to the market chain-free and finished to an impeccable standard, this is a truly turnkey opportunity for discerning buyers. On the ground floor, a bright and welcoming hallway leads into a stunning full-length double reception room, where elegant parquet flooring and bespoke joinery create a warm and refined atmosphere. Light floods in through the south-facing bay window, while Crittall-style internal doors at the rear open onto a dining area and reconnect with the hallway. Discreet under-stair storage and a stylish guest WC complete the space. To the rear, the kitchen is a true highlight fitted with timeless Shaker-style cabinets in sage green, stone worktops, and a suite of integrated Bosch appliances. A large skylight and floor-to-ceiling glazing fill the space with natural light and provide calming views over the landscaped rear garden. Upstairs, a half-landing offers an ideal study nook or reading corner. All four bedrooms are generously sized doubles, with the principal bedroom occupying the entire top floor. This peaceful retreat is illuminated by Velux windows and benefits from generous eaves storage. The two bathrooms are finished to a high standard one featuring a walk-in rainfall shower, the other a full suite including a vanity unit, anti-fog mirror, and heated towel rail. The private rear garden has been carefully landscaped for low maintenance living and offers a tranquil space for outdoor dining or relaxation.The property enjoys excellent transport connections. Homerton Overground Station is less than a 10-minute walk away, providing direct links to Highbury & Islington, Stratford, and Shoreditch. Hackney Central and Hackney Wick stations are also nearby, with connections to the Overground, the Elizabeth Line, and London Underground services via Stratford. A range of local bus routes and dedicated cycle lanes make travel across East and Central London both convenient and efficient.Families will appreciate the wide selection of well-regarded local schools, including Rushmore Primary School and Mossbourne Riverside Academy. The area also offers a range of nurseries and secondary schools known for their strong academic standards and supportive community environments. Situated near the green open spaces of Victoria Park and Hackney Marshes, and just moments from the cafés, independent shops, and vibrant Sunday market on Chatsworth Road, this beautifully finished, turnkey home presents a rare opportunity to settle into one of East London's most desirable neighbourhoods without compromise.

This property is marketed by

Castles Estate Agents (London) - Hackney, London, E5
5/5 Rating
(939) reviews
Agent Statistics (Based on 939 Reviews) :