The UK's Largest Customer Review Website for the Property Industry
The UK's Largest Customer Review Website for the Property Industry
Back to Property Listings
Burch Mews, Haddenham
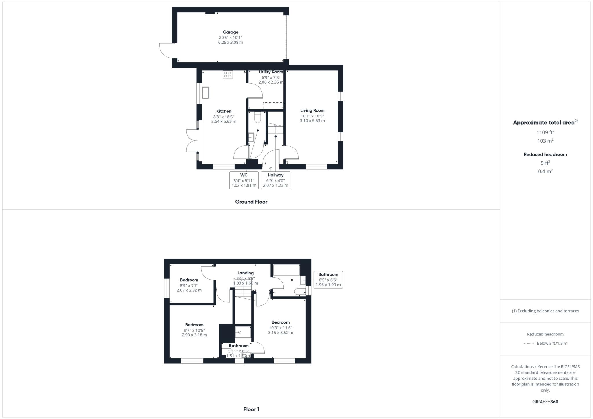
Harpers is pleased to present this fantastic three-bedroom detached home, located in a sought-after development in the picturesque village of Haddenham. Designed for modern living, this property offers a perfect blend of space, style, and convenience.
Upon entering, you are welcomed into a hallway leading to a handy downstairs WC. The bright dual-aspect reception room provides a comfortable setting for both relaxing and entertaining. The open-plan kitchen and dining area is well-designed, featuring sleek cabinetry and patio doors that open onto the rear garden. A separate utility room offers additional storage and garden access.
Upstairs, the property boasts three well-proportioned bedrooms, each offering comfort and versatility. The primary bedroom is a standout feature, complete with a stylish en-suite shower room and ample space for storage. The second bedroom is a generous double, perfect for guests or family members, while the third bedroom is bright and airy, making it an ideal child`s room, home office, or creative space. A modern family bathroom serves the additional bedrooms, ensuring convenience for all.
Externally, the property benefits from an enclosed rear garden, a well-maintained front garden, and a garage with driveway parking to the front.
Flood Risk- Gov.uk
Rivers & Seas- Very Low
Surface Water-Very Low
Broadband Speeds- Ofcom
The table shows the predicted broadband services in your area.
Broadband type Highest available download speed Highest available upload speed Availability
Standard 13 Mbps 1 Mbps Good
Superfast 49 Mbps 8 Mbps Good
Ultrafast 1800 Mbps 220 Mbps Good
Networks in your area - Openreach
Notice
Please note we have not tested any apparatus, fixtures, fittings, or services. Interested parties must undertake their own investigation into the working order of these items. All measurements are approximate and photographs provided for guidance only.
Council Tax
Buckinghamshire Council, Band E
Utilities
Electric: Mains Supply
Gas: Mains Supply
Water: Mains Supply
Sewerage: Mains Supply
Broadband: Cable
Telephone: Unknown
Other Items
Heating: Gas Central Heating
Garden/Outside Space: No
Parking: No
Garage: Yes

Agent Statistics (Based on 1 Reviews) :