The UK's Largest Customer Review Website for the Property Industry
The UK's Largest Customer Review Website for the Property Industry
Back to Property Listings
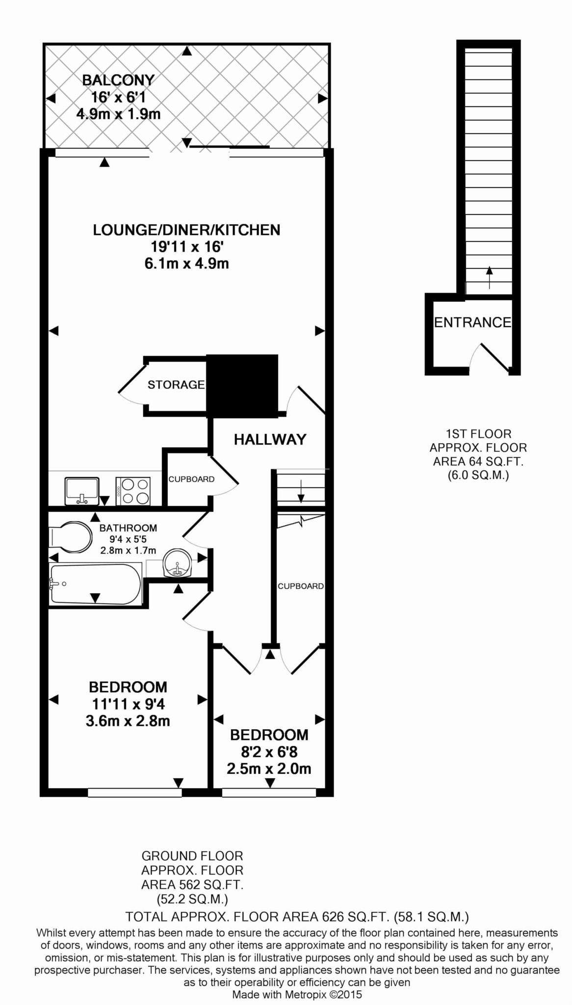
Budenberg Haus, 34 Woodfield Road, Altrincham
Located in a historic market town in Cheshire, the nautical shape of Budenberg Haus Projekte brings prefabricated living to Altrincham. Set within idyllic communal grounds and home to a few members of Manchester`s famous Cow Exhibition, the development is ideal for residents requiring a quirky design concept within a tranquil waterside environment.
The development benefits from a secure communal entrance with lift service to all floors.
Comprises: Entrance/hallway with staircase down to an open plan living/dining area with access to balcony, fully integrated modern kitchen with storage cupboard, double master bedroom with under stair storage, further single bedroom and luxury bathroom.
Available 24/11/2025 on a fully furnished basis with parking space
To arrange a viewing please contact Goodwin Fish - Deansgate
Notice
All photographs are provided for guidance only.
Redress scheme provided by: The Property Ombudsman (07302)
Client Money Protection provided by: Client Money Protect (CMP) (CMP003154)
Council Tax
Trafford Council, Band D
Utilities
Electric: Mains Supply
Gas: None
Water: Mains Supply
Sewerage: None
Broadband: None
Telephone: None
Other Items
Heating: Electric Heaters
Garden/Outside Space: Yes
Parking: Yes
Garage: No

Agent Statistics (Based on 23 Reviews) :