The UK's Largest Customer Review Website for the Property Industry
The UK's Largest Customer Review Website for the Property Industry
Back to Property Listings
Buckleigh Road, Westward Ho!
Dating back to 1880, Kentu is an imposing and attractive semi-detached period home, superbly located on the sought-after Buckleigh Road in Westward Ho! Just a 10-minute walk from the village centre and the beach, this elegant home combines timeless charm with generous, well-presented accommodation.
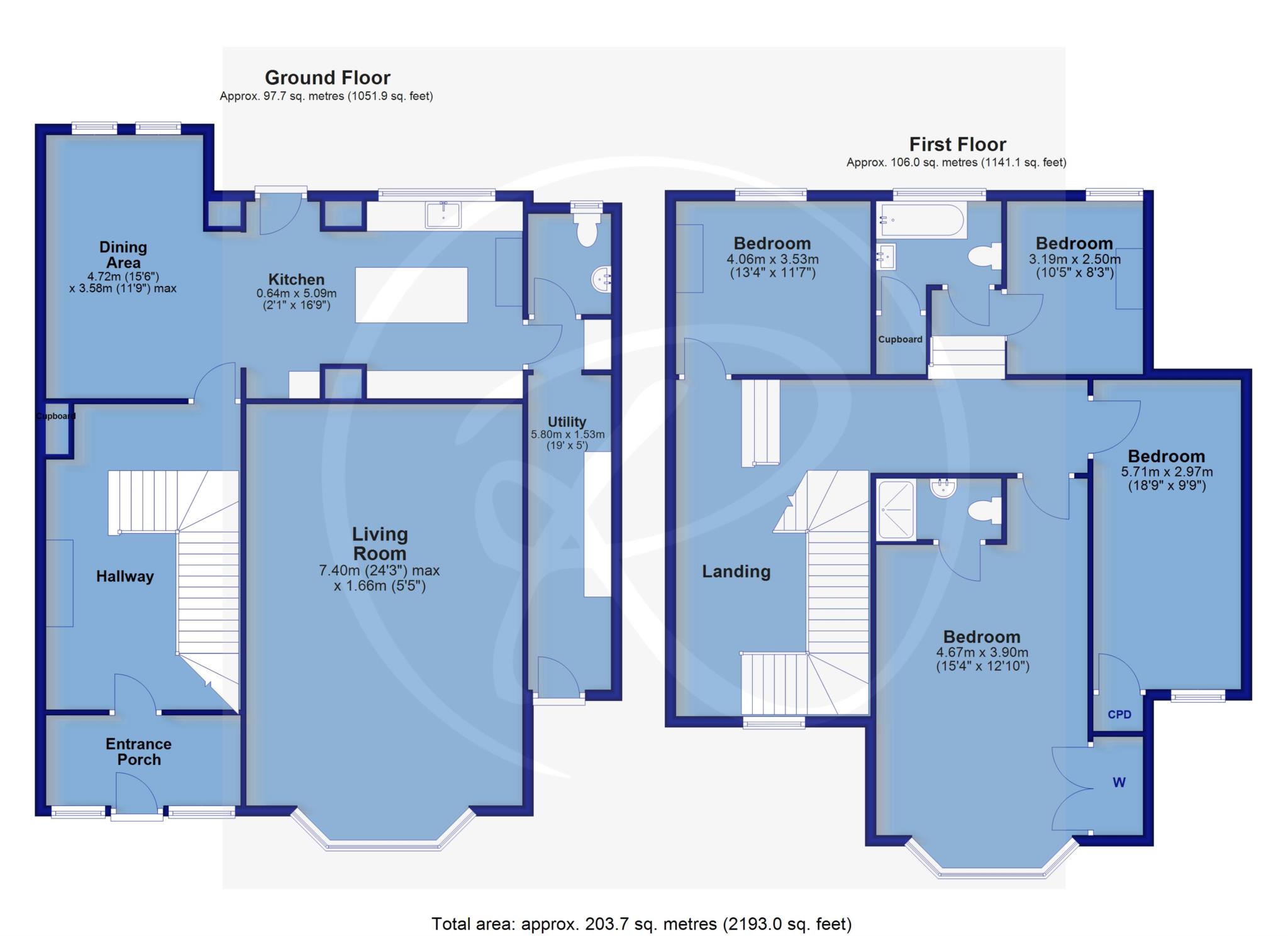
From the moment you step inside, the character of the property is immediately evident. The welcoming entrance hallway, featuring original tiled flooring and a grand feature fireplace, sets a stunning tone for the rest of the house. The beautifully appointed lounge sits at the front of the property, bathed in natural light through a large bay window. A striking fireplace with a wood-burning stove adds a warm and cosy focal point to this impressive space.
To the rear of the ground floor, the open-plan kitchen and dining room create a sociable heart of the home. The kitchen is both functional and thoughtfully designed, with ample worktop space comprising of marble-effect surfaces with plenty of cupboard space, a centre island providing a breakfast bar area and a Butler sink overlooking the rear elevation. A Range cooker is cleverly set into the fireplace surround, while the adjoining dining area offers generous space for entertaining, complete with full-height built-in cupboards for both storage and display. A separate utility room and a convenient ground-floor cloakroom complete this level.
A fantastic staircase with ornate handrail and return balustrade leads to a spacious first-floor landing, continuing the home`s beautiful period detailing. Here you`ll find four well-proportioned double bedrooms and a stylish family bathroom. The principal bedroom is particularly impressive, featuring another bay window to the front elevation, generous space, and a private en-suite shower room.
Outside, the brick-paved driveway offers off-road parking for two to three vehicles. To the rear, the enclosed garden is mainly laid to lawn, interspersed with a variety of inviting seating areas ideal for family life or outdoor entertaining.
This exceptional period home is brought to market by the sole selling agents, who highly recommend early internal viewing to avoid disappointment.
what3words /// acute.statue.slim
Notice
Please note we have not tested any apparatus, fixtures, fittings, or services. Interested parties must undertake their own investigation into the working order of these items. All measurements are approximate and photographs provided for guidance only.
Council Tax
Torridge District Council, Band D
Utilities
Electric: Mains Supply
Gas: Mains Supply
Water: Mains Supply
Sewerage: Mains Supply
Broadband: FTTC
Telephone: None
Other Items
Heating: Gas Central Heating
Garden/Outside Space: Yes
Parking: Yes
Garage: No

Agent Statistics (Based on 0 Reviews) :