The UK's Largest Customer Review Website for the Property Industry
The UK's Largest Customer Review Website for the Property Industry
Back to Property Listings
Buckland Road,
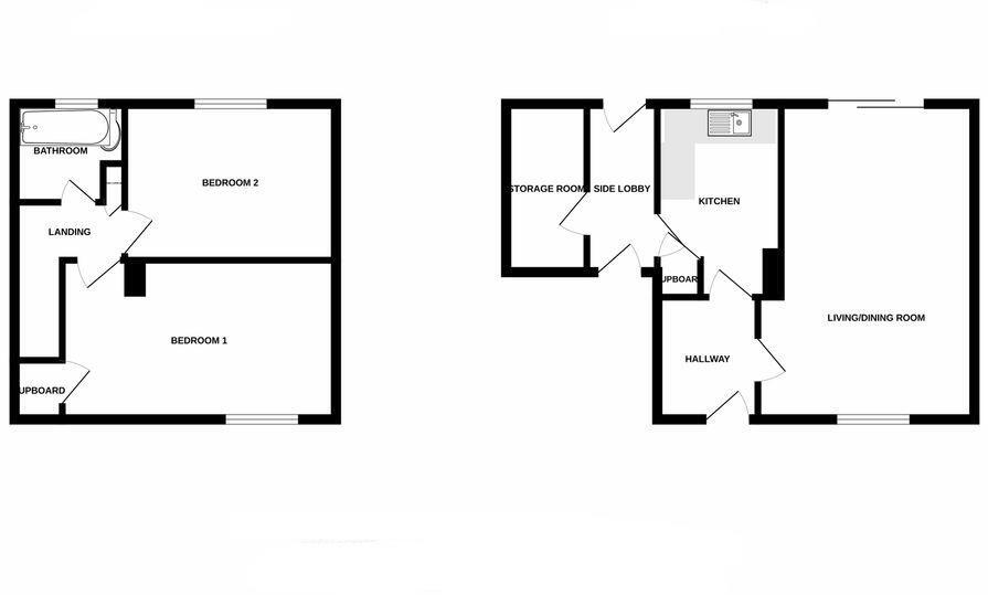
Accommodation
Front door opening to:-
Entrance Hall
With stairs to the first floor accommodation, ceiling light and door to:-
Sitting/Dining Room
c.18`4 x 12`8 > 11`2 (5.88m x 3.86m > 3.40m)
With a double glazed window to the front aspect, double glazed patio doors to the rear garden, laminar floor, 2 radiators, ceiling light.
Kitchen
c.11` x 7`4 (3.35m x 2.23m)
With a double glazed window to the rear aspect, fitted units comprising floor standing storage cupboards and drawers, with working surfaces incorporating a single bowl single drainer stainless steel sink unit with mixer tap, space and point for electric cooker, space and plumbing for both washing machine and dishwasher, radiator, ceiling light, door to:-
Side Lobby
With doors to both front and rear aspects and door to a storage room.
Landing
With ceiling light, doors to:-
Bedroom 1
c.15`11 x 9`1 (4.85m x 2.76m)
With a double glazed window to the front elevation, radiator, ceiling light.
Bedroom 2
c.12` x 8`11 (3.65m x 2.71m)
With a double glazed window to the rear elevation, radiator, ceiling light.
Family Bathroom
With a double glazed window to the rear elevation, a suite comprising of a bath with mixer tap and shower handset, pedestal wash hand basin, low-level WC, tiling to splash prone areas, radiator, ceiling light.
Outside
To the front of the property there is an enclosed garden laid to lawn with pathway to the front door, the rear garden is fully enclosed and offers a generously proportioned lawn and gravel seating area.
Construction :- :- Concrete with brick elevation under a tiled roof
Council Tax band :- B
Primary School Catchment :- Lyngford Park Primary
Secondary School Catchment :- Taunton Academy
Directions
Head out of Taunton along Priorswood Road, at the roundabout turn left into Eastwick Road, Buckland Road will be found on the right hand side.
Notice
Please note we have not tested any apparatus, fixtures, fittings, or services. Interested parties must undertake their own investigation into the working order of these items. All measurements are approximate and photographs provided for guidance only.
Utilities
Electric: Mains Supply
Gas: None
Water: Mains Supply
Sewerage: None
Broadband: None
Telephone: None
Other Items
Heating: Not Specified
Garden/Outside Space: Yes
Parking: No
Garage: No

Agent Statistics (Based on 0 Reviews) :