The UK's Largest Customer Review Website for the Property Industry
The UK's Largest Customer Review Website for the Property Industry
Back to Property Listings
Brownshill Green Road, Coundon, Coventry
AN IMMACULATE EXTENDED FAMILY HOME IN THE SOUGHT AFTER LOCATION OF COUNDON WITHIN COUNDON COURT SCHOOL CATCHEMENT AREA.
This beautiful three bedroom mid terrace property is conveniently located to local shops, transport links & schools such as Coundon Court, Kingsbury Academy, Bablake School, Coundon Primary School & Hollyfast Primary. With great access links to the A45 (Birmingham) & A4114 (Coventry City Centre)
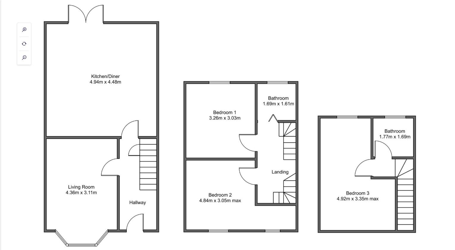
The ground floor offers an entrance hallway with doors leading off to a spacious 14ft Lounge, an open plan kitchen diner with a feature island, Quartz worktops, French doors, integrated appliances to include a dishwasher, a microwave, a fridge/freezer, wine cooler and a washing machine. Running off this delightful kitchen is a lovely open plan dining area.
On the first floor you will find a family bathroom and two double bedrooms. Venturing up to the second floor you will find a further double bedroom with access to a en-suite shower room.
Outside to the front of the property is a walled lawned garden and to the rear there is a fully enclosed low maintenance garden with access to a useful garage.
Ground Floor -
Entrance Hallway - 3.28m x 1.73m (10'9 x 5'8) -
Living Room - 4.32m x 3.05m (14'2 x 10'0) -
Kitchen/Diner - 4.45m x 4.95m (14'7 x 16'3) -
First Floor -
Bedroom - 3.25m x 3.15m (10'8 x 10'4) -
Bedroom - 3.91m x 4.90m (at the longest point) (12'10 x 16'1 -
Bathroom - 1.55m x 1.68m (5'1 x 5'6) -
Second Floor -
Bedroom - 4.93m x 3.30m (16'2 x 10'10) -
Bathroom - 1.70m x 1.78m (5'7 x 5'10) -

This property is marketed by

Shortland Horne Estate Agents - Warwick Row Coventry, Coventry, CV1
4.8/5 Rating
(248) reviews
Agent Statistics (Based on 248 Reviews) :