The UK's Largest Customer Review Website for the Property Industry
The UK's Largest Customer Review Website for the Property Industry
Back to Property Listings
Brooklyn Park, Exmouth
Situated on the FirstFloor of this purpose built block of flats is this well presented, 2 double bedroom apartment that is within walking distance of local schools, bus service and Withycombe Village amenities. The spacious accommodation benefits from double glazing and electric heating and comprises in brief an entrance hall, lounge/dining room, kitchen/breakfast room, 2 double bedrooms and a modern shower room/WC. Externally there are communal gardens and residents parking.
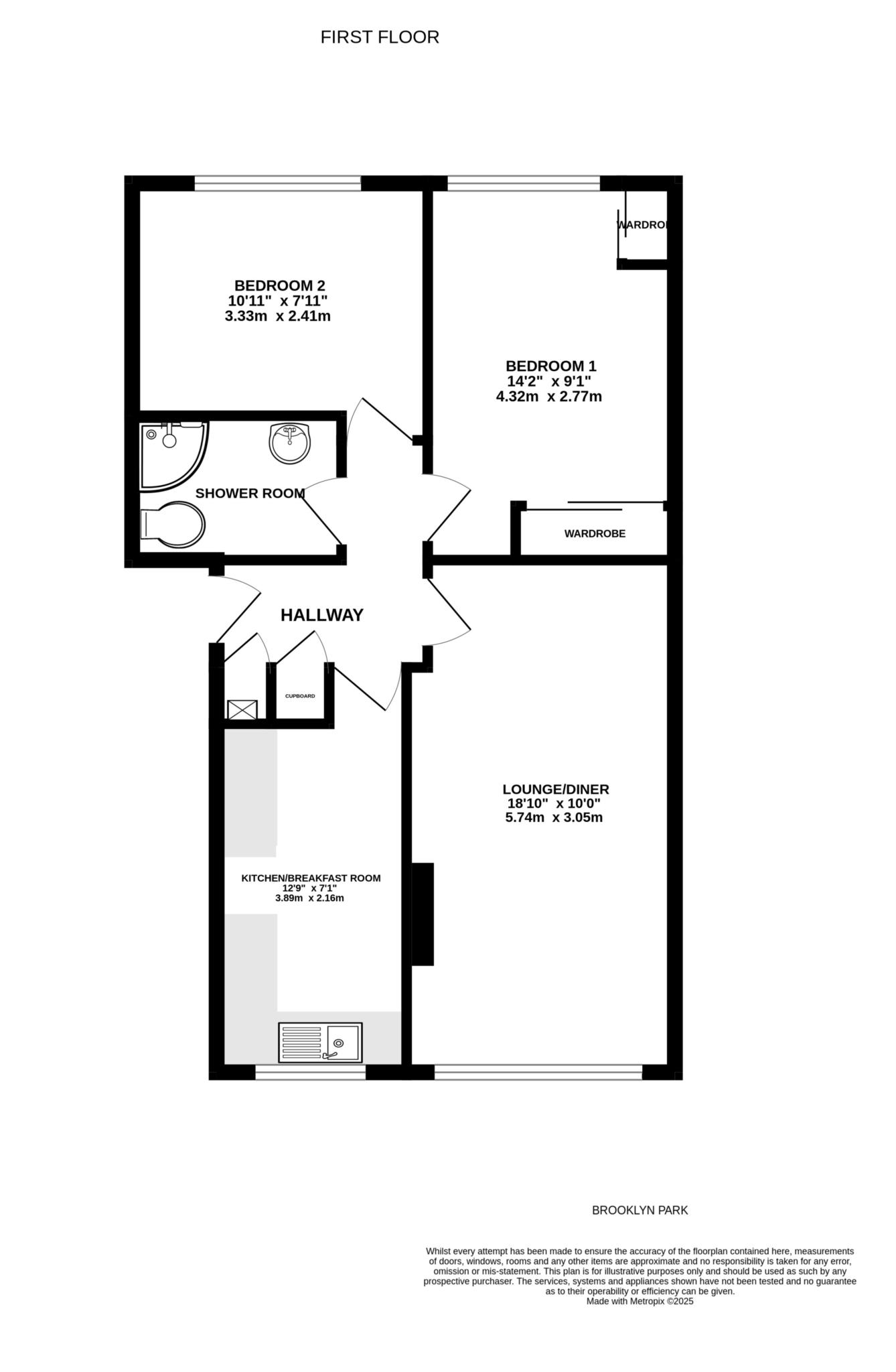
Accommodation
Ground Floor
Communal entrance door to communal hallway and stairs to the first floor.
First Floor
Private entrance door to:
Entrance Hall
Built-in storage cupboard. Built-in airing cupboard housing the electric water heater. Electric storage heater. Telephone point. Doors to:
Lounge/Dining Room - 18'10" (5.74m) x 10'0" (3.05m)
Double glazed window to the front overlooking the communal gardens. Wall-mounted electric log effect fire.
Kitchen/Breakfast Room - 12'9" (3.89m) Plus Recess x 7'1" (2.16m)
Double glazed window to the front overlooking the communal grounds. Range of base cupboard and drawer units. Wall-mounted units. Roll edge work top surfaces. Tiled splash back. Single drainer sink unit. Space for cooker with electric cooker point. Plumbing for washing machine. Plumbing for dishwasher. Space for fridge/freezer.
Bedroom 1 - 14'2" (4.32m) x 9'1" (2.77m)
Double glazed window to the rear. 2 built-in wardrobes with sliding doors.
Bedroom 2 - 10'11" (3.33m) x 7'11" (2.41m)
Double glazed window to the rear. Electric storage heater. Telephone point.
Shower Room/WC
Modern suite comprising a quadrant shower cubicle with Triton electric shower. Pedestal wash hand basin. Close-coupled WC. Tiled walls. Heated towel rail. Extractor fan.
Externally
The property is surrounded by good sized and predominantly level communal gardens, which are laid mainly to lawn with shrub and herbaceous beds and borders that provide year round interest and colour. To one corner of the grounds is an area designated for washing lines. To the front of the development there is ample residents parking on a first come first served basis.
Tenure
The property is LEASEHOLD and we understand the current lease expires in July 2114. The freeholder is East Devon District Council. We believe the annual Service Charge of c. ?300. We further understand this figure includes Ground Rent and Buildings Insurance.
Services
Mains Water, Drainage & Electricity are connected. Council Tax Band B
Mortgage Assistance
We are pleased to recommend Meredith Morgan Taylor, who would be pleased to help no matter which estate agent you finally buy through. For a free initial chat please contact us on 01395 222350 to arrange an appointment
Your home may be repossessed if you do not keep up repayments on your mortgage
Meredith Morgan Taylor Ltd is an appointed representative of The Openwork Partnership, a trading style of Openwork Ltd which is authorised and regulated by the Financial Conduct Authority (FCA).
Directions
From our prominent Town Centre office, proceed down Rolle Street, turning right at the roundabout into The Parade. Continue into Exeter Road and take a right hand turning into Withycombe Road, just past The Park Hotel and continue until the roundabout. Turn left at the roundabout and then right at the next mini roundabout into Withycombe Village Road. Continue along the road turning right, opposite Jewsons, clearly identified by our For Sale sign.
what3words /// stud.monday.insist
Notice
Please note we have not tested any apparatus, fixtures, fittings, or services. Interested parties must undertake their own investigation into the working order of these items. All measurements are approximate and photographs provided for guidance only.
Utilities
Electric: Mains Supply
Gas: None
Water: Mains Supply
Sewerage: Unknown
Broadband: Unknown
Telephone: Unknown
Other Items
Heating: Electric Storage Heaters
Garden/Outside Space: Yes
Parking: No
Garage: No

Agent Statistics (Based on 740 Reviews) :